Projekt domu Hiacynt 4 to zmodyfikowana wersja znanego projektu z serii "Hiacynt", dostosowana dla inwestorów poszukujących mniejszej i bardziej ekonomicznej opcji. Powierzchnia użytkowa budynku wynosi około 185 m², co czyni go nieco bardziej kompaktowym w porównaniu do wersji bazowej, zachowując przy tym wszystkie kluczowe cechy funkcjonalne i estetyczne.
Najważniejsze cechy projektu Hiacynt 4
- Bryła budynku: projekt oparty na planie litery „T”, z wielospadowym dachem, który nadaje mu harmonijny i elegancki charakter. Część dachu nad garażem jest płaska, co podkreśla nowoczesny styl budynku.
- Zadaszona strefa wejściowa: przestronna, osłonięta podcieniem, wyposażona w szerokie drzwi frontowe z przeszkleniami, co dodaje reprezentacyjnego charakteru.
- Taras ogrodowy: od strony ogrodu zaprojektowano narożnik tarasu otoczony ścianami i żelbetową ramą z pergolą, tworząc strefę idealną do relaksu na świeżym powietrzu.
Projekt Hiacynt 4 - elegancja i estetyka
Dom wyróżnia się ciekawą grą kontrastów:
- Ściany elewacji: połączenie bieli z okładzinami z betonu architektonicznego i drewna tworzy nowoczesny, elegancki wygląd.
- Przeszklenia: duże okna doświetlają wnętrza, jednocześnie otwierając je na otaczający ogród i łącząc przestrzeń wewnętrzną z zewnętrzną.
Przemyślane wnętrze i układ pomieszczeń w domu Hiacynt 4
Dom Hiacynt 4 został zaprojektowany w taki sposób, aby maksymalnie wykorzystać przestrzeń i zapewnić wygodę mieszkańcom:
- Przedsionek z szatnią: przestronne wejście prowadzi do holu połączonego z salonem i otwartą kuchnią, tworząc centralne miejsce spotkań.
- Salon z antresolą: na wprost wejścia znajdują się reprezentacyjne schody, które prowadzą do antresoli na poddaszu, łącząc przestrzeń dzienną z górnym poziomem.
- Strefa prywatna na parterze: wydzielona część dla właścicieli domu, z garderobami, łazienką oraz bezpośrednim wyjściem na taras. Dodatkowy pokój pełni funkcję sypialni lub gabinetu.
- Część gospodarcza: dwustanowiskowy garaż, kotłownia oraz pomieszczenie pralni ułatwiają organizację codziennych obowiązków.
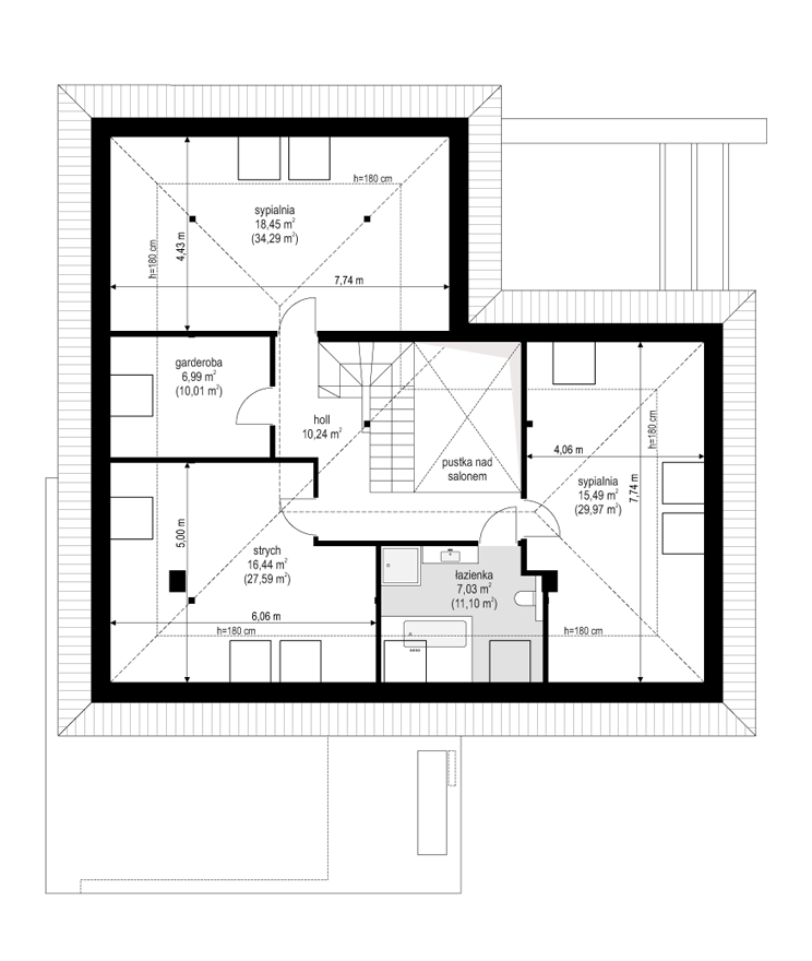
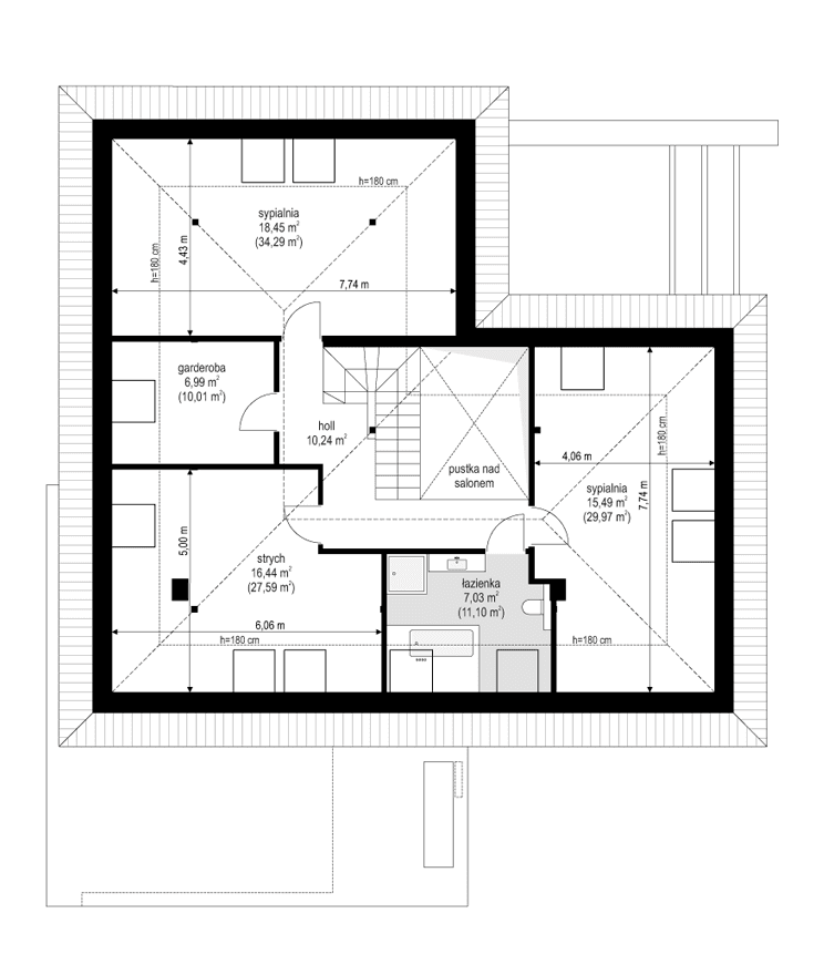
Na poddaszu znajdują się trzy sypialnie, garderoba oraz łazienka, zapewniając prywatną przestrzeń dla pozostałych domowników.
Technologia budowy i energooszczędność - Hiacynt 4
Projekt Hiacynt 4 spełnia wysokie standardy energooszczędności:
- Ściany zewnętrzne: Murowane z pustaków Porotherm 25, ocieplone styropianem.
- Strop betonowy: Monolityczna konstrukcja zapewnia trwałość i izolację akustyczną.
- Pokrycie dachu: Dachówka, która gwarantuje długowieczność i estetykę.
Dom został zaprojektowany z myślą o minimalizacji kosztów eksploatacji, dzięki zastosowaniu nowoczesnych instalacji oraz wysokiej jakości izolacji termicznych.
Dla kogo projekt domu Hiacynt 4?
Projekt Hiacynt 4 to doskonała propozycja dla inwestorów, którzy marzą o oryginalnym, wygodnym domu z przestronnym parterem i poddaszem użytkowym. To idealna opcja dla rodzin, którym zależy na komforcie oraz energooszczędnych rozwiązaniach. Świetnie sprawdzi się także na działkach, gdzie większa wersja Hiacynta 1 nie mogłaby zostać zrealizowana.
Inne projekty z serii Hiacynt
Zapraszamy do zapoznania się z innymi wariantami projektów z tej serii:
- Projekt domu Hiacynt
- Projekt domu Hiacynt 2
- Projekt domu Hiacynt 3
- Projekt domu Hiacynt 5
- Projekt domu Hiacynt 6
- Projekt domu Hiacynt 7 oraz Hiacynt 7B
- Projekt domu Hiacynt 8
Wszystkie projekty są dostępne także w wersjach lustrzanych.
Materiały budowlane zastosowane w projekcie
- Fundamenty: betonowe ławy oraz ściany fundamentowe z betonu
- Ściany zewnętrzne: pustaki Porotherm 25 + ocieplenie styropianem
- Strop: monolityczny betonowy
- Elewacje: tynk cienkowarstwowy
- Pokrycie dachu: dachówka
Hiacynt 4 to projekt idealny dla tych, którzy chcą wybudować dom nowoczesny, funkcjonalny i przyjazny środowisku.




















