Projekt Hiacynt 3 - nowoczesny dom parterowy z poddaszem użytkowym
Hiacynt 3 to idealny dom z poddaszem i dachem wielospadowym z potencjałem.
Dom Hiacynt 3 to doskonały wybór dla rodzin 4-5-osobowych, które szukają nowoczesnego i funkcjonalnego domu. Dom jest przestronny i komfortowy, a jego oryginalna bryła i eleganckie wykończenie sprawiają, że będzie on prawdziwą ozdobą każdej działki.
Walory projektu Hiacynt 3:
- Przestronny
- Funkcjonalny
- Przestronna część dzienna
- Trzy wygodne sypialnie
- Dobrze zaprojektowany
- Energooszczędny
Energooszczędność i komfort użytkowania
Dom Hiacynt 3 został zaprojektowany jako energooszczędny. Ma bardzo dobre parametry izolacji termicznej i nowoczesne instalacje, dzięki czemu będzie niedrogi w utrzymaniu. W domu zastosowano również szereg rozwiązań, które poprawiają komfort użytkowania budynku, takich jak:
- wentylacja mechaniczna z odzyskiem ciepła
- instalacja fotowoltaiczna
- ogrzewanie podłogowe
Niepowtarzalna bryła i eleganckie wykończenie domu Hiacynt 3
Dom Hiacynt 3 to projekt parterowego domu z poddaszem użytkowym, który zachwyca nowoczesną bryłą i eleganckim wykończeniem. Bryła budynku została zaprojektowana na planie litery T, co zapewnia jej oryginalny i dynamiczny wygląd. Duże przeszklenia elewacji, narożne okna i kontrastujące z bielą ścian fragmenty obłożone betonem architektonicznym i drewnem sprawiają, że dom jest niezwykle atrakcyjny wizualnie.
Funkcjonalny układ wnętrza
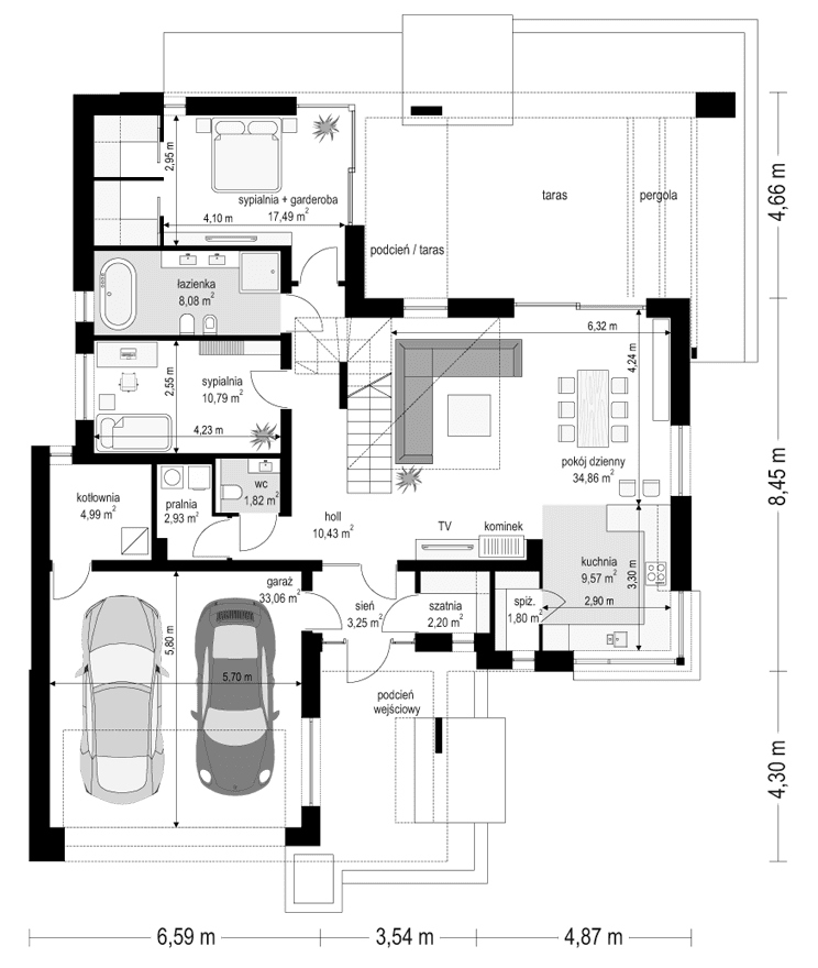
Wnętrze domu Hiacynt 3 zostało zaprojektowane w sposób funkcjonalny i komfortowy. Na parterze znajduje się przestronna część dzienna, w której znajduje się salon z kominkiem, jadalnia i kuchnia. Duże przeszklenia otwierają wnętrze na taras i ogród, zapewniając domownikom stały dostęp do świeżego powietrza i naturalnego światła. Na parterze znajduje się również apartament rodziców z garderobami i łazienką, sypialnia lub gabinet oraz dwustanowiskowy garaż, kotłownia i pralnia.
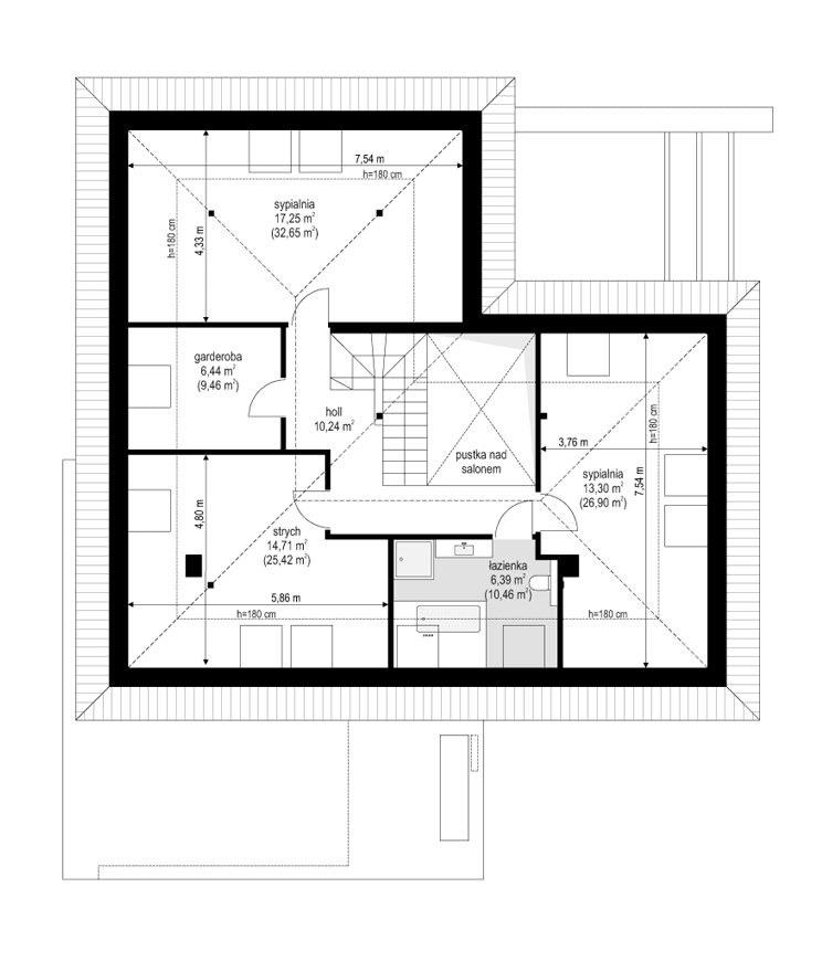
Na poddaszu znajdują się trzy pokoje z łazienką i garderobą. Pokoje są jasne i przestronne, a ich układ można dostosować do indywidualnych potrzeb domowników.
Bryła budynku Hiacynt 3
Dom Hiacynt 3 został zaprojektowany na planie litery T. Bryła budynku jest zwarta i dynamiczna, dzięki dużym przeszkleniom elewacji i narożnym oknom. Elewacje domu zostały wykończone w bieli, co podkreśla nowoczesny charakter budynku. Kontrastujące z bielą ścian fragmenty obłożone betonem architektonicznym i drewnem nadają bryle budynku elegancji i wyrazu.
Wnętrze domu Hiacynt 3
Na parterze domu znajduje się przestronna część dzienna, w której znajdują się:
- salon z kominkiem
- jadalnia
- kuchnia
Salon jest duży i jasny, dzięki dużym przeszkleniom elewacji. W salonie przewidziano miejsce na meble wypoczynkowe, stół jadalny oraz kominek. Kuchnia jest częściowo otwarta na salon, dzięki czemu domownicy mogą się ze sobą swobodnie komunikować. Kuchnia jest wyposażona w niezbędne sprzęty AGD. Na parterze znajduje się również:
- apartament rodziców z garderobami i łazienką
- sypialnia lub gabinet
- dwustanowiskowy garaż
- kotłownia
- pralnia
Apartament rodziców jest duży i komfortowy. Składa się z sypialni, garderoby i łazienki. Sypialnia jest jasna i przestronna, a jej układ można dostosować do indywidualnych potrzeb domowników. Garderoba zapewnia domownikom miejsce do przechowywania ubrań i odzieży. Łazienka jest wyposażona w wannę, prysznic i toaletę.
Sypialnia lub gabinet to pomieszczenie, które można dostosować do indywidualnych potrzeb domowników. Może to być dodatkowa sypialnia dla dziecka, gabinet lub pomieszczenie rekreacyjne.
Dwustanowiskowy garaż zapewnia wygodne miejsce parkingowe dla dwóch samochodów. Kotłownia jest wyposażona w nowoczesny piec gazowy, który zapewnia domownikom komfortowe i ekonomiczne ogrzewanie. Pralnia znajduje się w pobliżu kuchni, co ułatwia domownikom wykonywanie prac domowych.
Dom Hiacynt 3 to doskonały wybór dla rodzin 4-5-osobowych, które szukają nowoczesnego i funkcjonalnego domu. Dom jest przestronny i komfortowy, a jego oryginalna bryła i eleganckie wykończenie sprawiają, że będzie on prawdziwą ozdobą każdej działki.
Dom Hiacynt 3 to prawdziwy skarb dla każdej rodziny. To dom, który zachwyci swoim wyglądem, funkcjonalnością i komfortem użytkowania. Dom, który będzie ozdobą każdej działki i zapewni domownikom bezpieczeństwo i wygodę na długie lata.
Dlaczego projekt domu Hiacynt 3?
1. Niepowtarzalna bryła i eleganckie wykończenie - dom Hiacynt 3 wyróżnia się na tle innych domów swoim nowoczesnym i eleganckim wyglądem. Bryła budynku jest dynamiczna i zwarta, a duże przeszklenia elewacji zapewniają domownikom dostęp do naturalnego światła. Elewacje domu zostały wykończone w bieli, co podkreśla nowoczesny charakter budynku, a kontrastujące z bielą fragmenty obłożone betonem architektonicznym i drewnem nadają bryle budynku elegancji i wyrazu.
2. Funkcjonalny układ wnętrza - dom Hiacynt 3 jest bardzo funkcjonalny. Na parterze znajduje się przestronna część dzienna, w której domownicy mogą wspólnie spędzać czas. Na parterze znajduje się również apartament rodziców z garderobami i łazienką, sypialnia lub gabinet oraz dwustanowiskowy garaż, kotłownia i pralnia. Na poddaszu znajdują się trzy pokoje z łazienką i garderobą. Pokoje są jasne i przestronne, a ich układ można dostosować do indywidualnych potrzeb domowników.
3. Energooszczędność i komfort użytkowania - dom Hiacynt 3 został zaprojektowany jako energooszczędny. Ma bardzo dobre parametry izolacji termicznej i nowoczesne instalacje, dzięki czemu będzie niedrogi w utrzymaniu. W domu zastosowano również szereg rozwiązań, które poprawiają komfort użytkowania budynku, takich jak: wentylacja mechaniczna z odzyskiem ciepła, instalacja fotowoltaiczna i ogrzewanie podłogowe.
Opinie naszych Inwestorów na temat projektu Hiacynt 3:
- "Dom Hiacynt 3 to dom z klasą. Elewacje w stylu nowoczesnym zachwycają elegancją, a wnętrze jest doskonale przemyślane i funkcjonalne. Dom jest idealny dla osób, które cenią sobie komfort i nowoczesny styl życia." - Asia & Kuba
- "Dom Hiacynt 3 to dom, który jest idealny dla rodzin z dziećmi. Przestronna część dzienna zapewnia wystarczającą ilość miejsca do zabawy i relaksu, a trzy wygodne sypialnie zapewniają prywatność każdemu członkowi rodziny." - Magda i Adam
- "Projekt Hiacynt 3 to po prostu:
- Dom z klasą: funkcja i architektura
- Eleganckie elewacje i piękna bryła
- Funkcjonalne wnętrze
- Komfort w pełnym wydaniu przestrzennym
- Nowoczesny styl i arcywygląd!" - Mateusz
Zobacz wszystkie projekty z kolekcji: projekt Hiacynt




















