Projekt domu Hiacynt 8 - wyjątkowy i funkcjonalny
Projekt domu Hiacynt 8 to propozycja dla osób, które szukają wyjątkowego i funkcjonalnego domu jednorodzinnego z poddaszem użytkowym. Dom wyróżnia się nowoczesną architekturą, która łączy w sobie tradycyjną formę z nowoczesnymi rozwiązaniami.
Dom Hiacynt 8 to wyjątkowy i funkcjonalny projekt domu jednorodzinnego z poddaszem użytkowym. Dom wyróżnia się nowoczesną architekturą i zapewnia komfortowe warunki dla rodziny.
Architektura domu
Dom Hiacynt 8 ma bryłę w kształcie litery T. Bryła jest prosta i symetryczna, dzięki czemu budynek jest elegancki i harmonijny. Elewacje budynku są wykończone jasnym tynkiem, który podkreśla nowoczesny charakter domu. Dodatkiem do elewacji są elementy z betonu architektonicznego i drewna, które nadają budynkowi ciepła i przytulności.
Wnętrze w domu i układ
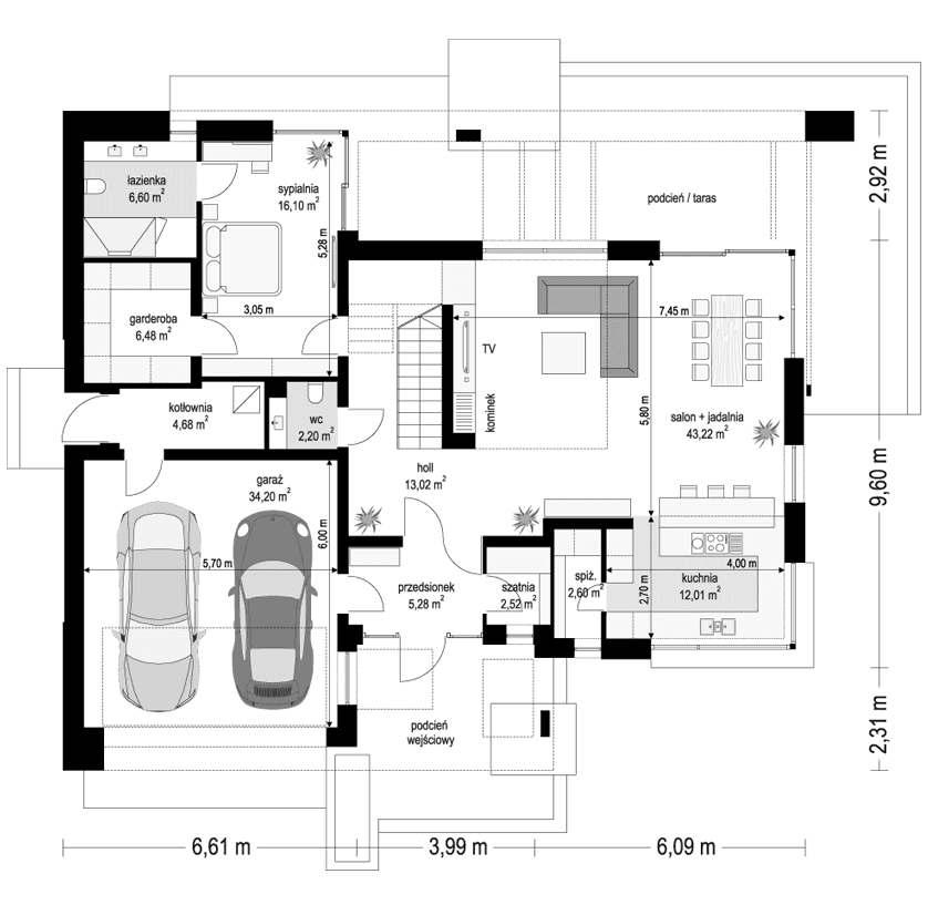
- Wnętrze domu jest funkcjonalnie zaprojektowane i zapewnia komfortowe warunki dla rodziny. Na parterze znajduje się część dzienna z salonem, jadalnią i kuchnią. Salon jest przestronny i jasny, dzięki dużym oknom wychodzącym na ogród. Jadalnia jest połączona z tarasem, dzięki czemu domownicy mogą wygodnie spożywać posiłki na świeżym powietrzu. Kuchnia jest przestronna i wyposażona w wszystkie niezbędne sprzęty.
- Na parterze znajduje się również apartament rodziców z łazienką i garderobą. Apartament jest wygodny i przytulny, dzięki czemu rodzice mogą cieszyć się prywatnością.
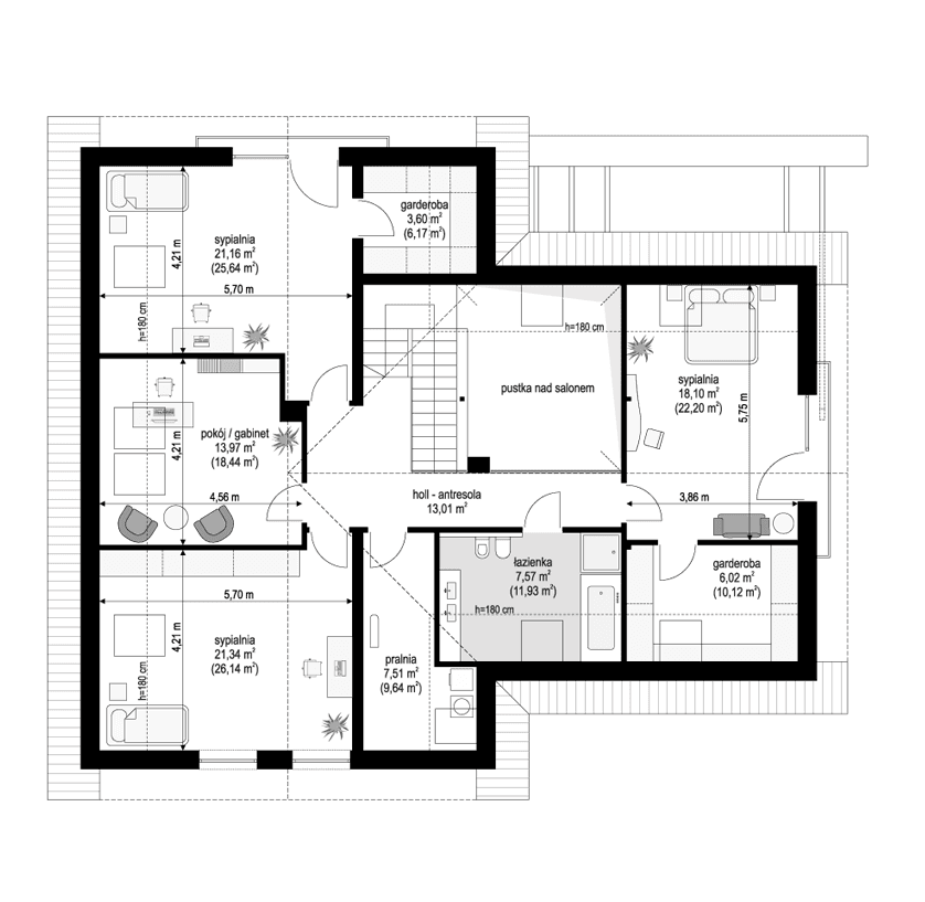
- Na poddaszu znajdują się cztery sypialnie, w tym dwie z własnymi garderobami. Wszystkie sypialnie są przestronne i jasne, dzięki dużym oknom wychodzącym na ogród. Na poddaszu znajduje się również duża łazienka i pomieszczenie gospodarcze.
Funkcjonalność domu
Dom Hiacynt 8 jest funkcjonalny i zapewnia komfortowe warunki dla rodziny. Na parterze znajduje się przestronna część dzienna, która jest idealnym miejscem do wypoczynku i spotkań z rodziną i przyjaciółmi. Na poddaszu znajdują się cztery sypialnie, dzięki czemu dom może pomieścić nawet większą rodzinę.
Dom jest również energooszczędny, dzięki zastosowaniu dobrych izolacji i nowoczesnych instalacji. Dzięki temu koszty utrzymania domu są niskie.
Opinie na temat projektu:
- "Unikatowy projekt, wspaniały dom dla nas!" - @Kukułki
- "Od zawsze marzyliśmy o domu z poddaszem, ale nie mogliśmy znaleźć projektu, który spełniałby wszystkie nasze wymagania. Kiedy zobaczyliśmy projekt Hiacynt 8, od razu wiedzieliśmy, że to jest to, czego szukamy. Dom jest unikatowy, ma nowoczesną architekturę i funkcjonalne wnętrze. Na parterze mamy dużą część dzienną z salonem, jadalnią i kuchnią. Na poddaszu znajdują się cztery sypialnie, w tym dwie z własnymi garderobami, oraz duża łazienka.Dom jest bardzo dobrze zaprojektowany, a wszystkie pomieszczenia są przestronne i jasne. Dzięki zastosowaniu dobrych izolacji i nowoczesnych instalacji, dom jest bardzo energooszczędny.Jesteśmy bardzo zadowoleni z wyboru projektu Hiacynt 8. To wspaniały dom dla nas i naszej rodziny." - Marysia & Tomek




















