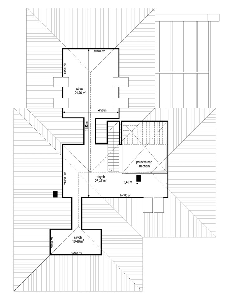
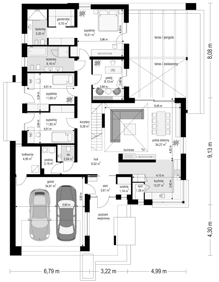
Projekt domu Hiacynt 5 jest wersją wariantową popularnego projektu Hiacynt 2 z popularnej serii „Hiacyntów” - tym razem dom trochę mniejszy, zwężony, mieszczący się na węższej parceli, z zadaszeniem bez fragmentów płaskich dachów. Dodatkowo jest to wersja domu zakładająca budowę stropu nad parterem i więźby dachowej z wiązarów prefabrykowanych, bez stropu żelbetowego, co znakomicie upraszcza, przyspiesza budowę i przede wszystkim obniża koszty realizacji domu. Hiacynt 5 zaprojektowano jako dom parterowy, z całym programem użytkowym na parterze, z dodatkową przestrzenią strychową do dowolnej adaptacji według potrzeby właściciela. Dom założono na rzucie w kształcie litery „T”, z wystającym od frontu garażem i wychodzącą wgłęb ogrodu częścią z sypialniami. Reprezentacyjne wejście z dużym podcieniem stanowi ozdobę elewacji frontowej. Narożny taras z piękną drewnianą pergolą ozdabia elewację tylną domu.Dom zaprojektowano tak aby pasował zarówno na działkę z ogrodem z tyłu, jak i na posesję z ogrodem z boku. Elewacje budynku zostały ozdobione fragmentami ścian wykończonymi betonem architektonicznym lub jego imitacją, oraz okładziną drewnianą. Na dachu przyjęto blachę na rąbek stojący, doskonale pasującą do nowoczesnego stylu budynku. Wnętrze domu podzielono na trzy części : dzienną z salonem i kuchnią, gospodarczo-garażową przy wejściu, oraz część z sypialniami domowników w głębi ogrodu. Do budynku wschodzimy przez wygodny przedsionek z szatnią, połączony z garażem, wprost do holu i dalej do pokoju dziennego. W salonie mieści się zestaw mebli wypoczynkowych naprzeciw ściany kominkowo – telewizyjnej, oraz duży stół jadalny. Częściowo otwarta kuchnia ze spiżarnią i narożnymi oknem dopełnia to wnętrze. Szerokie wyjście przesuwnymi drzwiami na taras dodatkowo powiększa przestrzennie salon. W części prywatnej domu mamy apartament państwa domu z garderobą i łazienką, dwie sypialnie dziecięce z łazienką i dodatkowy pokój – gabinet. Przy garażu przewidziano miejsce na kotłownię i pomieszczenie pralni. Nad parterem zaprojektowano strych do dowolnej aranżacji i wykorzystania przez mieszkańców. Można tam zmieścić dodatkowe dwa pokoje. Hiacynt 5 jest domem energooszczędnym, z bardzo dobrymi izolacjami i nowoczesnymi instalacjami. Technologia budowy domu jest znacznie uproszczona dzięki zastosowaniu wiązarów. Prace murarskie kończą się na wieńcach nad ścianami parteru - pozostała część budynku wykonana jest z prefabrykowanych wiązarów. Hiacynt 5 to doskonała propozycja dla Inwestorów marzących o wygodnym parterowym domu o nowoczesnej architekturze, pozwalającym się cieszyć z mieszkania na jednej kondygnacji blisko ogrodu. Zapraszamy do zapoznania się z innymi projektami: projekt domu Hiacynt, projekt domu Hiacynt 2, projekt domu Hiacynt 3, projekt domu Hiacynt 4, projekt domu Hiacynt 6., projekt domu Hiacynt 7, projekt domu Hiacynt 7 B, projekt domu Hiacynt 8. Projekty dostępne są w odbiciu lustrzanym.
Materiały:
- Fundamenty betonowe ławy i ściany fundamentowe betonowe
- Ściany zewnętrzne ściany murowane – pustaki porotherm 25 + styropian
- Strop strop i konstrukcja dachu z wiązarów drewnianych prefabrykowanych
- Elewacje tynk cienkowarstwowy
- Pokrycie dachu blacha na rąbek




















