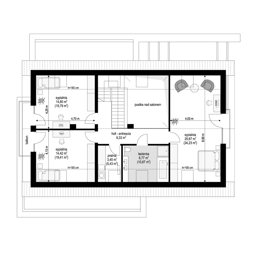
Projekt domu Hiacynt 7 to kolejny wariant projektu z popularnej serii „Hiacyntów” - tym razem Hiacynt 7. Jest to dom parterowy z poddaszem użytkowym, przeznaczony dla cztero-sześcioosobowej rodziny. Budynek został zaprojektowany na planie litery „T” - podobnie jak pozostałe Hiacynty, jednak tym razem bryłę przykryto dwuspadowym dachem. Parterowe poszerzenia bryły zwieńczone są dachami płaskimi, które dość łatwo możne zamienić na tarasy. Architektura domu łączy w sobie tradycyjną formę z nowoczesnymi rozwiązaniami,detalami i materiałami wykończeniowymi. Elewacje budynku podzielono poziomymi pasami, oddzielonymi białymi belkowaniami i dużymi przeszkleniami okien. Front akcentują szerokie drzwi wejściowe z naświetlami, umieszczone w podcieniu pod długim masywnym podciągiem połączonym z garażem, oraz narożne okno kuchni. Elewację tylną zdobi i ujmuje w ramę drugi podciąg, ciągnący się przez całą szerokość domu i będący podparciem zadaszenia i pergoli nad tarasem, tworząc tu intymne komfortowe patio. Prosta bryła budynku została urozmaicona odpowiednimi dodatkami, nadając budynkowi atrakcyjny, niepowtarzalny styl. Wnętrze domu podzielone zostało na cztery strefy. Na parterze mamy główną część dzienną, z jednoprzestrzennym wnętrzem salonu, z otwarciem sufitu i antresolą nad częścią wypoczynkową, wydzieloną jadalnią połączoną z tarasem, kuchnią ze spiżarnią i reprezentacyjnym holem. Na parterze mamy również oddzielny apartament master rodziców, z własną łazienką i garderobą, połączony z tarasem i ogrodem. Całość parteru zamyka część techniczna domu z garażem i kotłownią. Na poddaszu mamy z kolei trzy pokoje sypialne, z łazienką i pralnią, oraz antresolą z widokiem na salon poniżej. Na poddaszu można bez większego problemu wygospodarować także 4 pokoje. Konstrukcja i kształt bryły Hiacynta 7 są w stosunku do pozostałych wariantów tego projektu uproszczone, co powinno korzystne wpłynąć na łatwość i koszt budowy. Dom równocześnie nie stracił na swojej estetyce i atrakcyjności. W projekcie zastosowano bardzo dobre izolacje i nowoczesne instalacje, dzięki czemu budynek jest energooszczędny i będzie niedrogi w późniejszej eksploatacji. Hiacynt 7 to idealna propozycja dla osób, którym spodobały się domy z tej serii, ale szukają trochę prostszego w budowie rozwiązania. To propozycja dla Inwestorów chcących wybudować średniej wielkości dom jednorodzinny, o atrakcyjnej nowoczesnej architekturze i funkcjonalnym wnętrzu. Zapraszamy do zapoznania się z innymi projektami: projekt domu Hiacynt, projekt domu Hiacynt 2, projekt domu Hiacynt 3, projekt domu Hiacynt 4, projekt domu Hiacynt 5, projekt domu Hiacynt 6, projekt domu Hiacynt 7 B, projekt domu Hiacynt 8. Projekty dostępne są w odbiciu lustrzanym.
Materiały:
- Fundamenty betonowe ławy i ściany fundamentowe betonowe
- Ściany zewnętrzne ściany murowane – pustaki porotherm 25 + styropian
- Strop monolityczny betonowy
- Elewacje tynk cienkowarstwowy
- Pokrycie dachu dachówka ceramiczna/lub blachodachówka




















