Twój przewodnik po mądrej inwestycji w projekt domu
Wprowadzenie do filozofii WybieramProjekt.pl: Dlaczego sam papier to za mało?
Budowa wymarzonego domu to dla większości inwestorów największe i najbardziej stresujące wyzwanie finansowe w życiu. Zaczyna się niewinnie – od ekscytującego przeglądania setek pięknych wizualizacji i rzutów w internecie. Kiedy już znajdziemy ten jeden, idealny projekt, naturalnym odruchem staje się poszukiwanie go w najniższej możliwej cenie. I właśnie w tym momencie, na samym starcie inwestycji, tysiące osób popełnia fundamentalny błąd, który w przyszłości kosztuje ich mnóstwo nerwów, czasu i ukrytych wydatków.

Nasz najnowszy artykuł to coś więcej niż tylko poradnik. To manifest mądrego budowania i brutalnie szczere spojrzenie na rynek projektów gotowych. Otwarcie mówimy w nim o tym, o czym konkurencja woli milczeć, mamiąc klientów pozornymi rabatami rzędu kilkudziesięciu złotych. Z tego tekstu dowiesz się, dlaczego zakup samego projektu gotowego to dopiero ułamek sukcesu, a prawdziwa inwestycja zaczyna się w momencie jego profesjonalnego dostosowania do Twoich realiów.
O czym dokładnie przeczytasz w pełnym artykule?
Przygotowaliśmy dla Ciebie kompleksowe zestawienie wiedzy, które przeprowadzi Cię przez najważniejsze etapy poprzedzające wbicie pierwszej łopaty. Skupiamy się na trzech kluczowych filarach mądrej inwestycji:
Nasza gwarancja: 10% wartości projektu na adaptację
Kluczowym elementem naszego artykułu jest zaprezentowanie naszego unikalnego podejścia do klienta. W WybieramProjekt.pl nie bijemy się na grosze i nie uczestniczymy w wyniszczającej wojnie cenowej. Dajemy Ci coś o wiele cenniejszego – stałą gwarancję wartości dodanej.
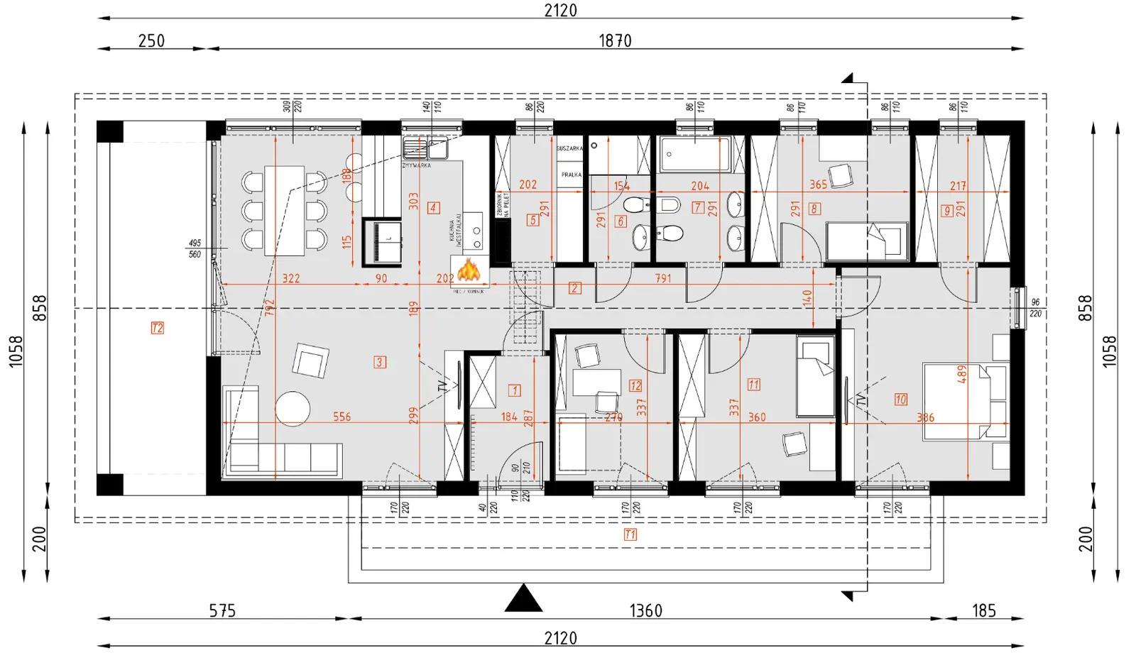
Większość inwestorów zaczyna swoją przygodę z budową w ten sam sposób: od długich wieczorów spędzonych przed ekranem, przeglądania tysięcy wizualizacji i poszukiwania tej jednej, wymarzonej bryły. Kiedy już ją znajdują, zaczyna się polowanie na najniższą cenę w internecie. To jednak pierwszy i najpoważniejszy błąd, jaki można popełnić na starcie. Dlaczego? Ponieważ sam gotowy projekt domu to zaledwie koncepcja zapisana na papierze. Prawdziwy dom, gotowy do uzyskania pozwolenia na budowę i wbicia pierwszej łopaty, zaczyna się zupełnie gdzie indziej. Dom zaczyna się od mądrej adaptacji Twojego projektu.
W dobie powszechnego zaniżania cen i ukrytych kosztów, my mówimy wprost: nie bijemy się cenami, bo oferujemy coś znacznie cenniejszego – spokój, bezpieczeństwo i realne oszczędności na etapie budowy. Działaj mądrze i dowiedz się, dlaczego projekt domu z adaptacją to jedyne racjonalne rozwiązanie, a nasza stała gwarancja wartości dodanej to oferta, obok której nie możesz przejść obojętnie.
Rynek projektów gotowych jest ogromny. Łatwo dać się skusić ofercie, która jest o 100 czy 200 złotych tańsza niż u konkurencji. Problem polega na tym, że kupując sam projekt domu, kupujesz jedynie powtarzalną dokumentację (tzw. projekt typowy). Niezależnie od tego, czy kupisz go za 3000 zł, czy "upolujesz" za 2800 zł – z punktu widzenia polskiego prawa budowlanego, ten zestaw dokumentów nie uprawnia Cię do rozpoczęcia budowy.
Gotowy projekt nie wie, jak wygląda Twoja działka. Nie wie, czy masz dostęp do sieci gazowej, z której strony wieje wiatr, jaki jest poziom wód gruntowych, ani czy wjazd na posesję znajduje się od północy, czy od południa. Aby papierowa wizja stała się pełnoprawnym Projektem Budowlanym, niezbędna jest adaptacja do działki.
Wybierając najtańszą ofertę w sieci, zostajesz z dokumentacją w ręku i musisz samodzielnie szukać lokalnego architekta, który podejmie się procesu dostosowania budynku. Często okazuje się, że pozornie zaoszczędzone kilkadziesiąt złotych znika błyskawicznie, gdy lokalne biuro architektoniczne wystawia rachunek za trudną adaptację "surowego" projektu.
Adaptacja do działki to nic innego jak "uziemienie" gotowej wizji architektonicznej. To skomplikowany proces, w którym uprawniony architekt bierze zakupiony przez Ciebie projekt typowy i wpisuje go w konkretne ramy prawne, geograficzne i urbanistyczne Twojej nieruchomości.
Co dokładnie dzieje się w tym procesie?
Bez tego procesu żaden urząd nie wyda Ci pozwolenia na budowę. Dlatego oddzielanie zakupu projektu od jego adaptacji to jak kupowanie samochodu bez kół z nadzieją, że taniej dokupi się je u innego mechanika.
Nie ma na świecie dwóch identycznych rodzin, dlatego rzadko zdarza się, by projekt z katalogu w 100% odpowiadał na wszystkie Twoje potrzeby. Tu pojawia się kolejna potężna zaleta współpracy ze specjalistami – adaptacja ze zmianami.
Kupując projekt, masz prawo go modyfikować. W naszej pracowni proces ten traktujemy ze szczególną uwagą, ponieważ wiemy, że to detale decydują o komforcie życia przez kolejne kilkadziesiąt lat. Co najczęściej zmieniamy podczas adaptacji?
Dzięki przemyślanej adaptacji, pozornie "typowy" dom staje się Twoim indywidualnym azylem. To moment, w którym masowy produkt ewoluuje w rozwiązania precyzyjnie dopasowane do Twojego stylu życia.

W WybieramProjekt.pl wyznajemy zasadę: nie zostawiamy inwestora w połowie drogi. Wiemy, że budowa domu to stres, mnóstwo formalności i gigantyczne koszty. Zamiast brać udział w bezsensownej wojnie na rabaty rzędu 50 zł za projekt, stworzyliśmy system, który realnie wspiera Twój budżet inwestycyjny.
Nasza propozycja jest jasna: Kupując u nas projekt, zyskujesz stałą gwarancję wartości dodanej. Otrzymujesz od nas równe 10% wartości zakupionego projektu do wykorzystania na jego profesjonalną adaptację!
To nie jest chwyt marketingowy. To nasza inwestycja w Twój sukces. Decydując się na projekt domu z adaptacją w naszej pracowni, wybierasz projekty szyte na miarę. Przechodzimy z Tobą płynnie od etapu "mam wizję" do etapu "mam gotowy do urzędu Projekt Budowlany".
Dlaczego to podejście deklasuje konkurencję?
Wybór projektu domu to jedna z najważniejszych decyzji finansowych w Twoim życiu. Nie podejmuj jej, kierując się wyłącznie ceną w koszyku internetowym. Szukaj partnerów, którzy rozumieją pełen proces budowlany i oferują kompleksowe rozwiązania.
Zainwestuj w projekt domu z adaptacją. Skorzystaj z naszej unikalnej oferty, odzyskaj 10% wartości projektu i przeznacz te środki na dostosowanie budynku do własnych, indywidualnych potrzeb. Niezależnie od tego, czy interesuje Cię prosta adaptacja do działki, czy skomplikowana adaptacja ze zmianami – jesteśmy tu po to, aby przeprowadzić Cię przez ten proces bezpiecznie i profesjonalnie.
Nie kupuj samego papieru. Zapraszamy do WybieramProjekt.pl – stwórzmy wspólnie dom Twoich marzeń!
Wypełnij formularz podając informacje, które są dla Ciebie istotne - zmiany oraz nazwę projektu lub koncept
Doradztwo i sprzedaż: 791 258 345
Biznes i Marketing: 600 160 765
Adres email: adaptacja@wybieramprojekt.pl
Poczytaj jeszcze:

Magdalena Zahuta,
CEO wybieramprojekt.pl
Telefon:
Doradztwo i sprzedaż: 791 258 345
Biznes i Marketing: 600 160 765
Adres email:
kontakt@wybieramprojekt.pl
adaptacja@wybieramprojekt.pl
Godziny pracy:
pn.-sb.: 9:00 - 18:00
Wizyty stacjonarne umawiamy indywidualnie na konkretny termin, ul Traugutta
Pełna nazwa:
MD PROJEKT & KONSULTING SP. ZO.O.
Siedziba firmy
Klasztorna 35, 52-234 Wrocław
Numery rejestrowe:
KRS: 0000878772,
REGON: 387947490,
NIP: 8992891755
Konta bankowe:
Santander:
11 1090 2226 0000 0001 4747 8663