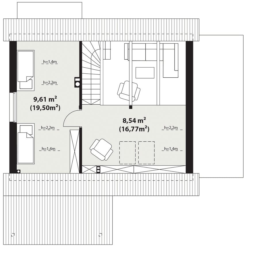
Przepiękny projekt domu Erna drewaniana z budową w systemie szkielektowym energooszcz ędnym zapewniającym oszczędności na budowie i co wazn,e później, przez lata użytkowania. Inwestycja w projekt Erna drewniana w systemie szkieletowym to rozsądny wybór.
Projekt Erna drewniana można wybudowac na zgłoszenie. Przygotwaliśmy ofertę na dom w pakiecie calorocznym. Istnieje możliwość zamówienia dodatkowych instalacji dedykowanych do projektu domu Erna drewniana.
Budowa domu z naszą firmą pracujacą w systemie szkieletowym zapwni Ci 30 lat gwarancji na budowę domu. Napisz na mail: budowa@wybieramprojekt.pl
Przygotujemy dla Ciebie ofertę na dom Erna drewniana.
Dlaczego warto wybrać nas do budowy domu Erna drewniana?
Nasz projekt charakteryzuje się nowoczesnym designem, maksymalną funkcjonalnością oraz możliwością wyboru preferowanej technologii budowy. To rozwiązanie, które jest dostępne na obszarze całej Polski i dalej. Oto kilka powodów, dla których warto rozważyć naszą ofertę:
Dostępność na Terenie Polski i Europy: Niezależnie od lokalizacji Twojego marzenia, jesteśmy gotowi do realizacji projektu. Nasza firma posiada partnerów i dostawców w różnych regionach, co umożliwia rozpoczęcie budowy w dowolnym miejscu.
Wsparcie doświadczonych Profesjonalistów. 16 lat na rynku. 30 lat gwarancji na dom!
Sprawdź inny projekt z kolekcji: projekt Erna 3
I zobacz ofertę na budowę domu Erna 3.
Projekty domów jednorodzinnych Nasza pracownia oferuje szeroki wybór projektów domów jednorodzinnych, które spełnią oczekiwania każdego inwestora. W naszej ofercie znajdują się domy parterowe, z poddaszem i piętrowe, o powierzchni użytkowej od 50 do ponad 200 m2. Domy jednorodzinne z naszej pracowni charakteryzują się wysoką funkcjonalnością i estetyką. Przy ich projektowaniu uwzględniliśmy wszystkie potrzeby domowników, dbając o to, aby każdy dom był idealnym miejscem do życia. Projekty w technologii drewnianej Drewniane domy jednorodzinne to coraz popularniejsze rozwiązanie. Drewno jest materiałem naturalnym, który zapewnia komfortowy i zdrowy mikroklimat w domu. Domy drewniane są również energooszczędne, co przekłada się na niższe koszty eksploatacji. W naszej pracowni oferujemy projekty domów drewnianych w różnych stylach, od klasycznych po nowoczesne. Projekty jednorodzinne w technologii tradycyjnej Domy jednorodzinne w technologii tradycyjnej to sprawdzone rozwiązanie, które cieszy się niesłabnącą popularnością. Domy te są trwałe i solidne, a ich budowa jest stosunkowo niedroga. W naszej pracowni oferujemy projekty domów jednorodzinnych w technologii tradycyjnej w różnych stylach, od klasycznych po nowoczesne. Projekty typu nowoczesna stodoła Domy typu nowoczesna stodoła to nowoczesne i stylowe rozwiązanie, które zyskuje coraz więcej zwolenników. Domy te charakteryzują się prostą bryłą i dużymi przeszkleniami, które zapewniają mnóstwo światła dziennego. W naszej pracowni oferujemy projekty domów typu nowoczesna stodoła w różnych rozmiarach i stylach. Domy ekonomiczne Domy ekonomiczne to rozwiązanie dla osób, które chcą wybudować dom bez nadmiernego obciążania swojego budżetu. Domy te są zaprojektowane tak, aby były energooszczędne i łatwe w budowie. W naszej pracowni oferujemy projekty domów ekonomicznych w różnych stylach i rozmiarach.









