Projekt domu Erna - perełka projektowa dla osób szukających kompaktowego domu z poddaszem i domu taniego w budowie
Projekt domu Erna to perełka projektowa, która zachwyci zarówno osób szukających niewielkiego domu z poddaszem, jak i tych, którzy chcą wybudować dom w niskiej cenie. Dom ten ma powierzchnię zabudowy 63 m2, dzięki czemu może być budowany na zgłoszenie. Jest to więc doskonały wybór dla osób, które chcą szybko i bez zbędnych formalności rozpocząć budowę swojego domu.Projekt domu Erna drewniana to niewielki, ale funkcjonalny projekt domu jednorodzinnego o powierzchni zabudowy 63 m². Dzięki temu może być budowany na zgłoszenie, co znacznie ułatwia i przyspiesza proces budowlany. Dom ten doskonale sprawdzi się zarówno jako dom całoroczny, jak i letniskowy. Projekt domu Erna - perełka projektowa dla każdego
Projekt Erna - najlepszy dom z poddaszem do 100 m2
Erna to jeden z najlepszych domów z poddaszem do 100 m2. Jest to dom funkcjonalny, estetyczny i niedrogi w budowie. Erna to doskonały wybór dla osób, które szukają kompaktowego domu z poddaszem, który spełni wszystkie ich oczekiwania.
Dom tani w budowie to piękna Erna drewniana
Erna to dom, który jest stosunkowo tani w budowie. Wynika to z prostej bryły budynku, niewielkiej powierzchni zabudowy oraz zastosowania nowoczesnych technologii.
Najlepszy dom z poddaszem do 100 m²
Erna to jeden z najlepszych domów z poddaszem do 100 m². Jest to dom funkcjonalny, estetyczny i tani w budowie. To idealny wybór dla osób, które szukają domu dla rodziny lub domu letniskowego.
Projekt Erna drewnian to tradycyjna bryła i nowoczesne wnętrze
Erna to połączenie tradycyjnej, prostej bryły z nowoczesnym układem wnętrza. Prosta bryła budynku sprawia, że dom prezentuje się elegancko i stylowo. Jednocześnie, dzięki dużym przeszkleniom, dom jest jasny i przestronny.
Otwarta część dzienna to serce domu. Salon z jadalnią i kuchnią tworzą jedno, przestronne pomieszczenie, które sprzyja rodzinnym spotkaniom i wspólnemu spędzaniu czasu. Salon i sypialnia na parterze mają wyjścia na taras, co zapewnia mieszkańcom dostęp do świeżego powietrza i słońca.
Projekt Erna - dom z potencjałem
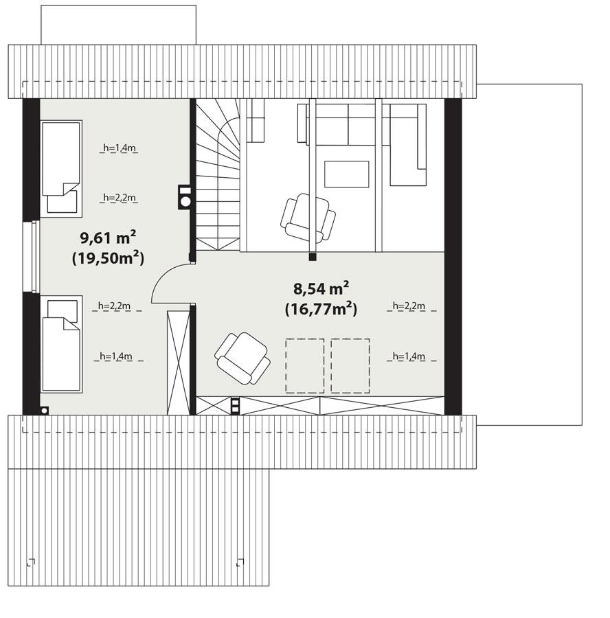
Dom Erna to dom z potencjałem, który można dowolnie aranżować. Dzięki otwartej przestrzeni dziennej i licznym przeszkleniom dom ten jest jasny i przestronny. Na parterze znajdują się dwie sypialnie, otwarta część dzienna z aneksem kuchennym oraz łazienka. Antresola może być wykorzystana na dodatkowe pomieszczenia, takie jak sypialnia, gabinet czy pokój dla gości.
Projekt Erna - dom dla rodziny i przyjaciół
Erna to dom idealny dla rodziny i przyjaciół. Przestronna część dzienna to idealne miejsce do wspólnego spędzania czasu. Można tam urządzić kącik do wypoczynku, jadalnię czy salon. Na antresoli można urządzić pokój dla dzieci, gabinet lub miejsce do pracy.
Projekt Erna - dom całoroczny lub letniskowy
Erna to dom, który można użytkować przez cały rok. Jest dobrze ocieplony i wyposażony w pompę ciepła oraz kominek. Dzięki temu dom ten jest energooszczędny i komfortowy w użytkowaniu. Erna to również doskonały wybór dla osób, które chcą wybudować domek letniskowy. Jest to niewielki dom, który można łatwo ogrzać i utrzymać w nim odpowiednią temperaturę.
Projekt domu Erna to doskonały wybór dla osób szukających kompaktowego domu z poddaszem. Dom ten jest funkcjonalny, estetyczny i niedrogi w budowie. Erna to dom, który spełni wszystkie oczekiwania nawet najbardziej wymagających klientów.


















