Erna 3 drewniana wraz z budową
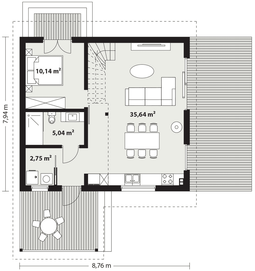
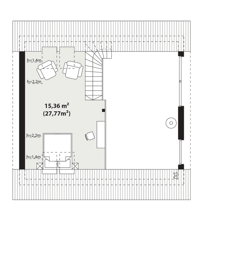
Erna 3 drewniana to uroczy (tutaj możesz nabyć sam projekt domu Erna 3 drewniana), niewielki dom jednorodzinny lub letniskowy, który oferujemy z kompleksową budową w technologii drewnianej szkieletowej. Dom ten charakteryzuje się praktycznym rozkładem, obejmującym sypialnię na parterze oraz przestronną część dzienną z antresolą, gdzie możesz realizować własne aranżacje. Z powierzchnią zabudowy wynoszącą 69,5 m², projekt ten jest dostosowany do budowy na zgłoszenie. Duże przeszklenie w ścianie szczytowej dostarcza obfitą ilość naturalnego światła, a wejście przez zadaszony taras umożliwia umiejscowienie domu z różnych stron. Standardowo wyposażony jest w pompę ciepła i kominek, zapewniając komfort i energooszczędność
Kup projekt domu wraz z jego wybudowaniem
Nasza oferta łączy projekt z budową, co oznacza, że możesz zaoszczędzić czas i nerwy, nie martwiąc się o koordynację różnych etapów budowy. Zaczynając od wyboru projektu, przechodząc przez formalności związane z pozyskiwaniem pozwolenia na budowę, aż do finalnej realizacji – jesteśmy z Tobą na każdym kroku. To gwarancja doskonałej harmonii i precyzji w procesie budowlanym.
Dostępność na terenie całej Polski i Europy
Niezależnie od tego, gdzie marzysz o budowie swojego domu – w Polsce czy w dowolnym miejscu w Europie – jesteśmy gotowi spełnić Twoje marzenia. Nasza firma posiada rozległą sieć partnerów i dostawców, co pozwala nam na budowę domów na terenie całej Polski i poza jej granicami. Niezależnie od lokalizacji, możesz polegać na naszym profesjonalizmie.
Rozsądne ceny, wysoki standard
Jednym z naszych atutów są atrakcyjne ceny w połączeniu z bardzo wysokim standardem. W Ecodom wierzymy, że jakość nie musi iść w parze z wysokimi kosztami. Nasza oferta jest dostępna dla różnych budżetów, dzięki czemu każdy może cieszyć się komfortem i jakością budowanego przez nas domu. Dla nas priorytetem jest zadowolenie klienta, dlatego oferujemy rozwiązania, które spełnią Twoje oczekiwania, nie obciążając jednocześnie Twojego portfela.
Dlaczego My?
Wybierając Ecodom i wybieramprojekt.pl, wybierasz partnerów, którzy zrozumieli Twoje potrzeby. Nasza wspólna oferta łączy innowacyjne podejście do projektowania z tradycją rzemieślniczą w budowie. Nasz zespół skupia się na dostarczeniu Tobie rozwiązań, które będą funkcjonalne, energooszczędne i dostosowane do Twojego stylu życia.
Jeśli marzysz o własnym domu, który spełni Twoje oczekiwania pod względem komfortu i jakości, a jednocześnie chcesz uniknąć zawiłości i problemów związanych z budową, to oferta Ecodom i wybieramprojekt.pl jest dla Ciebie. Zapraszamy do kontaktu i wspólnego rozpoczęcia tej niezwykłej przygody, jaką jest budowa własnego domu. Czekamy na Ciebie!
Projekty domów jednorodzinnych Nasza pracownia oferuje szeroki wybór projektów domów jednorodzinnych, które spełnią oczekiwania każdego inwestora. W naszej ofercie znajdują się domy parterowe, z poddaszem i piętrowe, o powierzchni użytkowej od 50 do ponad 200 m2. Domy jednorodzinne z naszej pracowni charakteryzują się wysoką funkcjonalnością i estetyką. Przy ich projektowaniu uwzględniliśmy wszystkie potrzeby domowników, dbając o to, aby każdy dom był idealnym miejscem do życia. Projekty w technologii drewnianej Drewniane domy jednorodzinne to coraz popularniejsze rozwiązanie. Drewno jest materiałem naturalnym, który zapewnia komfortowy i zdrowy mikroklimat w domu. Domy drewniane są również energooszczędne, co przekłada się na niższe koszty eksploatacji. W naszej pracowni oferujemy projekty domów drewnianych w różnych stylach, od klasycznych po nowoczesne. Projekty jednorodzinne w technologii tradycyjnej Domy jednorodzinne w technologii tradycyjnej to sprawdzone rozwiązanie, które cieszy się niesłabnącą popularnością. Domy te są trwałe i solidne, a ich budowa jest stosunkowo niedroga. W naszej pracowni oferujemy projekty domów jednorodzinnych w technologii tradycyjnej w różnych stylach, od klasycznych po nowoczesne. Projekty typu nowoczesna stodoła Domy typu nowoczesna stodoła to nowoczesne i stylowe rozwiązanie, które zyskuje coraz więcej zwolenników. Domy te charakteryzują się prostą bryłą i dużymi przeszkleniami, które zapewniają mnóstwo światła dziennego. W naszej pracowni oferujemy projekty domów typu nowoczesna stodoła w różnych rozmiarach i stylach. Domy ekonomiczne Domy ekonomiczne to rozwiązanie dla osób, które chcą wybudować dom bez nadmiernego obciążania swojego budżetu. Domy te są zaprojektowane tak, aby były energooszczędne i łatwe w budowie. W naszej pracowni oferujemy projekty domów ekonomicznych w różnych stylach i rozmiarach.









