Budowa domu Jaskółka 1 odbywa si ę w systemie szkieletowym energooszczędnym. System ten charakteryzuje się następującymi zaletami:
- Szybki czas budowy
- Niska waga konstrukcji, co ułatwia transport i montaż
- Wysoka jakość i trwałość
- Doskonała izolacja termiczna
Pełna karta projektu: https://wybieramprojekt.pl/gotowe-projekty/domy-jednorodzinne/25090/jaskoka-1-z-garazem-25090
Termin realizacji budowy Jaskółka 1 to ok. 3 miesiące. Warto! Drewno najlepszej klasy. Rzetelnośc wykonania i szybkosć realizajci budowy domu Jaskółka 1 to niepodwarzalne atuty oferty.
- Możliwość dostosowania projektu do indywidualnych potrzeb i wymagań inwestora
- Możliwość budowy domu z wykorzystaniem materiałów pochodzących z recyklingu
- Możliwość uzyskania dofinansowania na budowę domu
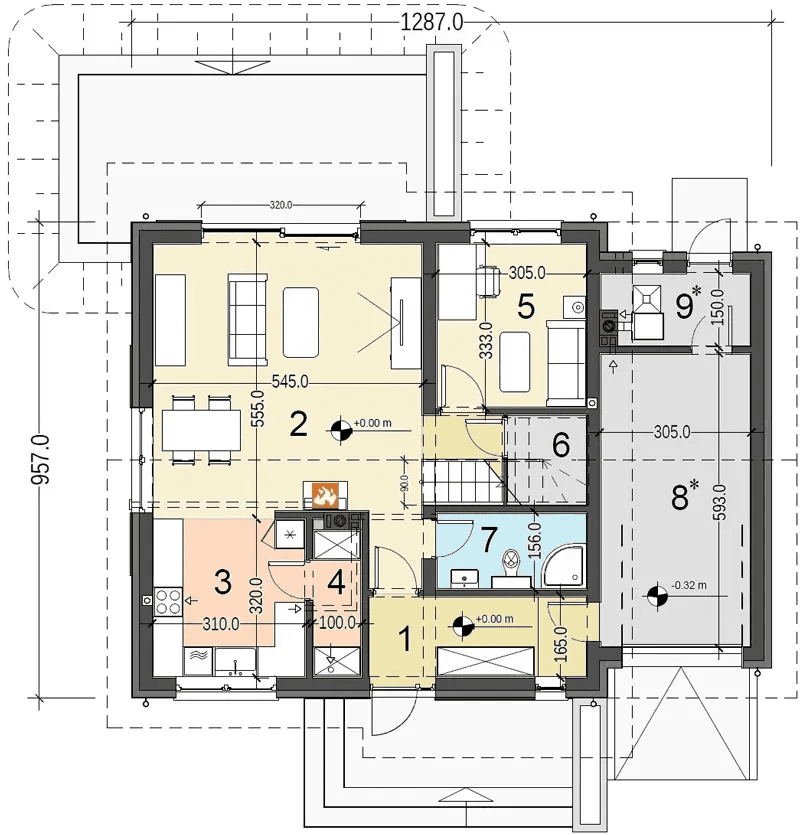
Oferujemy Państwu budowę domu Jaskółka 1 w systemie szkieletowym energooszczędnym. Dom jest parterowy z użytkowym poddaszem, ma powierzchnię użytkową około 159 m2, w tym powierzchnia garażu około 17,90 m2. Ściany wewnętrzne są możliwe do przesunięcia lub zmiany układu na etapie projektu.
Napisz do nas, określ lokalizację i uzyskaj od nas wycenę budowy Jaskółka 1: budowa@wybieramprojekt.pl
Projekty domów jednorodzinnych Nasza pracownia oferuje szeroki wybór projektów domów jednorodzinnych, które spełnią oczekiwania każdego inwestora. W naszej ofercie znajdują się domy parterowe, z poddaszem i piętrowe, o powierzchni użytkowej od 50 do ponad 200 m2. Domy jednorodzinne z naszej pracowni charakteryzują się wysoką funkcjonalnością i estetyką. Przy ich projektowaniu uwzględniliśmy wszystkie potrzeby domowników, dbając o to, aby każdy dom był idealnym miejscem do życia. Projekty w technologii drewnianej Drewniane domy jednorodzinne to coraz popularniejsze rozwiązanie. Drewno jest materiałem naturalnym, który zapewnia komfortowy i zdrowy mikroklimat w domu. Domy drewniane są również energooszczędne, co przekłada się na niższe koszty eksploatacji. W naszej pracowni oferujemy projekty domów drewnianych w różnych stylach, od klasycznych po nowoczesne. Projekty jednorodzinne w technologii tradycyjnej Domy jednorodzinne w technologii tradycyjnej to sprawdzone rozwiązanie, które cieszy się niesłabnącą popularnością. Domy te są trwałe i solidne, a ich budowa jest stosunkowo niedroga. W naszej pracowni oferujemy projekty domów jednorodzinnych w technologii tradycyjnej w różnych stylach, od klasycznych po nowoczesne. Projekty typu nowoczesna stodoła Domy typu nowoczesna stodoła to nowoczesne i stylowe rozwiązanie, które zyskuje coraz więcej zwolenników. Domy te charakteryzują się prostą bryłą i dużymi przeszkleniami, które zapewniają mnóstwo światła dziennego. W naszej pracowni oferujemy projekty domów typu nowoczesna stodoła w różnych rozmiarach i stylach. Domy ekonomiczne Domy ekonomiczne to rozwiązanie dla osób, które chcą wybudować dom bez nadmiernego obciążania swojego budżetu. Domy te są zaprojektowane tak, aby były energooszczędne i łatwe w budowie. W naszej pracowni oferujemy projekty domów ekonomicznych w różnych stylach i rozmiarach.














