Projekt Jaskółka 1 z garażem - funkcjonalny projekt domu z poddaszem
Dom Jaskólka 1 z garażem to funkcjonalny projekt domu jednorodzinnego, który idealnie sprawdzi się dla 4-5 osobowej rodziny. Prosta, zwarta bryła budynku jest przekryta dwuspadowym dachem, który zapewnia wystarczającą ilość miejsca na poddaszu.
Wygodny i tani w budowie
Dom Jaskólka 1 z garażem to wygodny i tani w budowie dom. Prosta bryła budynku i zastosowanie nowoczesnych materiałów budowlanych sprawiają, że koszty budowy są stosunkowo niskie.
Funkcjonalność domu:
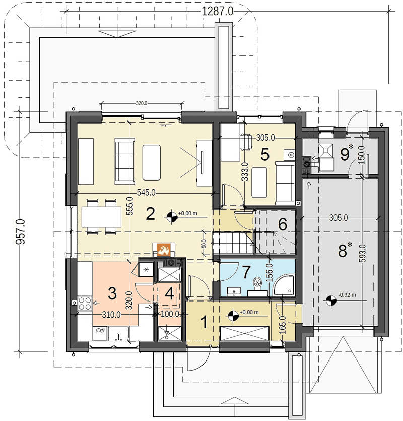
- Strefa dzienna na parterze. Na parterze znajduje się strefa dzienna, która składa się z salonu z jadalnią oraz kuchni. Salon jest przestronny i jasny, dzięki dużym przeszkleniom wychodzącym na ogród. Do salonu przylega jadalnia, która może być również wykorzystywana jako dodatkowy pokój gościnny. Kuchnia jest funkcjonalna i wyposażona w niezbędne sprzęty.
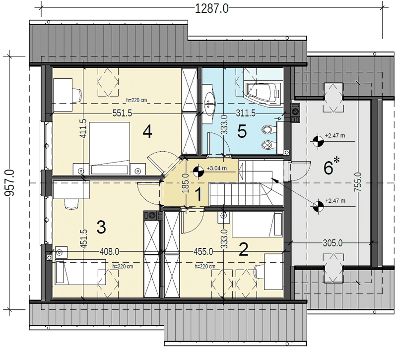
- Strefa nocna na poddaszu. Na poddaszu znajduje się strefa nocna, która składa się z trzech sypialni, dwóch łazienek oraz garderoby. Sypialnie są przestronne i zapewniają komfortowy wypoczynek. Łazienki są wyposażone w wannę, prysznic, umywalkę i WC. Garderoba zapewnia miejsce na przechowywanie ubrań i dodatków.
- Strych użytkowy. Nad pomieszczeniem garażu znajduje się strych użytkowy, który można przeznaczyć na dodatkowy pokój lub pomieszczenie rekreacyjne.
Koszty budowy
- Koszty budowy domu Jaskólka 1 z garażem są stosunkowo niskie. Dom jest prosty w budowie, co pozwala na ograniczenie kosztów robocizny. Dodatkowo, dom jest energooszczędny, co przekłada się na niższe koszty eksploatacji.
Dom Jaskólka 1 z garażem to funkcjonalny i wygodny dom, który jest idealny dla 4-5 osobowej rodziny. Dom jest prosty w budowie i energooszczędny, co przekłada się na niskie koszty budowy i eksploatacji.
Jaskólka 1 z garażem - komfort i wygoda w rozsądnej cenie
Opinie na temat projektu:
- "Dom jest bardzo dobrze zaprojektowany. Na parterze mamy przestronną strefę dzienną z dużymi oknami, w której możemy spędzać czas z rodziną i przyjaciółmi. Na poddaszu znajdują się trzy sypialnie, łazienka i strych użytkowy. Mamy więc wystarczająco dużo miejsca dla wszystkich domowników. Jestem bardzo zadowolona z naszego wyboru. W domu Jaskólka 1 czujemy się wygodnie i komfortowo. To idealne miejsce do życia dla naszej rodziny." - Mirosława
- "Szukaliśmy projektu domu, który byłby funkcjonalny, wygodny i niedrogi w budowie. I znaleźliśmy! Dom Jaskólka 1 z garażem to prawdziwy hit." - Ania
"Dobre projekty powstają w doświadczonych pracowniach. Projektujemy domy już od 15 lat"















