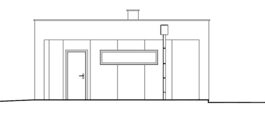
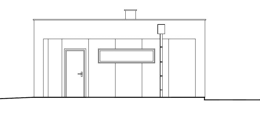
Projekt BK-8 to nowoczesny garaż dwustanowiskowy o parterowej konstrukcji. Projekt ten został stworzony w celu harmonijnego wpasowania się w naszą ofertę projektów domów, dzięki charakterystycznej ramie w części frontowej oraz wykończeniu wykonanemu z tynków cienkowarstwowych w kolorze białym i okładzin z płyt.
Styl garażu BK-8 doskonale współgra z naszymi projektami domów, prezentując nowoczesną i estetyczną estetykę. Charakterystyczna rama w części frontowej nadaje mu wyjątkowy wygląd, podkreślając jego współczesny charakter. Elewacja garażu została starannie wykonana z tynków cienkowarstwowych w kolorze białym, które w połączeniu z okładzinami z płyt tworzą elegancki i atrakcyjny wygląd.
BK-8 to idealne rozwiązanie dla tych, którzy potrzebują garażu dwustanowiskowego, który doskonale wpisuje się w nowoczesną estetykę. Projekt ten zapewnia wystarczającą przestrzeń na zaparkowanie dwóch pojazdów, jednocześnie prezentując atrakcyjny wygląd zewnętrzny.
Projekty domów piętrowych, domów z poddaszem i parterowych w nowoczesnej odsłonie. Porjekty domów nowoczesnych i energooszczędnych
















