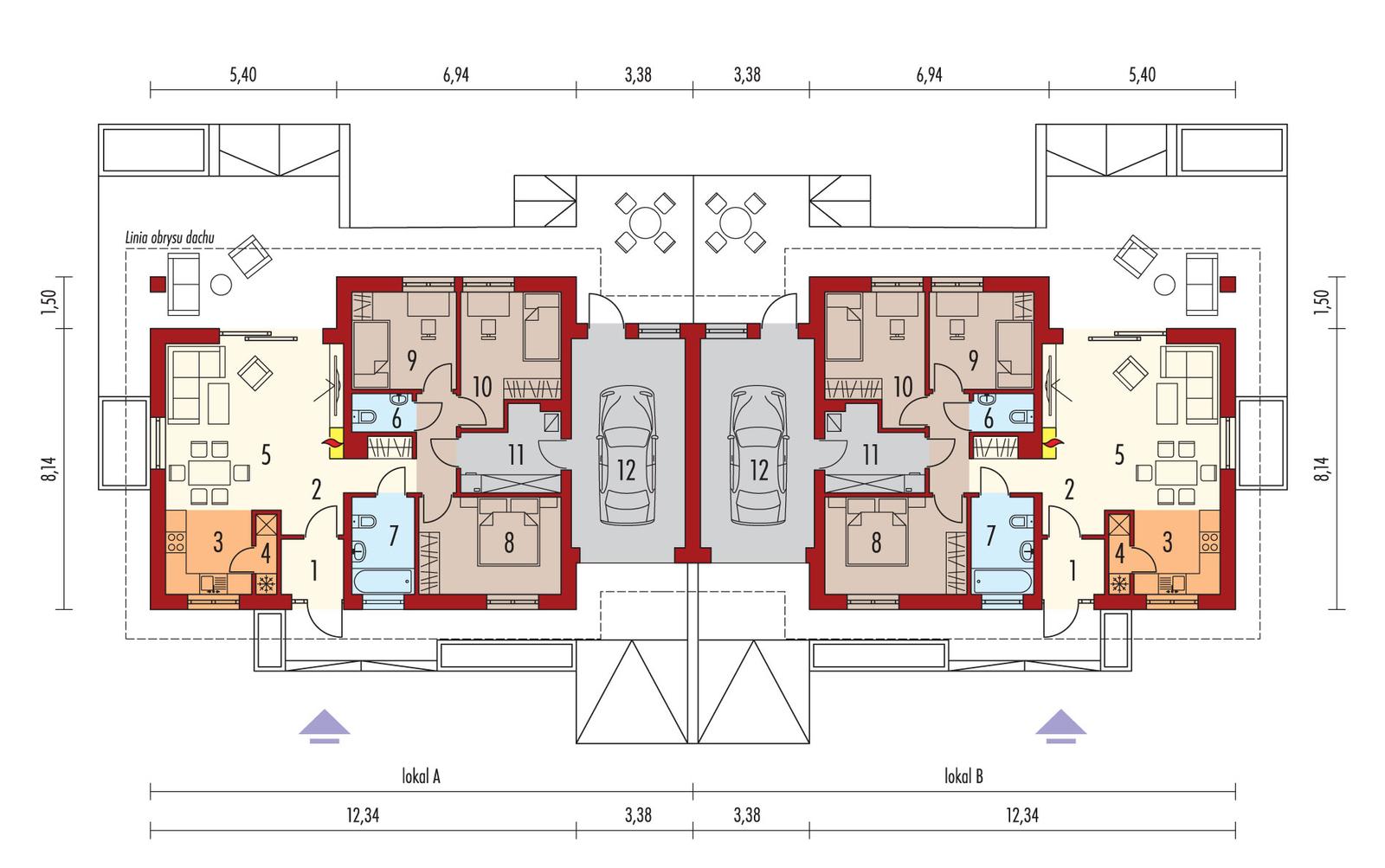
Dane powierzchniowe dotyczą całości budynku (obydwu lokali).
Powierzchnie poszczególnych pomieszczeń na rzutach podano dla pojedynczego lokalu.
Powierzchnia użytkowa każdego lokalu: 78,95 m².
Koszty budowy oraz cena dokumentacji dotyczą całości budynku (obydwu lokali).
Charakterystyka: Dom
parterowy, niepodpiwniczony, dwulokalowy z dwoma stanowiskami postojowymi w
bryle budynku (1 stanowisko garażowe na lokal)
Przeznaczenie: Dom dla dwóch rodzin 3-4
osobowych
Technologia
i konstrukcja:
Ściany
zewnętrzne: murowane, dwuwarstwowe, beton komórkowy firmy H+H 24
cm, ocieplenie styropian Termo Organika 20 cm
Ściany wewnętrzne: nośne i działowe
murowane, beton komórkowy firmy H+H 24 cm i 12 cm
Strop: drewniany (dolny pas wiązara drewnianego
prefabrykowanej więźby), ocieplenie wełna mineralna Isover 30 cm
Dach: dachówka ceramiczna firmy Röben, więźba drewniana
prefabrykowana z wiązarów kratowych
Rozwiązania
instalacyjne:
Ogrzewanie:
kocioł gazowy kondensacyjny firmy Viessmann, rozprowadzenie ciepła:
grzejniki firmy Purmo
Wentylacja:
grawitacyjna
OZE: kolektory słoneczne firmy Viessmann
Dodatkowo: stacja uzdatniania wody firmy Viessmann
Wykończenie:
Elewacje:
tynk cienkowarstwowy mineralny w kolorze białym TO-PA 001 i TO-GY001 z
palety firmy Termo Organika, okładzina drewniana
Stolarka: drewniana, PVC lub aluminiowa, drzwi wejściowe i brama garażowa
firmy Hörmann
Otoczenie: kostka betonowa i płyty tarasowe firmy Libet, system
tarasowy ProDeck - deska kompozytowa Terra w kolorze orzech
Wersje domów (jednolokalowych) w serii Mini 1 G2
(dwulokalowy) – zapytaj o dostępność:
- Mini 1 G1 – wersja podstawowa,
dach wielospadowy o kącie nachylenia 30°
- Mini 1 G1 (wiązary)– taki sam układ funkcjonalny, system suchej zabudowy
wiązary prefabrykowane,
dach wielospadowy o kącie nachylenia 30°
- Mini 1 – wersja podstawowa, dach wielospadowy o kącie nachylenia 30°
- Mini 1 (wiązary) – taki sam układ funkcjonalny, system suchej zabudowy ścian
działowych Rigips,
wiązary prefabrykowane,
rozwiązania materiałowo-technologiczne Grupy Saint-Gobain
- Mini 1 MODERN PLUS - podobny układ funkcjonalny, dach płaski, energooszczędne
instalacje firmy Viessmann: pompa ciepła, wentylacja mechaniczna, panele
fotowoltaiczne oraz ogrzewanie podłogowe firmy Purmo
- wszystkie wersje o
podobnym układzie funkcji oraz z inną propozycją wykończenia elewacji
- wszystkie wersje z trzema wariantami garaży: bez garażu, z garażem jedno- i
dwustanowiskowym
- odbicie lustrzane do każdej wersji
Wszystkie wersje domów możliwość w dwóch standardach/wariantach
instalacyjnych:
- ENERGO: kocioł gazowy kondensacyjny, grzejniki, wentylacja
grawitacyjna, OZE: kolektory słoneczne
- ENERGO PLUS: pompa ciepła, ogrzewanie podłogowe, wentylacja
mechaniczna, OZE: panele fotowoltaiczne
Istnieją techniczne możliwości
wykonania zmian:
- podpiwniczenia budynku
- zmiany kąta nachylenia dachu i adaptacji poddasza na cele mieszkalne
- wykonania budynku w technologii szkieletowej
- zbliźniaczenia lub wykonania domu dwulokalowego
- dokonania zmian funkcjonalnych wg indywidualnych wymagań













