Projekt Igor Duolit to przemyślana propozycja dwulokalowego domu jednorodzinnego o piętrowej kondygnacji, inteligentnie adaptująca układ bliźniaczy znany z wariantu Igor Duo.
To solidne rozwiązanie dla inwestorów poszukujących funkcjonalnych i estetycznie spójnych przestrzeni mieszkalnych.
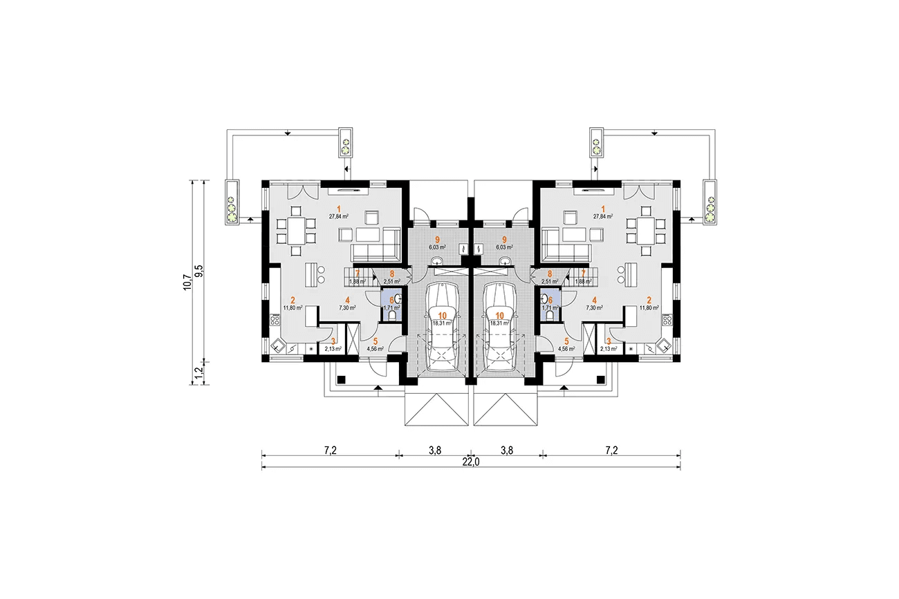
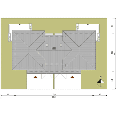
Bryła budynku charakteryzuje się klarownym podziałem na dwa niezależne lokale, z przesuniętym wolumenem garażu z kotłownią w części frontowej, co determinuje indywidualny charakter każdego z mieszkań.
Parter każdego lokalu został starannie rozplanowany, minimalizując zamknięte przestrzenie na rzecz maksymalizacji poczucia otwarcia i doświetlenia. Poza niezbędnym przedsionkiem i WC, jedyną wydzieloną strefą jest przestrzeń pod biegiem schodów, optymalnie wykorzystująca kubaturę. Salon stanowi przestronne serce domu, z trójstronną ekspozycją okienną, zapewniającą obfite naturalne światło. Kuchnia została zaprojektowana z naciskiem na ergonomię pracy, oferując znaczną powierzchnię roboczą oraz dedykowaną spiżarnię. Centralnym elementem jest barek śniadaniowy, ułatwiający codzienne funkcjonowanie.
Strefa nocna została funkcjonalnie rozdzielona poziomami dzięki biegom schodowym o zróżnicowanej długości. Na pośrednim poziomie zlokalizowano dodatkowy pokój z własną łazienką i pralnią, zapewniający komfort i niezależność. Wyższa kondygnacja mieści trzy komfortowe sypialnie, tworząc prywatną strefę wypoczynku.
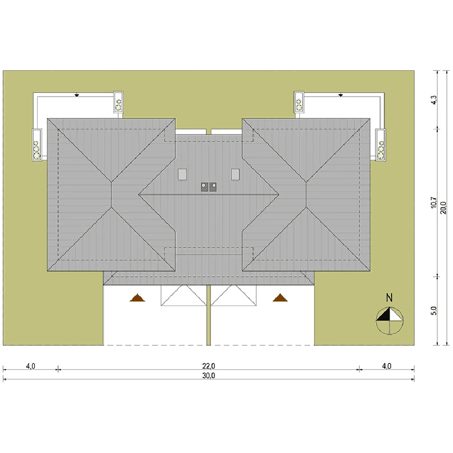
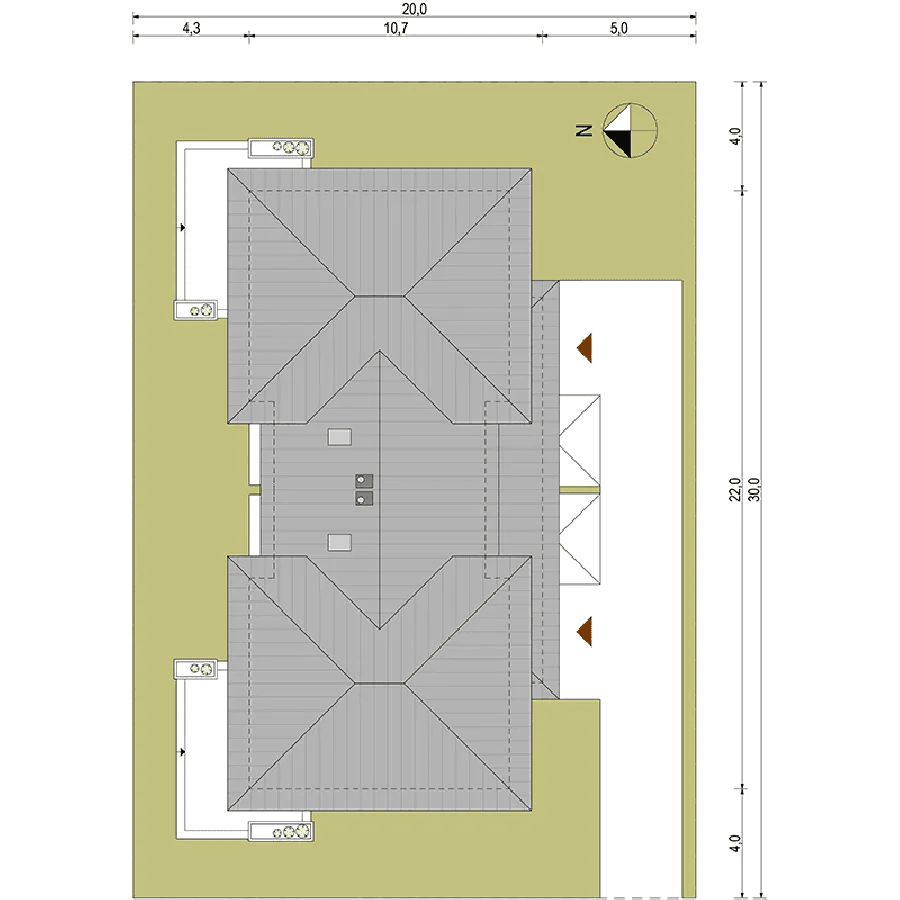
Forma architektoniczna Igora Duolit opiera się na zdyscyplinowanych prostopadłościanach, przykrytych czterospadowymi dachami o umiarkowanym nachyleniu i krótkiej kalenicy, co nadaje budynkowi spokojny i wyważony charakter. Oddzielne wejścia główne, zaakcentowane daszkami wspartymi na słupach i dyskretnie oddzielone garażami, podkreślają niezależność każdego lokalu. Narożne okna salonu i kuchni pełnią nie tylko funkcję doświetlającą, ale również wizualnie oddzielają przestrzenie, zwiększając poczucie prywatności.
Nowoczesny charakter projektu podkreślają wielkoformatowe narożne przeszklenia oraz eleganckie balustrady szklane, zastępujące tradycyjne balkony, co nadaje całości współczesny i reprezentacyjny wygląd o willowym charakterze. Projekt Igor Duolit to solidna baza, oferująca dwa wygodne i funkcjonalne lokale, idealne dla rodzin ceniących sobie zarówno wspólnotę, jak i prywatność.
POWIERZCHNIA CAŁKOWITA 402.9 m²
POWIERZCHNIA ZABUDOWY 212.5 m²
POWIERZCHNIA TARASU 70 m²
KUBATURA 1348.8 m³
WYSOKOŚĆ BUDYNKU 8.16 m
POWIERZCHNIA DACHU 308 m²
KUBATURA DREWNA NA WIĘŹBĘ 16 m³
EP 69.04 kWh/(m² rok)
WSPÓŁCZYNNIK PRZENIKANIA CIEPŁA ŚCIAN 0.1700
WSPÓŁCZYNNIK PRZENIKANIA CIEPŁA DACHU 0.1500
SZEROKOŚĆ BUDYNKU 21.9 m
DŁUGOŚĆ BUDYNKU 10.7 m





















