Sara 2 - bliźniak L.LL
Specyfikacja i charakterstyka projektu

Kurs Budowy Domu (o wartości 479 zł) w prezencie!
Oferta ważna tylko do 31.12!
Parametry podstawowe
Wizualizacja projektu





Parametry techniczne projektu

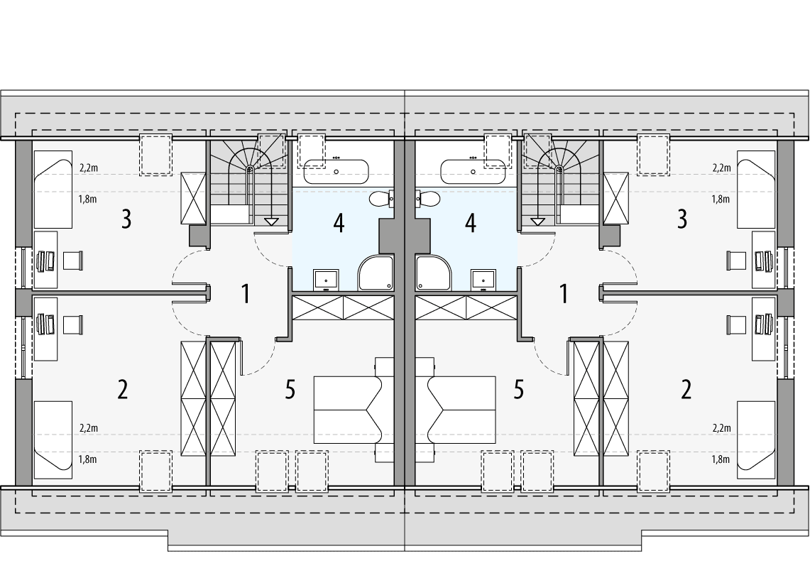
Rzuty projektu - kondygnacje i działka



📂 Uzyskaj rysunki szczegółowe do projektu
Szczegółowy opis projektu
Powiązane kategorie
Informacje szczegółowe
➡ Najczęściej wprowadzane zmiany, warianty i adaptację projektu
💰 Szacunkowy koszt realizacji budowy projektu
🚀 Wycena budowy projektu w technologii szkieletowej/modułowej
Zalety zakupu projektu na wybieramprojekt.pl
Nasze biuro posiada szeroki zakres usług związanych z adaptacją gotowych projektów do warunków konkretnej działki, doradztwem w zakresie kosztorysów i technologii oraz budową domu. Do zakupu każdego projektu dodajemy również obszerny pakiet korzyści.
Pakiet korzyści w zestawie przy zakupie projektu
Uzyskaj informacje o korzystnych kredytach na budowę domu
Skorzystaj z bezpłatnej pomocy eksperta finansowego
💼 Zawartość gotowego projektu architektoniczno-budowlanego
Każdy PROJEKT GOTOWY to wysokiej jakości dokumentacja architektoniczno-techniczna sporządzona wedle wytycznych Prawa Budowlanego, pozwalajaca złożyć dokumentację w urzędzie do zgłoszenia budowy lub do pozwolenia na budowę. Wszystkie nasze projekty gotowe i projekty gotowe autorów, z którymi współpracujemy są zweryfikowane i posiadają zaświadczenie o zgodności projektu z PB. Dostępność i aktualizacje każdego projektu są indywidualnie potwierdzane.
Każdy gotowy projekt jest zgodny z Prawem Budowlanym i zawiera:
- Projekt opisowo-architektoniczny
- Projekt techniczny
- Zgodę na modyfikację projektu i adaptację
- Kopię uprawnień architektów i branżystów
- Projekty domów posiadają charakterystykę energetyczną (brak w projektach garaży i gospodarczych)
Szczegółową zawartość projektu możesz sprawdzić na stronie:
Zawartość projektu gotowego
Każdy projekt gotowy domu jednorodzinnego możemy zanalizować pod kątem zgodności z działką i omówić zmiany planowane w projekcie. Z nami zyskujesz kompleksowo bezpieczeństwo zakupu projektu!
✍🏻 Standardowa zgoda na zmiany do projektu
Co możesz modyfikować?
Standardowa zgoda to szeroki zakres możliwości. Pamiętaj od nas UZYSKASZ INDYWIDUALNĄ DODTAKOWĄ ZGODĘ BEZPŁATNIE na Twoje życzenie.
STANDARDOWO DOŁĄCZANA ZGODY NA ZMIANY obejmuje:
- zmianę funkcji użytkowania pomieszczeń,
- zmiany technologiczne i materiałowe - rodzaj stropu, materiały ścienne, izolacyjne i wykończeniowe, pokrycie dachowe,
- dostosowanie posadowienia budynku do warunków geotechnicznych,
- wykonanie podpiwniczenia budynku,
- zmiany usytuowania ścian działowych,
- zmiana wielkości, ilości i lokalizacji otworów drzwiowych i okiennych,
- zmiana nachylenia kąta połaci dachowej do 5 stopni,
- zmiany w wymiarach zewnętrznych budynku w zakresie 5%,
- zmiana materiałów instalacyjnych i przebiegu instalacji wewnętrznych.
- Warto uzyskać dodatkowa zgodę na zmiany* :
- zmianę sposobu ogrzewania budynku,
- zmianę usytuowania kominów,
- likwidację/doprojektowanie balkonów, podcieni, lukarn,
- zmianę usytuowania i kształtu tarasu,
- podniesienie ścianki kolankowej,
- zmianę wysokości budynku.
w/w zmiany pojawiają się bardzo często już na etapie wykonywania adaptacji, czy też realizacji budowy.
Potrzebujesz więcej informacji technicznych dotyczących projektu, by zamówić projekt domu, zapraszamy. Informację dotyczące warunków zakupu i zwrotów dostępne są na stronie Regulaminu, o szczegółach dotyczących czasu realizacji projektu, warunków zakupu i warunków wymian lub zwrotów poinformuje doradca po sprawdzeniu konkretnych warunków zakładanych przez konkretnego autora projektu.
Warunki zwrotów
Zwrot: do 30 dni Kupującemu przysługuje możliwość zwrotu zakupionego projektu na następujących warunkach: Kupujący, który zawarł umowę sprzedaży może od niej odstąpić bez podania przyczyn, z pełnym zwrotem kosztów projektu, składając stosowne oświadczenie na piśmie, w terminie 14 dni kalendarzowych od dnia wydania projektu. Zwracany projekt musi być w stanie nienaruszonym, czyli bez żadnych wpisów, pieczątek, skreśleń itp. W przypadku zwrotu jednego z projektów, które zostały zakupione z rabatem przyznanym z racji zamówienia więcej niż jednego projektu – wówczas zwracana kwota pieniędzy pomniejszana jest o całą wysokość rabatu przyznanego z tytułu tego zamówienia. Zwrot projektu może nastąpić tylko na podstawie ważnego dokumentu sprzedaży (paragonu lub faktury) Zwrotowi nie podlegają projekty indywidualne i gotowe projekty zmieniane indywidualnie na życzenie Kupującego.
Wymiana: do 365 dni Kupującemu przysługuje możliwość wymiany zakupionego projektu na następujących zasadach: Istnieje możliwość tylko jednokrotnej wymiany projektu na inny z oferty tego autora w ciągu 12 miesięcy od daty jego zakupu. Warunkiem wymiany jest przesłanie kompletnego projektu Wymiana projektu w ciągu 30 dni kalendarzowych traktowana jest jako zwrot (zasady zwrotów opisane powyżej), nie podlega kosztom manipulacyjnym, a poniesiony koszt – cena zwracanego kompletnego i nienaruszonego (bez 4 wpisów, skreśleń i pieczątek) projektu – zaliczana jest na poczet nowego projektu wg aktualnego cennika, z oferty tego samego autora. Po 30 dniach kalendarzowych od daty zakupu, w okresie 12 miesięcy wymiana kompletnego projektu na inny z oferty Horyzont wiąże się z opłatą manipulacyjną równą 50% wartości projektu.
Jeśli wystąpi różnica w cenie wymienianych projektów (np. wymiana projektu z tańszego na droższy), Kupujący dopłaca różnicę wg aktualnego cennika autora, przy czym za cenę projektu wymienianego przyjmuje się cenę, za którą Klient kupił uprzednio projekt. Oznacza to, że rabat udzielony na zakup wymienianego projektu obniża wartość kwoty zaliczanej na poczet zakupu nowego projektu. W przypadku wymiany projektu z droższego na tańszy autor nie zwraca różnicy w cenie.
Informacje ogólne dotyczące działania sklepu internetowego zawarte są na stronie Regulaminu






