Powierzchnie
i pozostałe dane liczbowe podano dla pojedynczego domu (połowa bliźniaka).
Koszty budowy dotyczą pojedynczego domu (połowa bliźniaka).
Cena dokumentacji technicznej obejmuje obydwa domy.
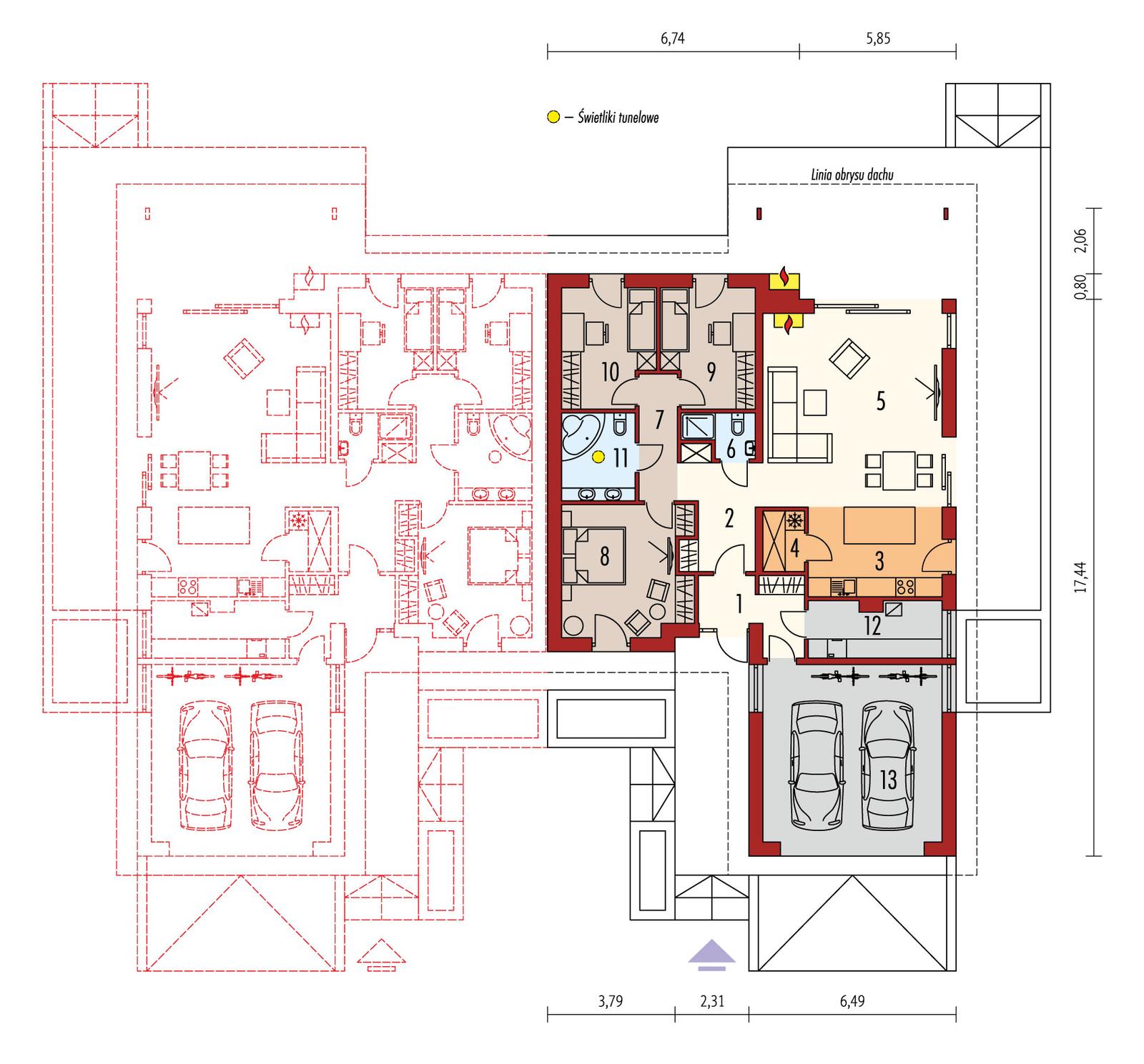
Charakterystyka: Dom jednorodzinny w zabudowie
bliźniaczej, parterowy, niepodpiwniczony, każdy segment z garażem dwustanowiskowym
Przeznaczenie: Każdy segment dla 3-4-osobowej rodziny
Technologia
i konstrukcja:
Ściany zewnętrzne: murowane, dwuwarstwowe, beton komórkowy firmy H+H 24 cm,
ocieplenie styropian Termo Organika 20 cm
Ściany wewnętrzne: nośne i działowe murowane, beton komórkowy firmy H+H
24 cm i 12 cm
Strop: gęstożebrowy Teriva, ocieplenie wełna mineralna Isover 30 cm
Dach: konstrukcja drewniana, dachówka ceramiczna płaska Bergamo firmy
Röben, więźba dachowa dostępna również w systemie prefabrykacji drewnianej
Rozwiązania
instalacyjne:
Ogrzewanie: kocioł gazowy kondensacyjny firmy Viessmann, rozprowadzenie
ciepła: grzejniki firmy Purmo
Wentylacja: grawitacyjna
OZE: kolektory słoneczne
Wykończenie:
Elewacje: tynk cienkowarstwowy mineralny w kolorze białym TO-PA001 i
grafitowym TO-GY011 z palety firmy Termo Organika, okładzina drewniana w
pionowym układzie desek
Stolarka: drewniana, PVC lub aluminiowa, rolety zewnętrzne w systemie
CleverBox firmy BeClever, drzwi wejściowe i brama garażowa firmy Hörmann,
świetliki tunelowe firmy Velux Pobierz ekspercki poradnik VELUX i dowiedz się jak wybrać okna dachowe
Otoczenie: kostka betonowa i płyty tarasowe firmy Libet, system tarasowy
ProDeck - deska kompozytowa Terra w kolorze orzech
Wersje domów w
serii Simon - zapytaj o dostępność:
- Simon – dom z poddaszem do adaptacji, 3 sypialnie, dach o kącie
nachylenia 30°
- Simon II – dom z poddaszem użytkowym, 3 sypialnie + gabinet, dach
o kącie nachylenia 35°
- Simon III – dom parterowy, 4 sypialnie, dach o kącie nachylenia
25°
- Simon IV – dom parterowy, 3 sypialnie, dach o kącie nachylenia
25°
- Simon (mały) – dom z poddaszem do adaptacji, mniejsza
powierzchnia użytkowa, 3 sypialnie, dach o kącie nachylenia 35°
- Simon III (wiązary) – system suchej zabudowy ścian
działowych Rigips, wiązary prefabrykowane, rozwiązania
materiałowo-technologiczne Grupy Saint-Gobain, układ funkcji jak w domu Simon
III G2, dom parterowy, 4 sypialnie, dach o kącie nachylenia 25°
- Simon IV (bliźniak) – dom parterowy w zabudowie bliźniaczej, 3
sypialnie, dach o kącie nachylenia 25°
- Simon 01 (dwulokalowy) – dom z dwoma mieszkaniami, z poddaszem do
adaptacji, dach o kącie nachylenia 30°
– wszystkie wersje o podobnym układzie funkcji oraz
z inną propozycją wykończenia elewacji
– wszystkie wersje z trzema wariantami garaży: bez garażu, z
garażem jedno- i dwustanowiskowym (wyjątek: dom dwulokalowy – tylko w wariancie
bez garażu)
– odbicie lustrzane do każdej wersji
Wszystkie wersje
domów możliwe w dwóch standardach/wariantach instalacyjnych:
- ENERGO: kocioł gazowy kondensacyjny, grzejniki, wentylacja
grawitacyjna, OZE: kolektory słoneczne
- ENERGO PLUS: pompa ciepła, ogrzewanie podłogowe, wentylacja
mechaniczna, OZE: kolektory słoneczne lub panele fotowoltaiczne
Istnieją techniczne możliwości wykonania zmian:
– podpiwniczenia budynku
– zmiany kąta nachylenia dachu do 30° lub 35° i adaptacji poddasza na cele
mieszkalne
– wykonania budynku w technologii szkieletowej
– dokonania zmian funkcjonalnych wg indywidualnych wymagań


















