Zb47: Bezkonkurencyjny Dom Bliźniaczy - Idealny Pod Inwestycję
Zb47 - Twój klucz do sukcesu! Szukasz atrakcyjnego projektu domu bliźniaczego? Zb47 to bezkonkurencyjna propozycja łącząca w sobie funkcjonalność, estetykę i niskie koszty budowy. Ten mały bliźniak idealnie sprawdzi się zarówno jako wygodne lokum dla rodziny, jak i opłacalna inwestycja.
Kompaktowa bryła, maksymalna funkcjonalność
Zb47 to mniejsza wersja popularnego projektu Zb45. Zwarta bryła domu została pokryta tynkiem cienkowarstwowym z elementami drewna i ciemnego klinkieru, tworząc elegancką i nowoczesną elewację.
Przemyślany rozkład pomieszczeń zapewnia komfort i wygodę użytkowania. Na parterze znajduje się przestronna sień z miejscem na szafy, częściowo zamknięta kuchnia oraz salon. Istnieje możliwość dowolnego konfigurowania wnętrza, ponieważ wszystkie ściany działowe są przestawne lub demontowalne.
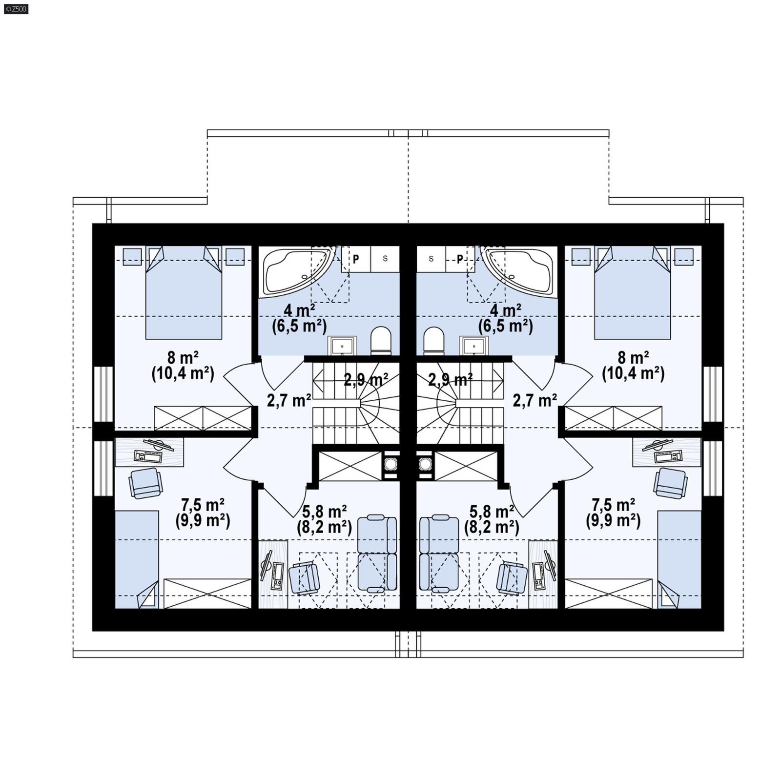
Poddasze mieści trzy sypialnie i wspólną łazienkę. Mimo kompaktowych rozmiarów, dom oferuje wystarczająco dużo przestrzeni dla komfortowego życia rodziny.
Projekt Zb47 - dla kogo?:
Inwestorów - niski koszt budowy i atrakcyjna cena czynią ten projekt idealną inwestycją.
Młodych małżeństw - kompaktowy rozmiar i funkcjonalny rozkład pomieszczeń to idealne rozwiązanie na początek wspólnego życia.
Rodzin z dziećmi - możliwość adaptacji wnętrza pozwala na stworzenie komfortowej przestrzeni dla rodziny.
Dlaczego warto wybrać Zb47?
- Niski koszt budowy - prosta konstrukcja i kompaktowe wymiary ograniczają wydatki.
- Możliwość dowolnej aranżacji wnętrza - ściany działowe dają pełną swobodę w dostosowaniu przestrzeni do potrzeb.
- Atrakcyjna elewacja - połączenie tynku, drewna i klinkieru nadaje domowi nowoczesny i elegancki charakter.
- Funkcjonalny rozkład pomieszczeń - zapewnia komfort i wygodę użytkowania.
- Mała powierzchnia - łatwość w utrzymaniu i ogrzewaniu.
Skontaktuj się z nami i dowiedz się więcej o tym wyjątkowym projekcie.











