Eco 48 - nowoczesny i funkcjonalny dom bliźniaczy
Projekt domu dwulokalowego Eco 48 to doskonała propozycja dla rodzin, które szukają przestronnego i funkcjonalnego domu w zabudowie bliźniaczej. Dom o powierzchni użytkowej ponad 130 m² został zaprojektowany z myślą o komforcie i wygodzie użytkowania, a jego elegancka elewacja w jasnych barwach z drewnianymi dodatkami zachwyci każdego miłośnika piękna.
Projekt Eco 48 to harmonijne połączenie nowoczesności i tradycji. Prosta bryła budynku z dwuspadowym dachem została ozdobiona drewnianymi okładzinami, które nadają mu eleganckiego i stylowego wyglądu. Elewacja w jasnych barwach sprawia, że dom prezentuje się szykownie i nowocześnie, a drewniane dodatki dodają mu przytulności i ciepła.
Do najważniejszych zalet projektu Eco 48 należą:
- Nowoczesny styl - elewacja domu została wykonana w nowoczesnym stylu. Dominują jasne kolory, które optycznie powiększają bryłę budynku. Drewniane elementy wykończenia nadają mu eleganckiego charakteru.
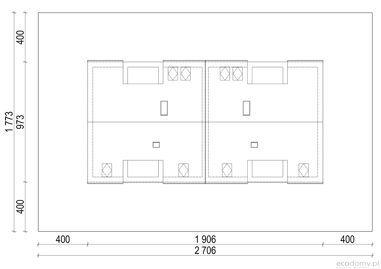
- Funkcjonalność - Na parterze znajduje się przestronny salon z jadalnią i otwartą kuchnią. Salon połączony jest z tarasem, który zapewnia dostęp do ogrodu. Na parterze znajduje się również sypialnia, łazienka z prysznicem i garderoba. Na poddaszu znajdują się dwie sypialnie, łazienka z wanną i garderoba. Dodatkowo, na poddaszu znajduje się otwarty aneks, który można wykorzystać jako pokój rekreacyjny, gabinet lub dodatkową sypialnię.
- Energooszczędność - dom został zaprojektowany w technologii murowanej. Dom jest energooszczędny, dzięki zastosowaniu nowoczesnych rozwiązań, takich jak ogrzewanie podłogowe i wentylacja mechaniczna z rekuperacją
Projekt Eco 48 występuje w 3 wariantach:
- Dom dwulokalowy na jednym fundamencie - w tym wariancie dwa lokale znajdują się na jednym fundamencie. Jest to rozwiązanie korzystne pod względem ekonomicznym, ponieważ pozwala na obniżenie kosztów budowy.
- Projekt bliźniaka na jednej dokumentacji - w tym wariancie dwa lokale posiadają oddzielne fundamenty, ale są zaprojektowane na podstawie jednej dokumentacji. Jest to rozwiązanie korzystne pod względem logistycznym, ponieważ pozwala na szybszą i tańszą budowę.
- Bliźniak z podziałem na 2 segmenty do zabudowy - w tym wariancie dwa lokale posiadają oddzielne fundamenty i dokumentację. Jest to rozwiązanie korzystne pod względem możliwości dostosowania projektu do indywidualnych potrzeb.
Który wariant wybrać?
Wybór wariantu projektu Eco 48 zależy od indywidualnych potrzeb i preferencji. Jeśli zależy Ci na obniżeniu kosztów budowy, wybierz wariant domu dwulokalowego na jednym fundamencie. Jeśli zależy Ci na szybszej i tańszej budowie, wybierz wariant projektu bliźniaka na jednej dokumentacji. Jeśli chcesz mieć możliwość dostosowania projektu do indywidualnych potrzeb, wybierz wariant bliźniaka z podziałem na 2 segmenty do zabudowy.
Projekt domu Eco 48 to doskonała propozycja dla rodzin, które szukają nowoczesnego, funkcjonalnego i energooszczędnego domu bliźniaczego. Dom jest dostępny w 3 wariantach, dzięki czemu można go dostosować do indywidualnych potrzeb i preferencji.
Kolekcja zawiera warianty domów w zabudowie bliźniaczej, szeregowej i jako projekty dwulokalowe. Polecamy zgrabne, funkcjonale projekty z potencjałem.






















