Projekt Domu Andrea B - Dwurodzinna Elegancja i Przestrzeń dla Wspólnego Życia
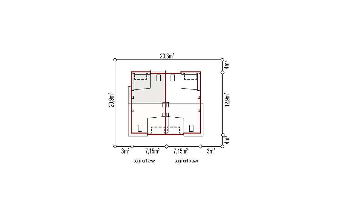
Projekt Domu Andrea B to wyjątkowa propozycja dla rodzin, które pragną harmonii i niezależności, bez rezygnacji z wyrafinowanego designu. Jako dwurodzinny dom w zabudowie bliźniaczej, zapewnia komfort i funkcjonalność dwóm rodzinom, zachowując jednocześnie indywidualność i intymność każdego gospodarstwa domowego.
Zachwycająca strefa wejściowa stanowi wizytówkę domu, oddając jego wyjątkowy charakter i zapraszając do odkrywania wnętrza. Z otwartą kuchnią, która naturalnie łączy się z przestronnym salonem, tworzy się przestrzeń, sprzyjająca rodzinnym spotkaniom i integracji. To miejsce, w którym przygotowywanie posiłków staje się okazją do bliskości i wspólnych chwil.
Projekt Domu Andrea B podkreśla nowoczesny styl poprzez unikalne cechy zewnętrzne, które wpisują się w najnowsze trendy architektoniczne. To idealna propozycja dla tych, którzy cenią sobie wygodę, styl oraz intymność w jednym. Niezależnie od wyboru, czy to dla dwóch rodzin czy jednej większej, Andrea B gwarantuje wyjątkowe miejsce, w którym życie staje się piękniejsze i bardziej harmonijne.
#AndreaBDwurodzinny
#ZabudowaBliźniacza
#KomfortINiezależność
#NowoczesnyDesign
#RodzinneSpotkania
Projekty domów jednorodzinnych i bliźniaczych














