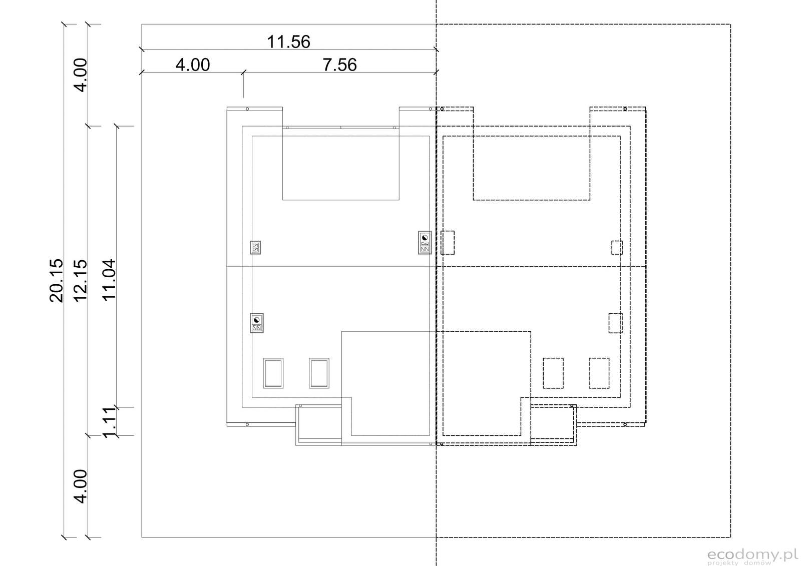
Projekt domu Eco 12 to doskonałe rozwiązanie do zabudowy jednorodzinnej dwulokalowej, zarówno w przypadku bliźniaczej zabudowy, jak i zabudowy szeregowej. Zaprojektowany z myślą o czteroosobowej rodzinie, wyróżnia się nowoczesną stylistyką i prostą bryłą, co przekłada się na niskie koszty budowy.
Ten projekt domu jest idealnym rozwiązaniem do zabudowy jednorodzinnej dwulokalowej, niezależnie od formy zabudowy - bliźniaczej lub szeregowej. Jego nowoczesna stylistyka, praktyczność i możliwość dostosowania spełnią oczekiwania każdej rodziny.
#ProjektDomu #Eco12 #ZabudowaJednorodzinna #BliźniaczaZabudowa #SzeregowaZabudowa #NowoczesnyDesign
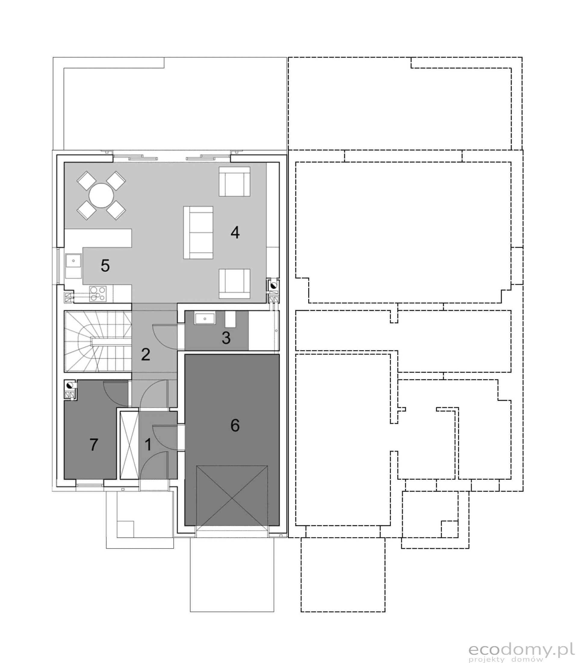
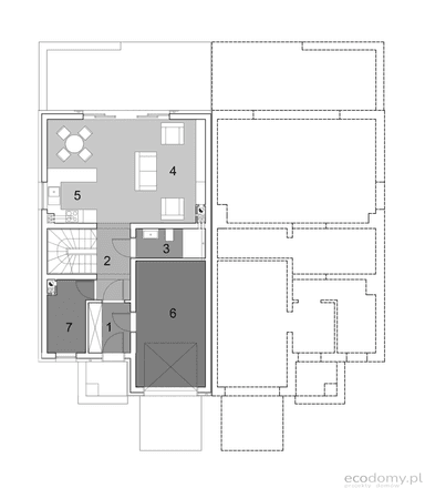
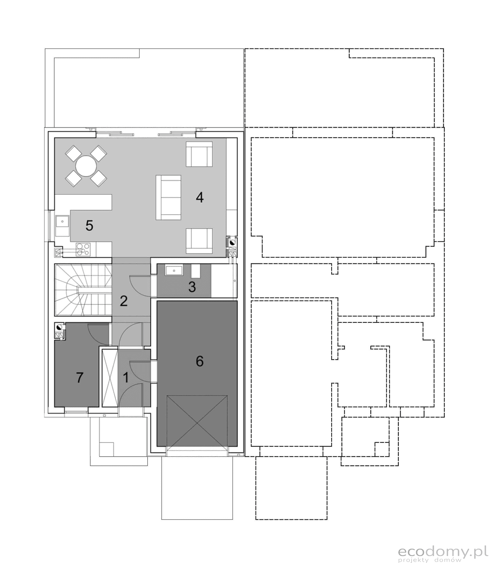
W strefie dziennego użytkowania tego projektu dominuje przestronny i doskonale doświetlony salon, który harmonijnie łączy się z otwartą kuchnią. Warto zwrócić uwagę na praktyczne elementy, takie jak duża kotłownia oraz garaż z bezpośrednim wejściem do domu, które znacząco podnoszą funkcjonalność i komfort użytkowania.
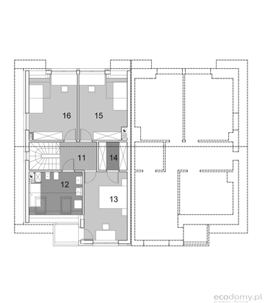
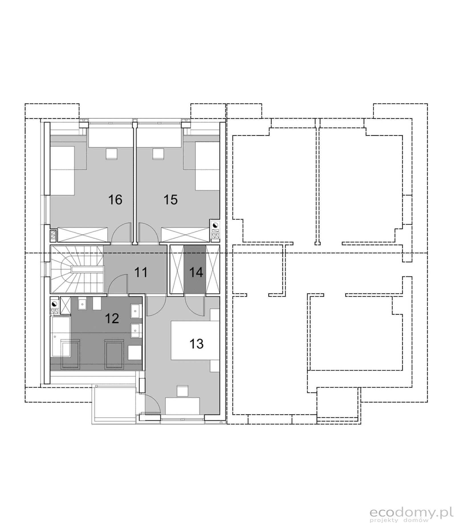
Nocna strefa domu składa się z trzech dużych sypialni i przestronnej łazienki. Główna sypialnia posiada przylegającą garderobę oraz balkon, który stanowi idealne miejsce do relaksu i odpoczynku. Projekt Eco 12 uwzględnia także liczne wnęki, które można wykorzystać do zabudowy, dodatkowo zwiększając funkcjonalność pomieszczeń.
Kolekcja zawiera warianty domów w zabudowie bliźniaczej, szeregowej i jako projekty dwulokalowe. Polecamy zgrabne, funkcjonale projekty z potencjałem.



















