Porjekt domu Eco 20 to porpozycja dla wymagających Inwestorów,
projekt posiadamy w 3 wariantach:
- jako proejktu domu Eco 20 jednorodzinny / 1 segment
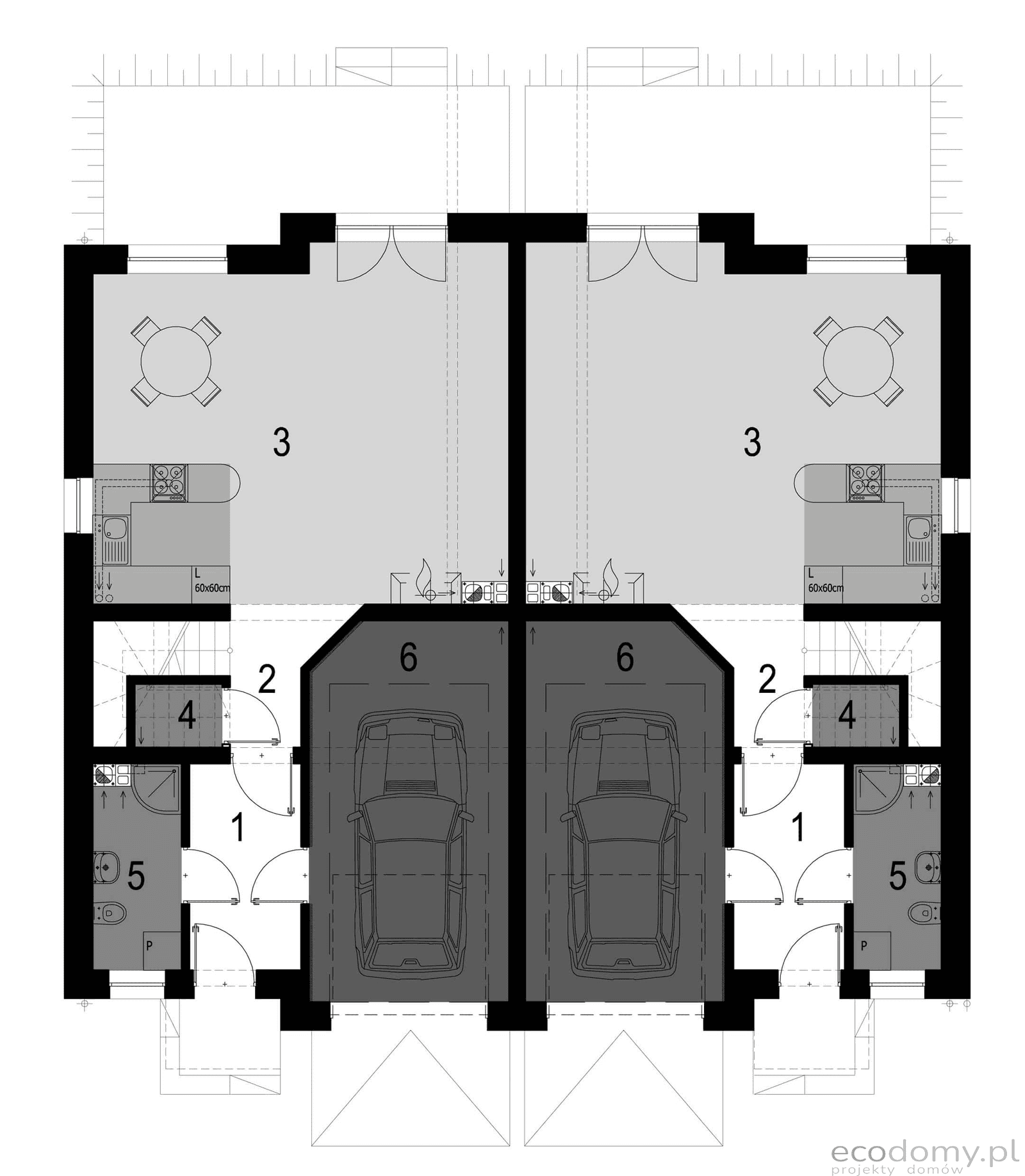
- jako dom jednorodzinny dwulokalowy Eco 20 na jednej dokumentacji i wspólnym fundamentem
- jako do w zabudowie bliźniaczej Eco 20 na osobnych dokumentacjach - czyli 2 osobne segmenty
lub jako projekt Eco 20 w zabudowie bliźniaczej na jednej dokumentacji.
Porjekt domu Eco 20 to perełka projektowa.
Kolekcja zawiera warianty domów w zabudowie bliźniaczej, szeregowej i jako projekty dwulokalowe. Polecamy zgrabne, funkcjonale projekty z potencjałem.




















