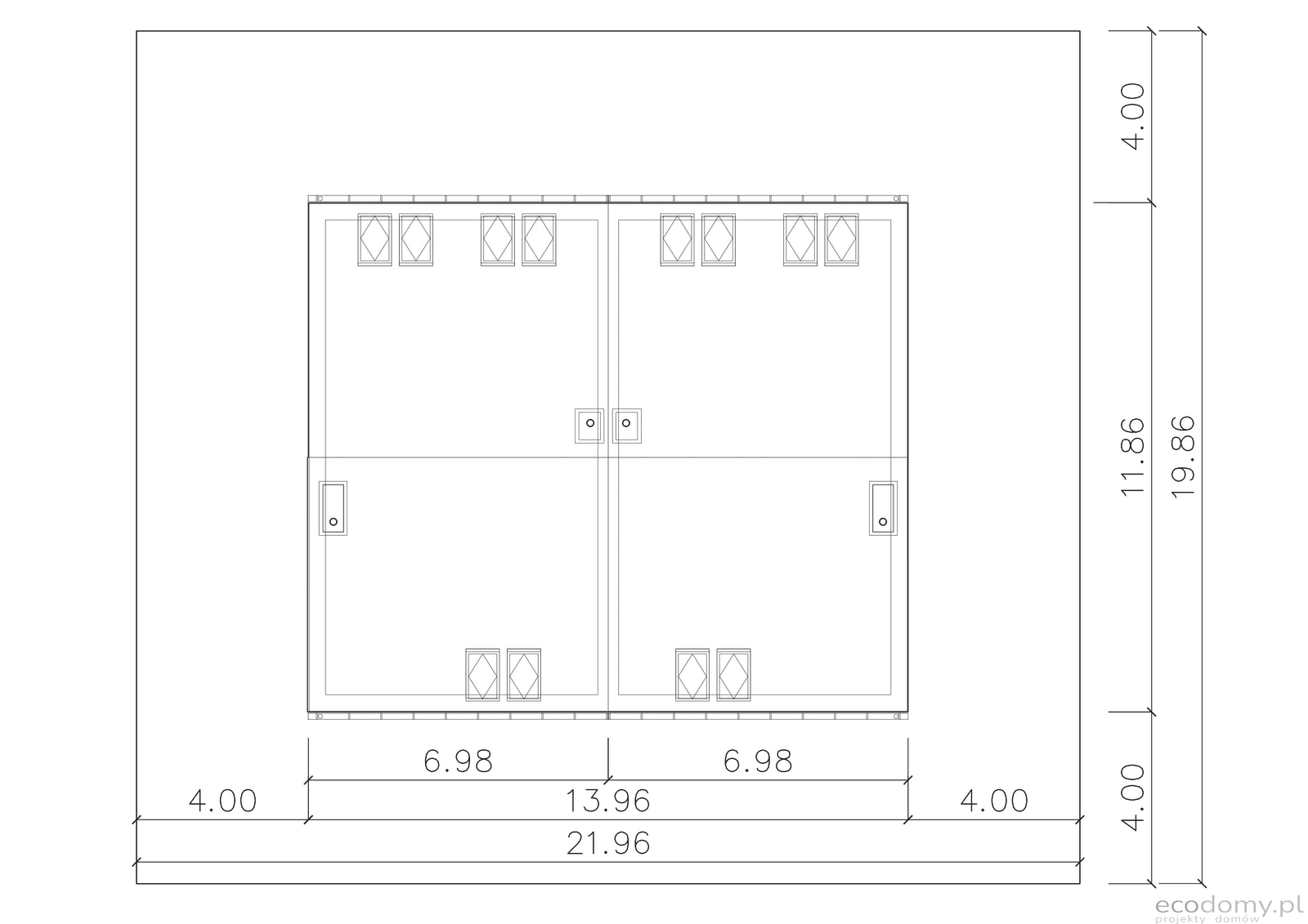
Projekt Eco 17 to nie tylko dom w zabudowie bliźniaczej, ale prawdziwa perełka projektowa z potencjałem. Zaprojektowany z myślą o ergonomii i taniej budowie, ten dom oferuje wiele możliwości aranżacyjnych dla przyszłych mieszkańców. Uwielbiamy ten projekt domu.
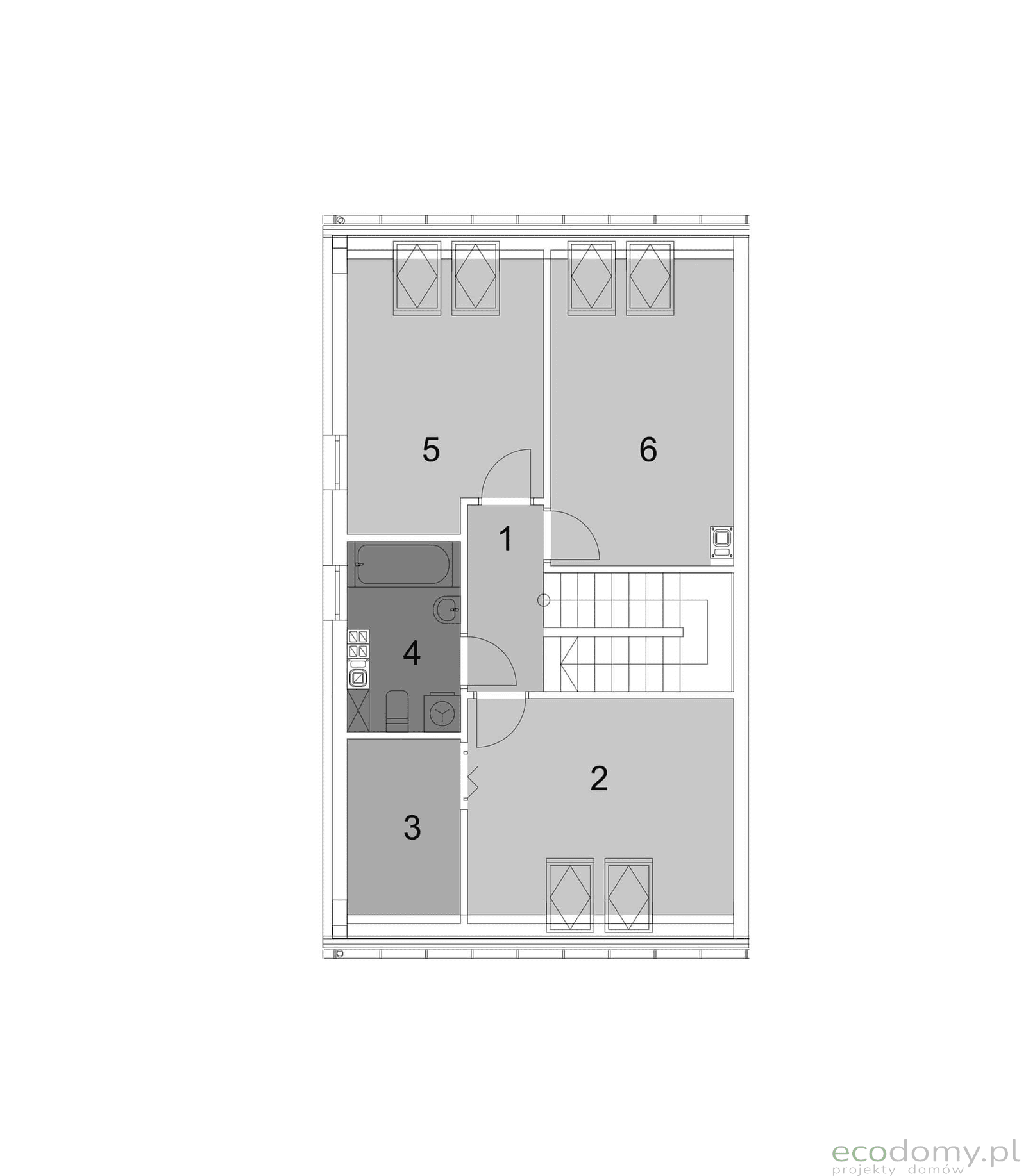
Na piętrze zaplanowano trzy sypialnie, każda o podobnej wielkości, z przestronną garderobą przy głównej sypialni. Strefę nocną wieńczy duża łazienka, która zaspokoi potrzeby całej rodziny.
Dwuspadowy dach zapewni ekonomiczność budowy oraz szybki czas realizacji inwestycji. To dom z potencjałem, który można dostosować do indywidualnych potrzeb, dzięki doskonale przemyślanemu układowi pomieszczeń. Jest to propozycja domu o dobrej ergonomii, której budowa nie obciąży zbytnio portfela inwestora.
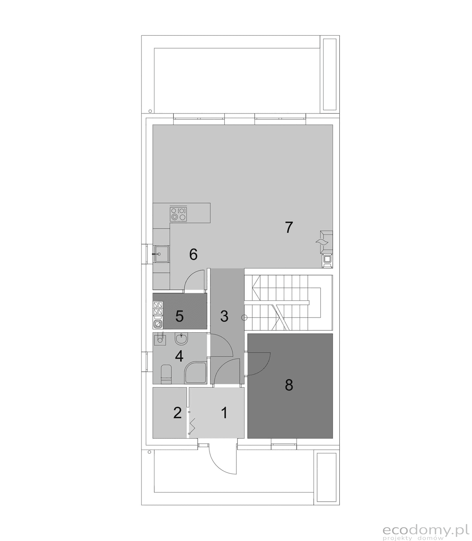
Projekt Eco 17 został starannie przemyślany i dostosowany do potrzeb 4-5 osobowej rodziny. Na parterze znajduje się przestronny salon połączony z aneksem kuchennym, który zapewni miejsce na wspólne spędzanie czasu oraz przygotowywanie posiłków. Otwarta kuchnia oferuje wiele miejsca na zabudowę kuchenną, a duże okna wpuszczą dużo światła do wnętrza. Obok salonu znajduje się łazienka, a także dodatkowy pokój, który może pełnić funkcję gabinetu, pokoju gościnnego lub sypialni dla seniora.
Parter w Eco 17 - opis pomieszczeń
1. Wiatrołap: 3,42 m2
2. Garderoba: 2,08 m2
3. Korytarz + schody: 10,80 m2
4. Łazienka: 3,39 m2
5. Spiżarnia: 2,17 m2
6. Kuchnia + jadalnia: 10,93 m2
7. Pokój dzienny: 22,11 m2
8. Pokój: 10,92 m2
Piętro w Eco 17 - opis pomieszczeń
1. Korytarz: 3,76 m2
2. Sypialnia: 10,12 m2
3. Garderoba: 3,06 m2
4. Łazienka: 5,34 m2
5. Pokój: 9,78 m2
6. Pokój: 11,12 m2
Kolekcja zawiera warianty domów w zabudowie bliźniaczej, szeregowej i jako projekty dwulokalowe. Polecamy zgrabne, funkcjonale projekty z potencjałem.



















