Projekt domu bliźniaczego Eco19 to doskonała propozycja dla osób szukających gotowego projektu domu w zabudowie bliźniaczej, który spełni ich oczekiwania. Funkcjonalność, wygoda i elegancki design to cechy, które wyróżniają ten projekt na tle innych. Inwestując w ten projekt, można mieć pewność, że uzyska się budynek z doskonałą aranżacją przestrzeni oraz wysokiej jakości wykonaniem, który zapewni wygodę i komfort mieszkańcom przez wiele lat.
Eco19 to gotowy projekt domu bliźniaczego o powierzchni ponad 100 metrów kwadratowych, zaprojektowany z myślą o wygodzie i funkcjonalności. Budynek ten charakteryzuje się nowoczesnym i eleganckim designem, który na pewno przyciągnie uwagę potencjalnych inwestorów.
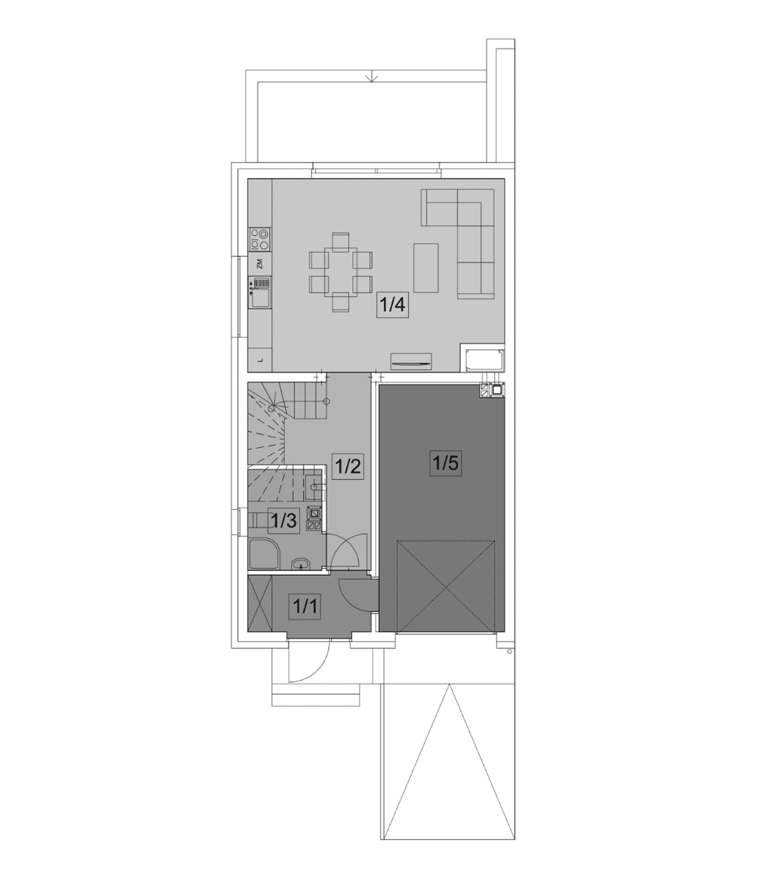
Dom Eco19 to idealna propozycja dla rodzin, które szukają przestronnego i funkcjonalnego domu, zapewniającego wysoki standard życia. Na parterze znajduje się przestronny salon połączony z jadalnią oraz kuchnią, co zapewnia swobodę przemieszczania się i umożliwia wygodne spędzanie czasu z rodziną i przyjaciółmi. Poza tym, na tym poziomie znajduje się także łazienka oraz pomieszczenie gospodarcze, które zwiększa funkcjonalność całego domu.
Eco 19 to idealna propozycja dla osób, które poszukują domu na małą działkę. Ciemna dachówka w połączeniu z jasnym tynkiem i klinkierową okładziną nadają domowi nowoczesnego wyglądu. Dom posiada poddasze użytkowe oraz jednostanowiskowy garaż.
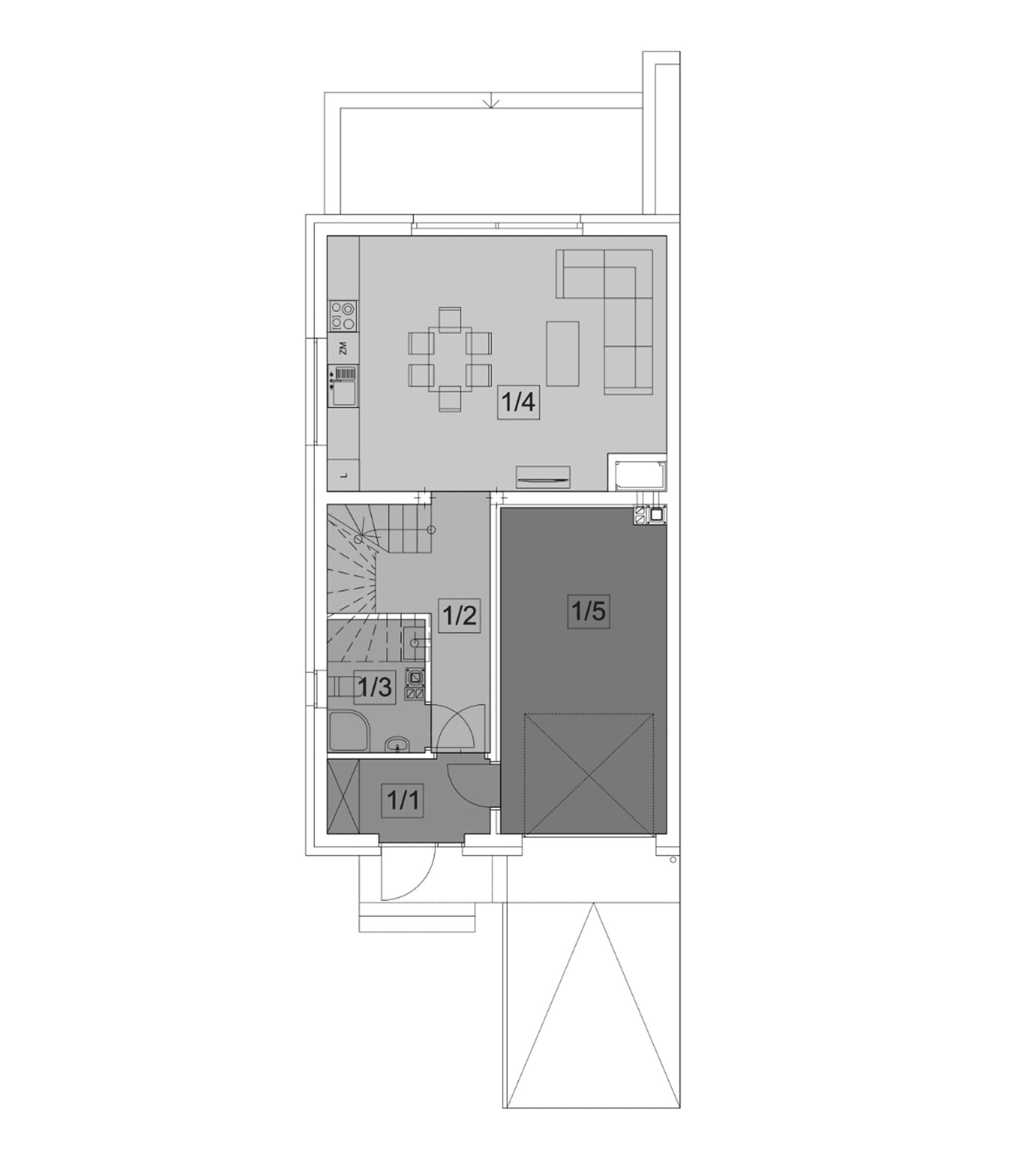
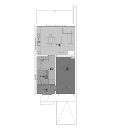
Parter - opis pomieszczeń
1. Wiatrołap 4,16 m2
2. Korytarz 9,16 m2
3. Łazienka 3,56 m2
4. Pokój dzienny + aneks kuchenny 30,02 m2
5. Garaż 18,46 m2
6. Wiatrołap 4,16 m2
7. Korytarz 9,16 m2
8. Łazienka 3,56 m2
9. Pokój dzienny + aneks kuchenny 30,02 m2
10. Garaż 18,46 m2
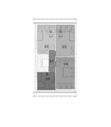
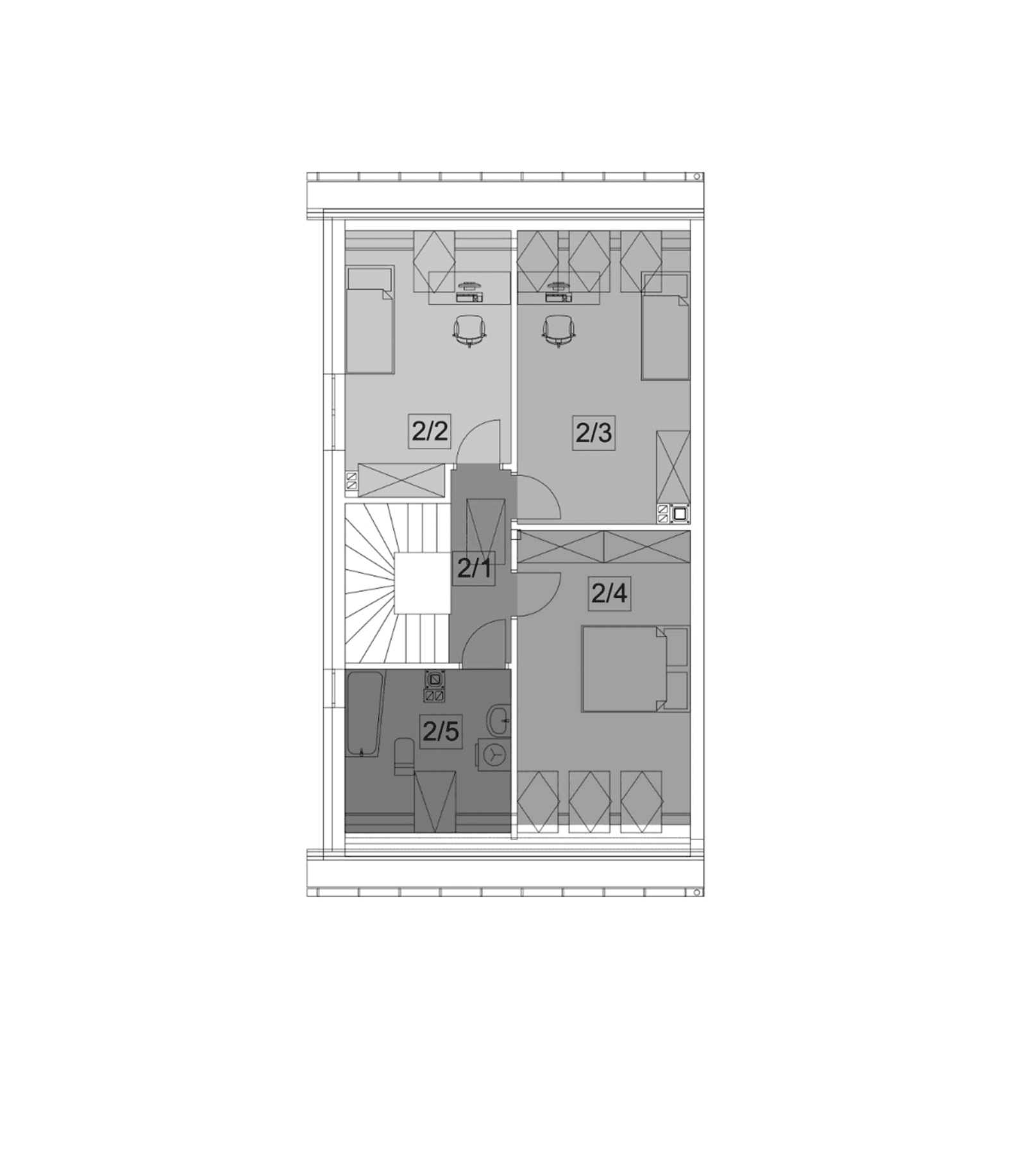
Piętro - opis pomieszczeń
1. Korytarz 3,80 m2
2. Sypialnia 9,80 m2
3. Sypialnia 12,47 m2
4. Sypialnia 13,53 m2
5. Łazienka 5,00 m2
6. Korytarz 3,80 m2
7. Sypialnia 9,80 m2
8. Sypialnia 12,47 m2
9. Sypialnia 13,53 m2
10. Łazienka 5,00 m2
Kolekcja zawiera warianty domów w zabudowie bliźniaczej, szeregowej i jako projekty dwulokalowe. Polecamy zgrabne, funkcjonale projekty z potencjałem.






















