Projekt domu Eco 21 to funkcjonalny i ergonomiczny projekt domu z potencjałem zabudowy i bliźniaczej, i dwurodzinnej i do zastosowania jako jeden segment, idealny dla rodzin poszukujących przestrzeni i komfortu w przystępnej cenie. Bliźniak z poddaszem użytkowym i garażem jednostanowiskowym zapewni swobodę i wygodę dla każdego z członków rodziny.
Projekt domu Eco 21 został zaprojektowany z myślą o ergonomii i funkcjonalności.
Elewacja z elementami klasycznej szarości i drewnianą okładziną zwraca uwagę nowoczesnym designem i estetyką. Dodatkowo, lukarny z obu stron domu nadają mu uroku i sprawiają, że Eco 21 wyróżnia się na tle innych projektów.
Projekt Eco 21 to propozycja projektu domu, który spełni wymagania każdej rodziny. Dzięki ergonomii pomieszczeń, funkcjonalności i przemyślanym rozwiązaniom, Eco 21 to idealna propozycja dla rodzin szukających dobrego projektu domu w przystępnej cenie.
Na parterze znajduje się przestronny salon z kuchnią i półotwartym korytarzem, łazienka oraz wiatrołap. Ponadto, ponad 45 metrów kwadratowych otwartej powierzchni daje wiele możliwości aranżacyjnych, pozwalając na stworzenie przytulnego wnętrza.
Na piętrze znajdują się cztery wygodne sypialnie, wraz z ustawną łazienką. Dzięki takiej aranżacji pomieszczeń, każdy z mieszkańców będzie miał swoją prywatną przestrzeń. Dodatkowo, duże okna zapewnią wiele światła naturalnego i pozytywnie wpłyną na samopoczucie i zdrowie.
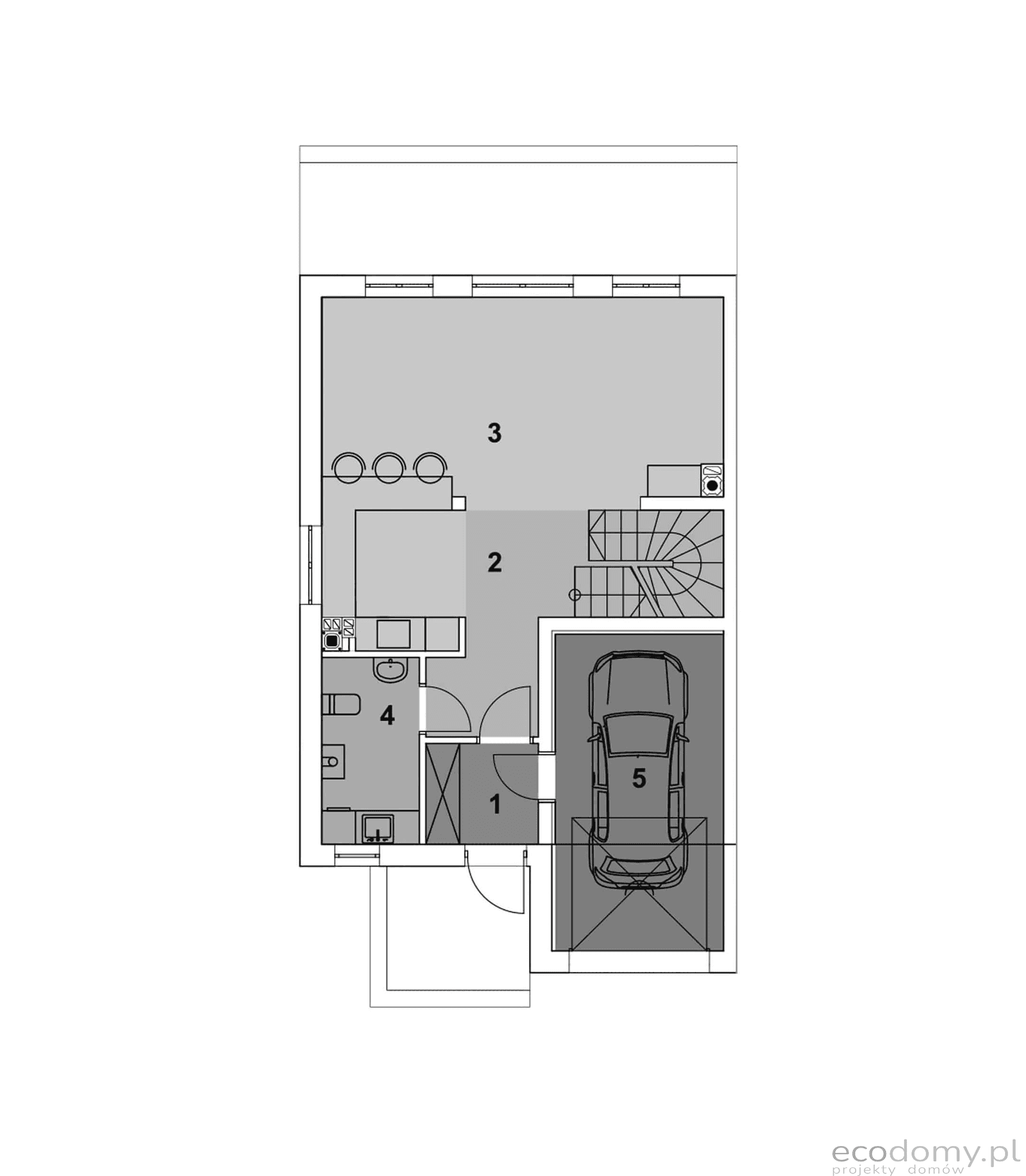
Parter - opis pomieszczeń
1. Wiatrołap: 3,52 m2
2. Korytarz: 12,34 m2
3. Pokój dzienny + aneks kuchenny: 32,63 m2
4. Pom. gospodarcze: 5,68 m2
5. Garaż: 17,37 m2
6. Wiatrołap: 3,52 m2
7. Korytarz: 12,34 m2
8. Pokój dzienny + aneks kuchenny: 32,63 m2
9. Pom. gospodarcze: 5,68 m2
10. Garaż: 17,37 m2
Piętro - opis pomieszczeń
1. Korytarz: 4,19 m2
2. Sypialnia: 9,73 m2
3. Sypialnia: 10,14 m2
4. Łazienka: 5,42 m2
5. Sypialnia: 9,36 m2
6. Sypialnia: 10,83 m2
7. Korytarz: 4,19 m2
8. Sypialnia: 9,73 m2
9. Sypialnia: 10,14 m2
10. Łazienka: 5,42 m2
11. Sypialnia: 9,36 m2
12. Sypialnia: 10,83 m2
Kolekcja zawiera warianty domów w zabudowie bliźniaczej, szeregowej i jako projekty dwulokalowe. Polecamy zgrabne, funkcjonale projekty z potencjałem.















