Dom bliźniak Eco 22 - elegancki i energooszczędny
Dom bliźniak Eco 22 to propozycja dla osób, które szukają przestronnego, eleganckiego i energooszczędnego domu. Projekt ten doskonale sprawdzi się zarówno na dużej, jak i małej działce.
Projekt Eco 22 to także propozycja energooszczędnego i taniego w budowie domu, który idealnie sprawdzi się na małej działce. Jego zwarte kształty i nowoczesny design gwarantują elegancki wygląd, który zachowa swój przytulny charakter.
Dom Eco 22 zachwyca swoim eleganckim wyglądem. Prosta, symetryczna bryła sprawia, że budynek wygląda nowocześnie i stylowo. Jasne elewacje z drewnianymi elementami nadają mu przytulny charakter.
- Przestronne i jasne wnętrza w domu Eco22
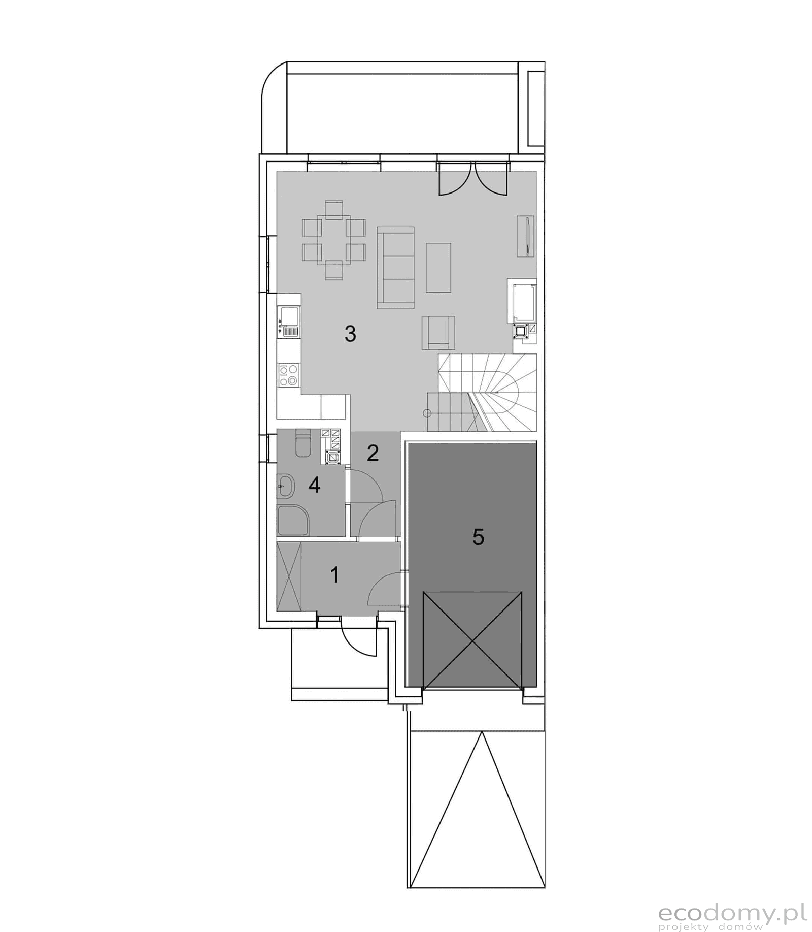
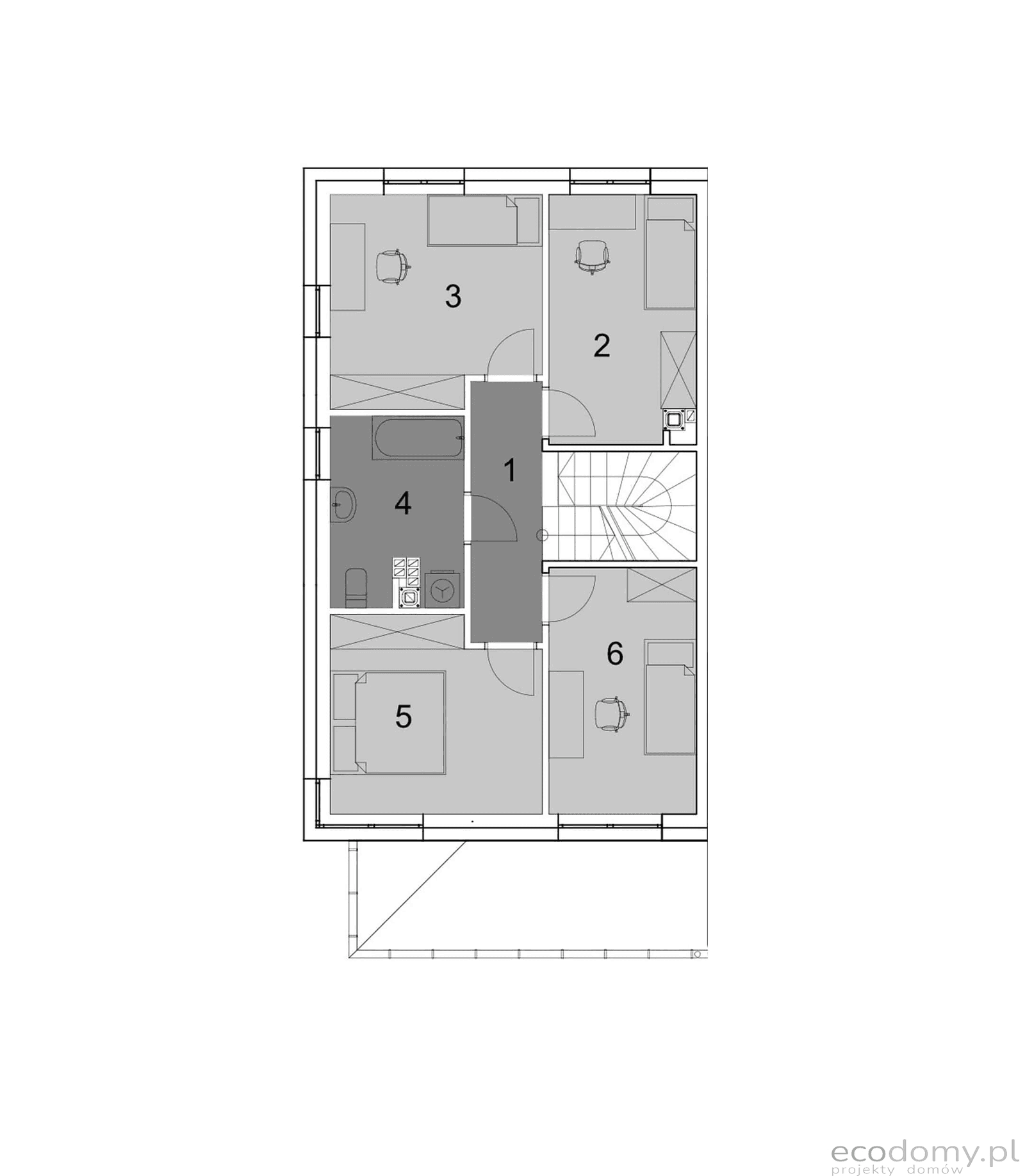
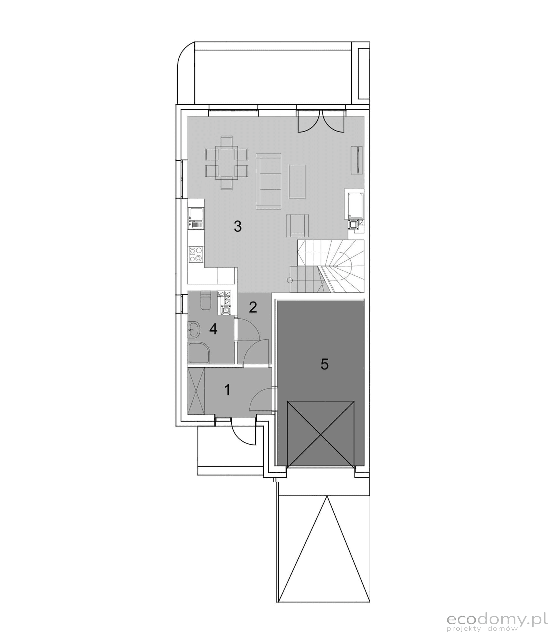
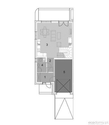
Dom Eco 22 jest bardzo przestronny i jasny. Na parterze znajduje się duży salon z aneksem kuchennym, który jest połączony z jadalnią. To idealne miejsce do spotkań rodzinnych i towarzyskich. Na piętrze znajdują się cztery sypialnie o podobnej wielkości oraz łazienka.
- Komfortowo zorganizowana przestrzeń
W domu Eco 22 przestrzeń jest komfortowo zorganizowana. Na parterze znajduje się również garaż, który zapewnia dodatkowe miejsce do przechowywania.
- Dom idealny dla dwóch rodzin
Dom bliźniak Eco 22 to doskonała propozycja dla 4-8 osobowej rodziny. Przestronne i jasne wnętrza oraz komfortowo zorganizowana przestrzeń zapewnią wszystkim domownikom komfort i wygodę.
- Eco 22 cechuje się ergonomią i funkcjonalnością pomieszczeń. Na parterze znajduje się przestronny salon połączony z aneksem kuchennym, co tworzy idealną przestrzeń do wspólnych spotkań i przyjemnego spędzania czasu. W centralnej części salonu umieszczono kominek, który dodaje domowej atmosfery i zapewnia ciepło w chłodne dni.
- Na piętrze zaplanowano cztery podobnej wielkości sypialnie wraz z ustawną łazienką, co pozwala na swobodne urządzenie przestrzeni zgodnie z indywidualnymi potrzebami domowników. Jasne i przestronne wnętrza zachęcają do spędzania czasu w domu, a ergonomiczny układ pomieszczeń zapewnia wygodę i komfort.
Projekt Eco 22 to idealny wybór dla rodzin poszukujących funkcjonalnego i komfortowego domu w zabudowie bliźniaczej.
Dom bliźniak Eco 22 to propozycja dla osób, które chcą mieszkać w nowoczesnym i stylowym domu, który jest jednocześnie energooszczędny. Projekt ten jest bardzo przestronny i jasny, a jego wnętrza są funkcjonalnie zaprojektowane. Dom ten doskonale sprawdzi się dla rodzin z dziećmi lub dla osób, które lubią przyjmować gości.
W podsumowaniu, Projekt Eco 22 jest bardzo dobrym rozwiązaniem dla osób, które szukają eleganckiego, energooszczędnego i przestronnego domu. Projekt ten ma wiele zalet, w tym:
- elegancki i stylowy wygląd
- wysoka energooszczędność
- przestronne i jasne wnętrza
- komfortowo zorganizowana przestrzeń
Dom Eco 22 jest idealnym rozwiązaniem dla 4-osobowej rodziny. Na parterze znajduje się duży salon z aneksem kuchennym, który jest połączony z jadalnią. To idealne miejsce do spotkań rodzinnych i towarzyskich. Na piętrze znajdują się cztery sypialnie o podobnej wielkości oraz łazienka.
Dom Eco 22 jest również bardzo energooszczędny. Zastosowano w nim nowoczesne rozwiązania, takie jak:
- zwarta bryła, która ogranicza straty ciepła
- okna o wysokich parametrach termoizolacyjnych
- wentylacja mechaniczna z rekuperacją
Dzięki temu koszty ogrzewania domu są znacznie niższe niż w przypadku tradycyjnych budynków.
Projekt jest dostępny w wariancie z budową, napisz na e-mail: budowa@wybieramprojekt.pl
Projekt jest dostęny w wariantach: proejkt domu dwurodzinny, projekt jednorodzinny dwulokalowy, projekt bliźniaka, proejkt w zabudowie bliźniaczej
Opinie na temat projektu Eco22:
"Projekt Eco 22 jest bardzo dobrze przemyślany. Przestrzeń jest komfortowo zorganizowana, a wszystkie pomieszczenia są funkcjonalne." - Krzysiek
Kolekcja zawiera warianty domów w zabudowie bliźniaczej, szeregowej i jako projekty dwulokalowe. Polecamy zgrabne, funkcjonale projekty z potencjałem.


















