Projekt ECO 23 - najlepszy projekt bliźniaka, projekt domu z potencjałem
Projekt Eco 23 to piętrowy dom w zabudowie bliźniaczej, idealny dla dwóch rodzin lub większej rodziny. Dzięki precyzyjnemu zagospodarowaniu przestrzeni oraz zastosowaniu nowoczesnych materiałów, budynek jest gotowy do zamieszkania z potencjałem na dalszą rozbudowę.
Projekt ECO 23 to nowoczesny projekt bliźniaka, który doskonale sprawdzi się zarówno dla dwóch rodzin, jak i dla większej rodziny. Dzięki przemyślanemu układowi wnętrza, zastosowaniu nowoczesnych materiałów i rozwiązań technologicznych, jest to budynek gotowy do zamieszkania z potencjałem na dalszy rozwój.
Potencjał na rozwój
Projekt ECO 23 to budynek z potencjałem na dalszy rozwój. Dzięki dużej powierzchni parteru i piętra, istnieje możliwość dokonania jego rozbudowy w przyszłości. Możliwe jest również wydzielenie dwóch samodzielnych lokali mieszkalnych.
Najlepszy projekt bliźniaka
Projekt ECO 23 to doskonała propozycja dla osób, które szukają funkcjonalnego, nowoczesnego i energooszczędnego domu bliźniaka. Jest to projekt z potencjałem na rozwój, który spełni oczekiwania nawet najbardziej wymagających klientów.
Nowoczesne rozwiązania i materiały
Projekt ECO 23 został wykonany z wysokiej jakości materiałów, które zapewniają trwałość i komfort użytkowania. Ściany zewnętrzne wykonane są z bloczków ceramicznych, które zapewniają dobrą izolację termiczną. Dach pokryty jest blachą trapezową, która jest odporna na zmienne warunki atmosferyczne.
W budynku zastosowano również nowoczesne rozwiązania technologiczne, takie jak system rekuperacji powietrza, który zapewnia stały dopływ świeżego powietrza i odprowadzanie zużytego. Dzięki temu dom jest energooszczędny i komfortowy w użytkowaniu.
Funkcjonalność i wygodę na pierwszym miejscu
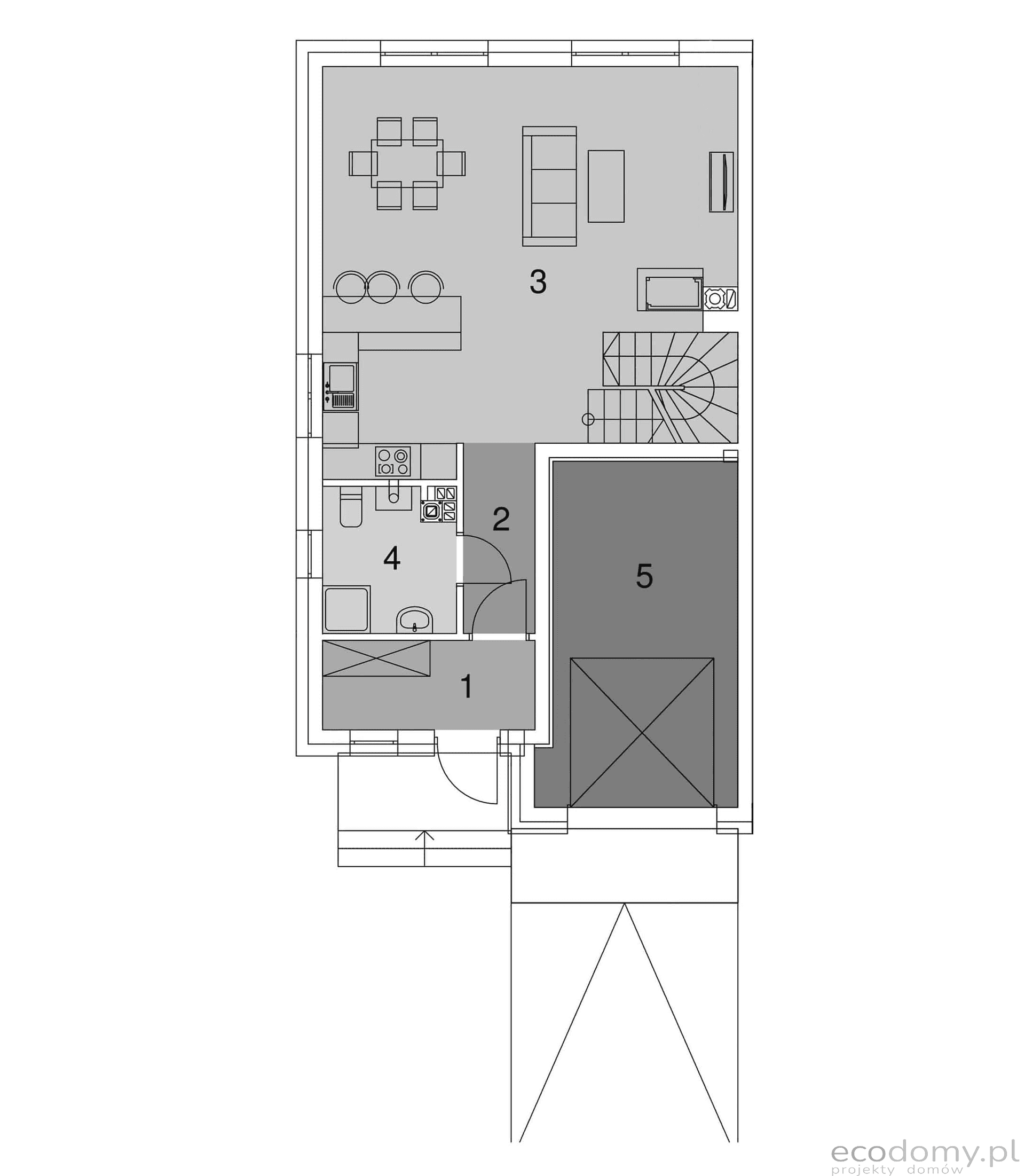
Projekt ECO 23 to idealna propozycja dla osób ceniących sobie funkcjonalność i wygodę. Przestronna część dzienna, składająca się z aneksu kuchennego, połączonego z jadalnią oraz salonem, to doskonałe miejsce do spędzania czasu w gronie rodziny i przyjaciół. Centralnym punktem wnętrza jest duży kominek, który dodaje ciepła i charakteru pomieszczeniu.
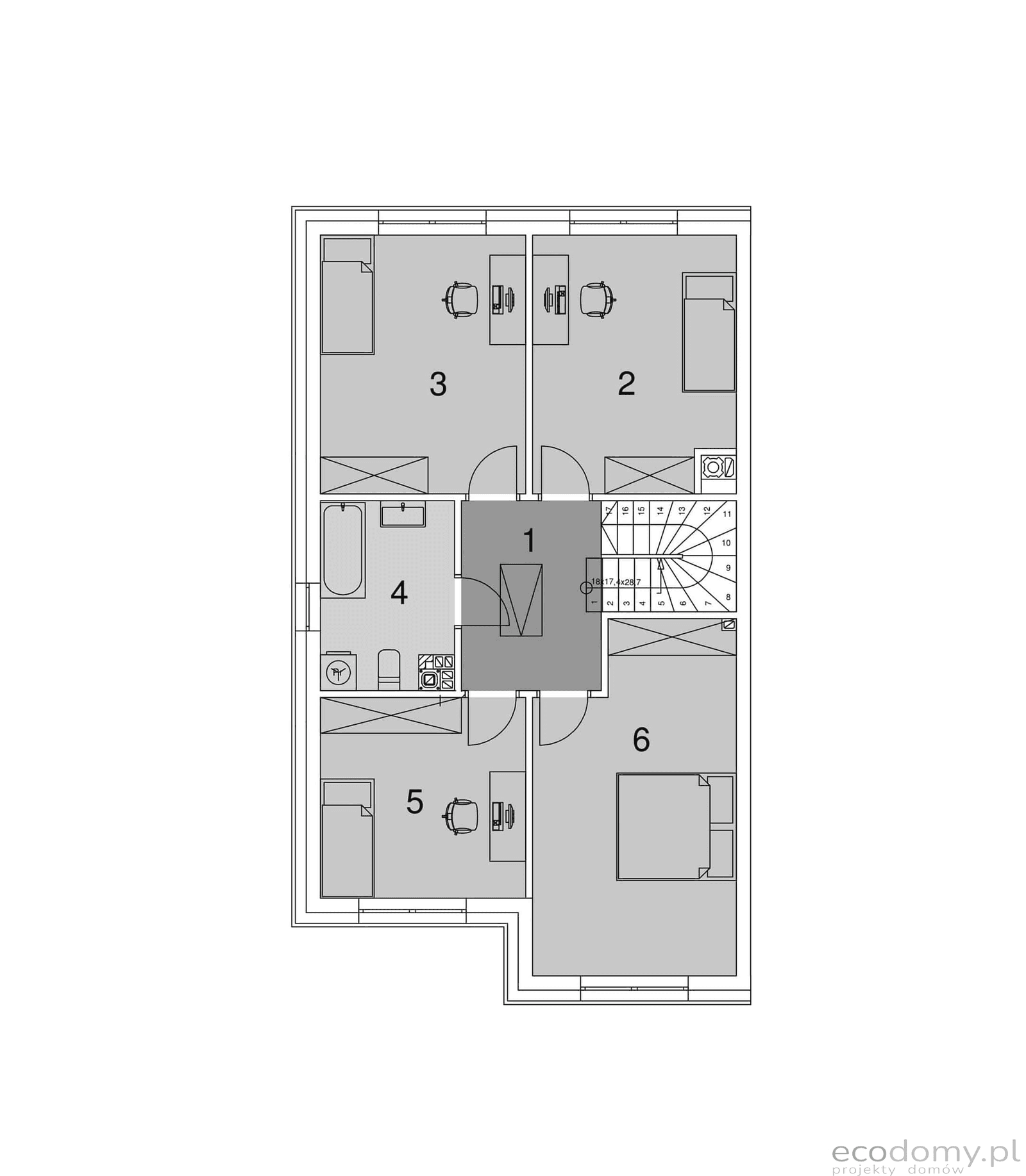
Na piętrze zaprojektowano 4 sypialnie o podobnej wielkości, które idealnie sprawdzą się dla rodziny lub gości. Łazienka na górze również została zaprojektowana w taki sposób, by sprostać wymaganiom większej ilości osób.
Detale projektu:
Powierzchnia użytkowa: 120 m2
Powierzchnia zabudowy: 150 m2
Liczba kondygnacji: 2
Liczba lokali: 2
Liczba sypialni: 4
Liczba łazienek: 2
Zalety projektu:
- Funkcjonalny układ wnętrza
- Nowoczesne rozwiązania i materiały
- Potencjał na rozwój
Opinie o projekcie
- "Decydując się na budowę domu, szukaliśmy projektu, który będzie funkcjonalny, nowoczesny i energooszczędny. Eco 23 spełniał wszystkie te wymagania. Dom jest bardzo dobrze zaprojektowany, z przemyślanym układem wnętrza. Na parterze mamy przestronną część dzienną z kominkiem, a na piętrze cztery sypialnie i dwie łazienki. Dom jest też bardzo energooszczędny, dzięki czemu rachunki za prąd są niskie. Polecamy Eco 23 każdemu, kto szuka dobrego projektu domu." - rodzinka W.
- "Super dom, dla rodziny i dla pod inwestycję. Przestronny, funkcjonalny, a do tego jeszcze energooszczędny. Układ i przestrzeń - igła! Polecam każdemu, kto szuka dobrego projektu domu dwulokalowego. Znajomi kupili też i budują bliźniaka." - Michał
Kolekcja zawiera warianty domów w zabudowie bliźniaczej, szeregowej i jako projekty dwulokalowe. Polecamy zgrabne, funkcjonale projekty z potencjałem.





















