Eco 25 to dom z poddaszem i nowoczesną, minimalistyczną elewacją. Projekt został zaprojektowany z myślą o niskich kosztach budowy, co czyni go idealnym wyborem dla tych, którzy poszukują ekonomicznych rozwiązań. Jednocześnie, dom ten oferuje bardzo dobrą jakość przestrzeni, dzięki ergonomicznemu i dobrze zaprojektowanemu układowi pomieszczeń.
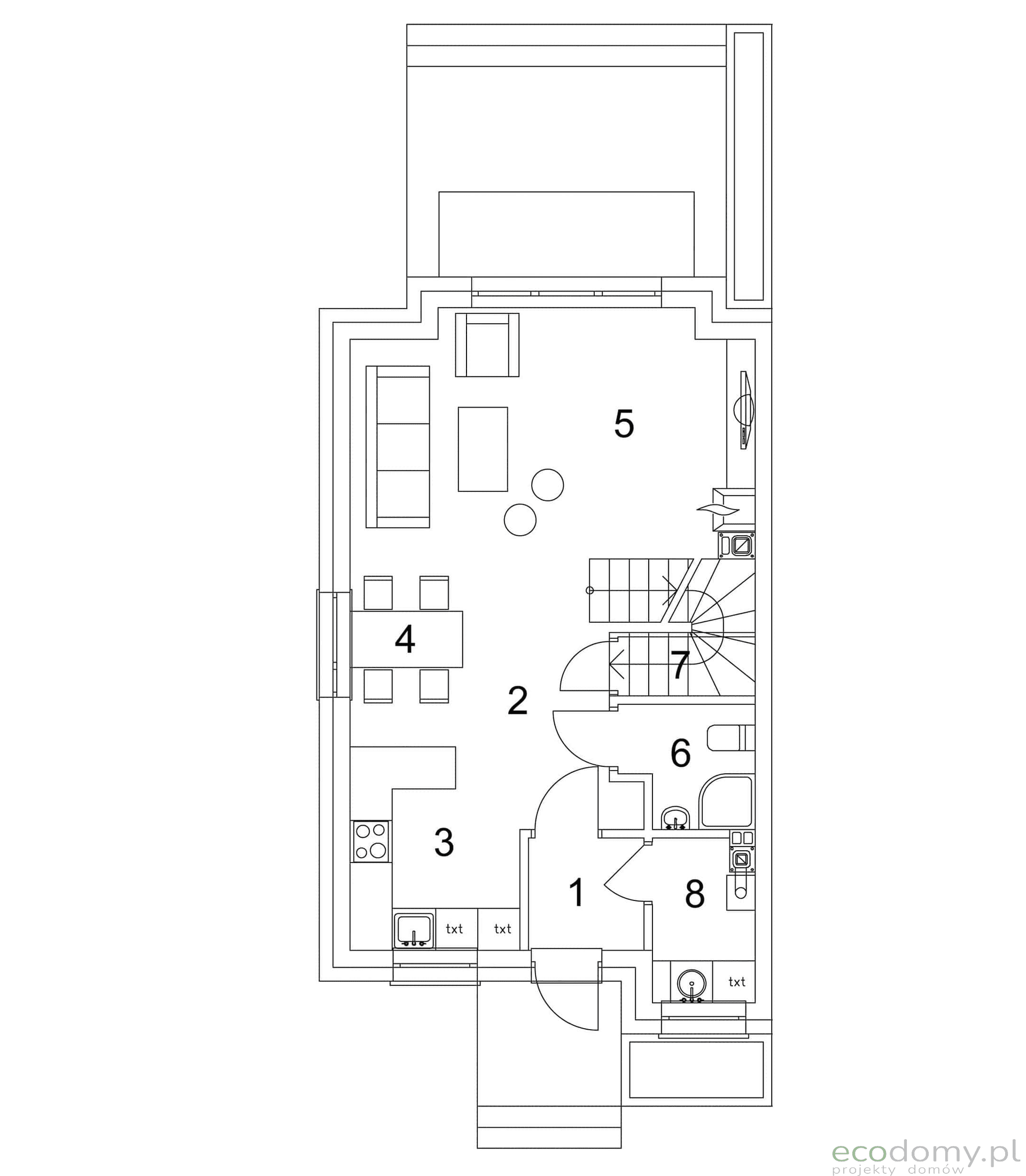
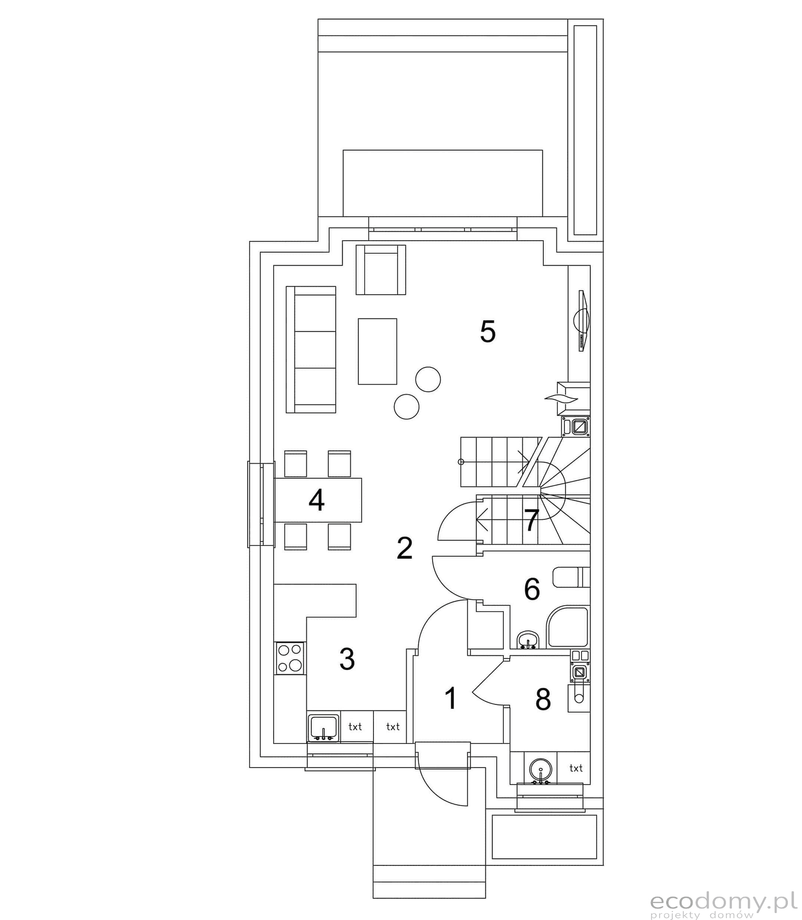
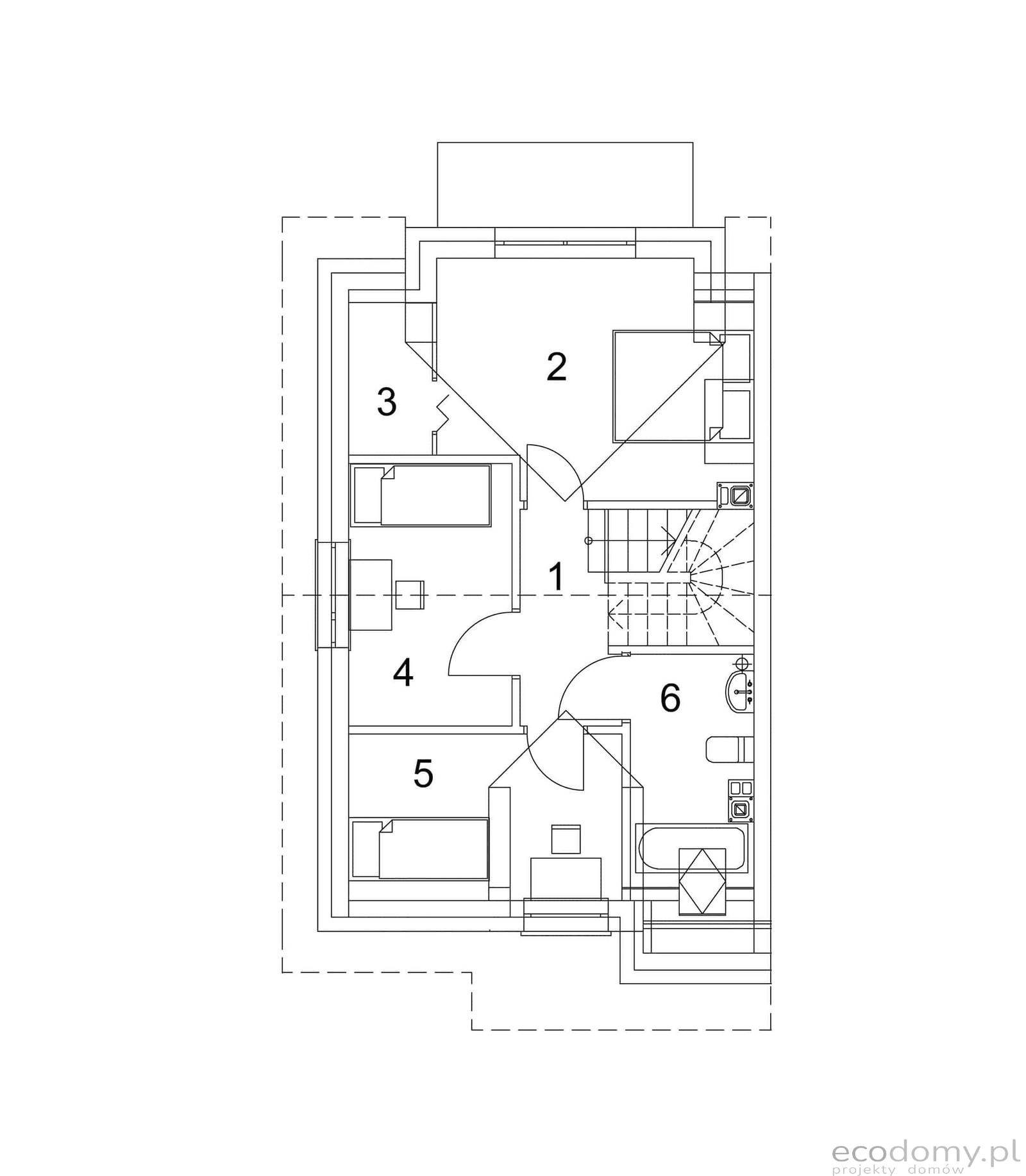
Na parterze znajduje się wygodna strefa dzienna, która składa się z salonu, jadalni oraz kuchni, której towarzyszy praktyczna spiżarnia. Dodatkowo, na parterze znajduje się również łazienka oraz pokój, który może pełnić funkcję gabinetu lub pokoju gościnnego. Na poddaszu znajdują się trzy sypialnie, w tym główna sypialnia z garderobą oraz duża łazienka.
Na piętrze zaprojektowano 3 sypialnie, w tym główna sypialnia z oknem balkonowym, które zapewnia naturalne światło oraz ustawna garderoba. Prosty i ergonomiczny układ pomieszczeń pozwala na efektywne zagospodarowanie przestrzeni, co czyni ten projekt domu jeszcze bardziej atrakcyjnym dla osób szukających ekonomicznego i funkcjonalnego rozwiązania.
Dzięki dobrze zaprojektowanemu układowi pomieszczeń, dom Eco 25 zapewnia swoim mieszkańcom komfortowe warunki do życia, a jednocześnie jest tani w budowie, co czyni go idealnym wyborem dla małych i średnich deweloperów.
Eco 25 to prosty i tani projekt domu z poddaszem, który został zaprojektowany z myślą o małych działkach. W domu znajduje się przestronny salon połączony z jadalnią i kuchnią, które tworzą otwartą przestrzeń o powierzchni ponad 40 m2. Dzięki temu pomieszczeniu można łatwo dostosować wnętrze do swoich potrzeb. Duże okna zapewniają dużą ilość światła dziennego w całym domu.
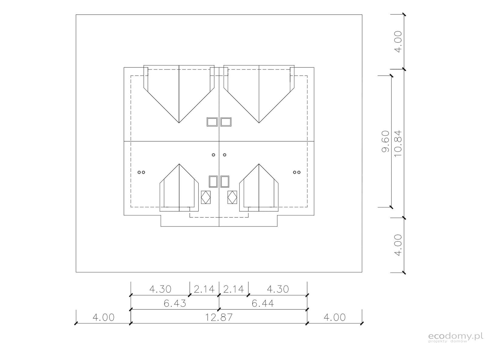
Kolekcja zawiera warianty domów w zabudowie bliźniaczej, szeregowej i jako projekty dwulokalowe. Polecamy zgrabne, funkcjonale projekty z potencjałem.





















