Gotowy projekt domu Eco29 to świetna propozycja projektu z poddaszem użytkowym do zabudowy bliźniaczej, jako projekt domu dwurodzinnego.
Projekt Eco 29 łączy styl klasyki i nowoczesności. Surowy charakter elewacji kontrastuje z balkonami francuskimi, a funkcjonalny i harmonijnie rozplanowany układ pomieszczeń zadowoli najbardziej wymagających miłośników stylu nowoczesnej stodoły.
Projekt domu Eco 29 został zaprojektowany dla dwóch rodzin, jako zabudowa bliźniak z poddaszem. Charakterystyczną cechą domu jest nowoczesna i prosta bryła, która połącza w sobie tradycyjne elementy budownictwa z otwartymi przestrzeniami oraz nowoczesnym designem. Dzięki bryle prostokąta z dwuspadowym dachem, projekt idealnie wpasuje się w wąską działkę, zapewniając jednocześnie niskie koszty i szybką realizację inwestycji. Zgodnie z koncepcją energooszczędnego budownictwa, garaż został umieszczony w bryle budynku.
Na parterze domu znajduje się otwarta przestrzeń, która daje wiele możliwości aranżacyjnych, a duże okna świetnie doświetlają pomieszczenia. Dodatkowo, projekt przewiduje zadaszony taras. Na piętrze natomiast znajdują się trzy sypialnie, w tym jedna z oddzielną łazienką, oraz garderoba dostępna dla wszystkich mieszkańców z korytarza.
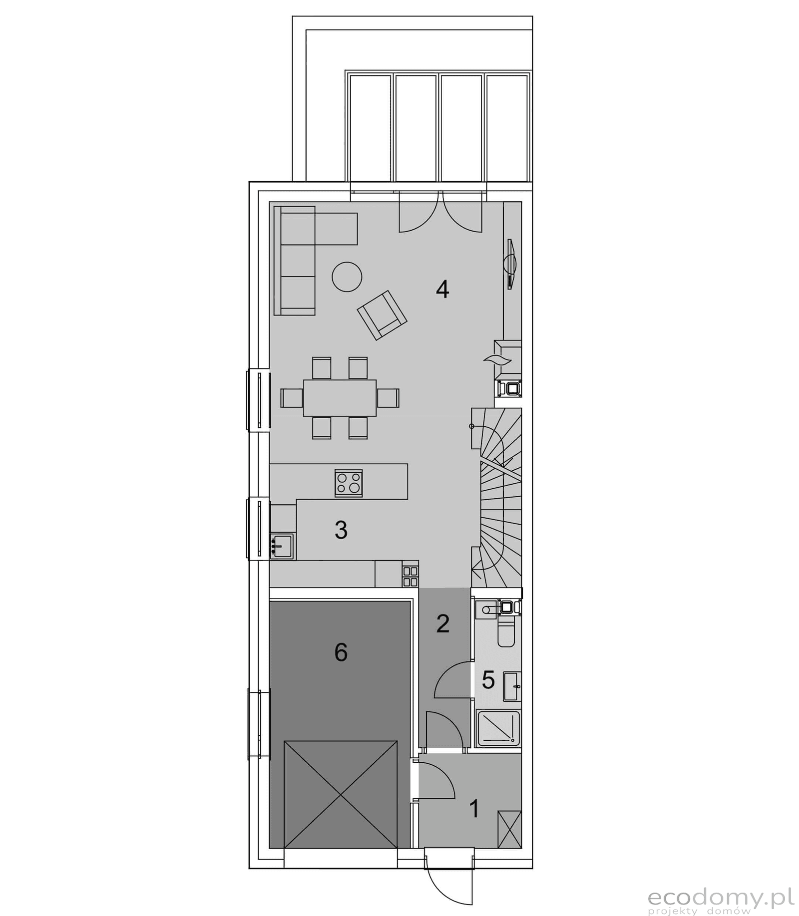
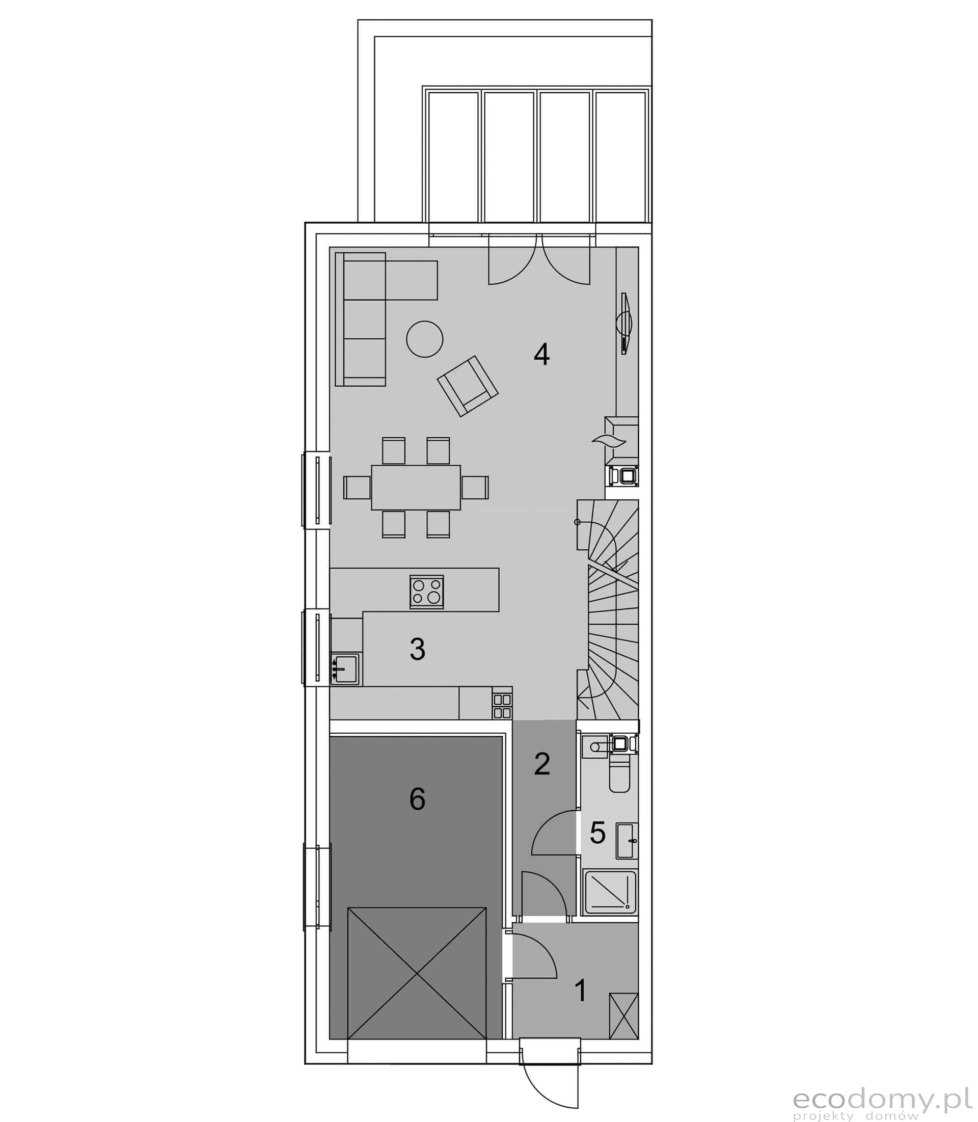
Parter - opis pomieszczeń
1. Wiatrołap: 4,95 m2
2. Hol + schody: 13,05 m2
3. Kuchnia: 8,77 m2
4. Pokój dzienny + jadalnia: 28,98 m2
5. Łazienka: 3,22 m2
6. Garaż: 16,95 m2
7. Wiatrołap: 4,95 m2
8. Hol + schody: 13,05 m2
9. Kuchnia: 8,77 m2
10. Pokój dzienny + jadalnia: 28,98 m2
11. Łazienka: 3,22 m2
12. Garaż: 16,95 m2
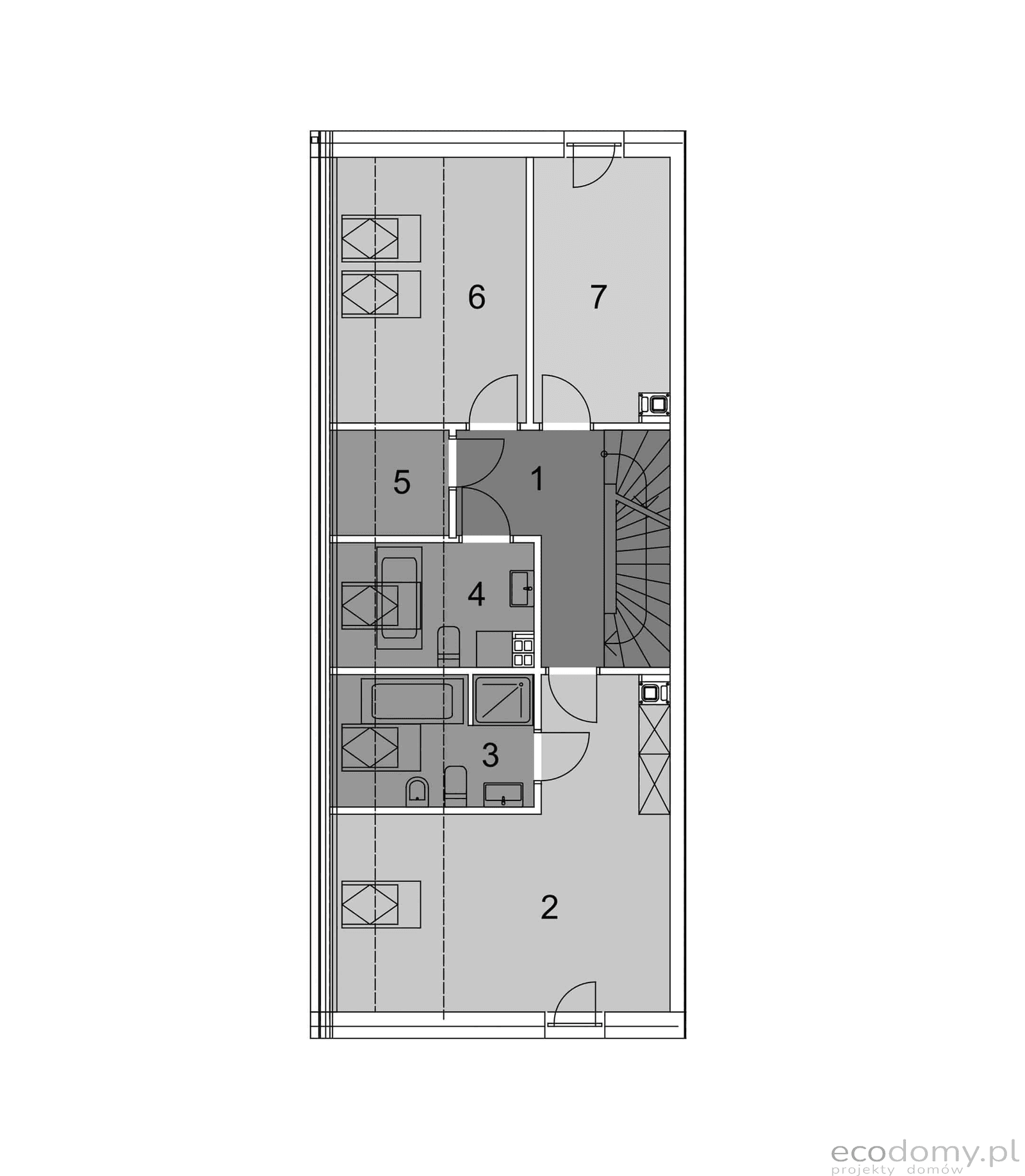
Piętro - opis pomieszczeń
1. Korytarz: 6,65 m2
2. Sypialnia: 19,13 m2
3. Łazienka: 4,59 m2
4. Łazienka: 4,11 m2
5. Garderoba: 1,16 m2
6. Sypialnia: 8,64 m2
7. Sypialnia: 9,84 m2
8. Korytarz: 6,65 m2
9. Sypialnia: 19,13 m2
10. Łazienka: 4,59 m2
11. Łazienka: 4,11 m2
12. Garderoba: 1,16 m2
13. Sypialnia: 8,64 m2
14. Sypialnia: 9,84 m2
Kolekcja zawiera warianty domów w zabudowie bliźniaczej, szeregowej i jako projekty dwulokalowe. Polecamy zgrabne, funkcjonale projekty z potencjałem.

















