Projekt domu o nazwie Eco 44 to idealna propozycja gotowego projektu do zabudowy dla małych i dużych deweloperów.
Projekt zyskał na ogromnej popoularności już od momentu pojawienia się w ofercie gotowych projektów domów. Doskonała bryła architektoniczna, kompatkowa bryła budynku, obrys budynku po obrysie zapewniający maksimum energooszczędności i ergonomii.
Gotowy projekt domu Eco 44 jest idealnym rozwiązaniem dla deweloperów poszukujących optymalnego domu, który będzie łatwy i szybki w budowie, a jednocześnie zapewni wygodne użytkowanie i atrakcyjny wygląd
Projekt Eco 44 to projekt domu jako segment na wąską działkę, jak najbardziej. Funkcjonalny układ pokoi ustawny salon plus 3 pokoje wygodne na poddaszu (wysokim poddaszu, co zapewnia możliwośc idealnego użytkowania). W zasdzie poddasze stanoi pełne piętro.
Na piętrze znajdują się trzy sypialnie, z czego największa posiada przestronną garderobę i łazienkę. Na piętrze jest także druga łazienka i dwa pokoje. Pełne piętro pozbawione skosów zapewnia komfortowe użytkowanie.
Projekt Eco 44 charakteryzuje się starannie przemyślanym i czytelnym układem pomieszczeń, co gwarantuje wygodne użytkowanie. Duże przeszklenia i dach bez okapów podkreślają nowoczesny charakter projektu, który będzie idealny na niedużą działkę. Niewątpliwym atutem projektu jest także garaż w bryle budynku. Dlatego też, ten projekt domu będzie idealny zarówno dla inwestorów indywidualnych, jak i deweloperów szukających sprawdzonych rozwiązań funkcjonalnych.
Eco 44 to projekt dedykowany 4 osobowej rodzinie, z jasnym salonem i jadalnią połączonymi z aneksem kuchennym na parterze.
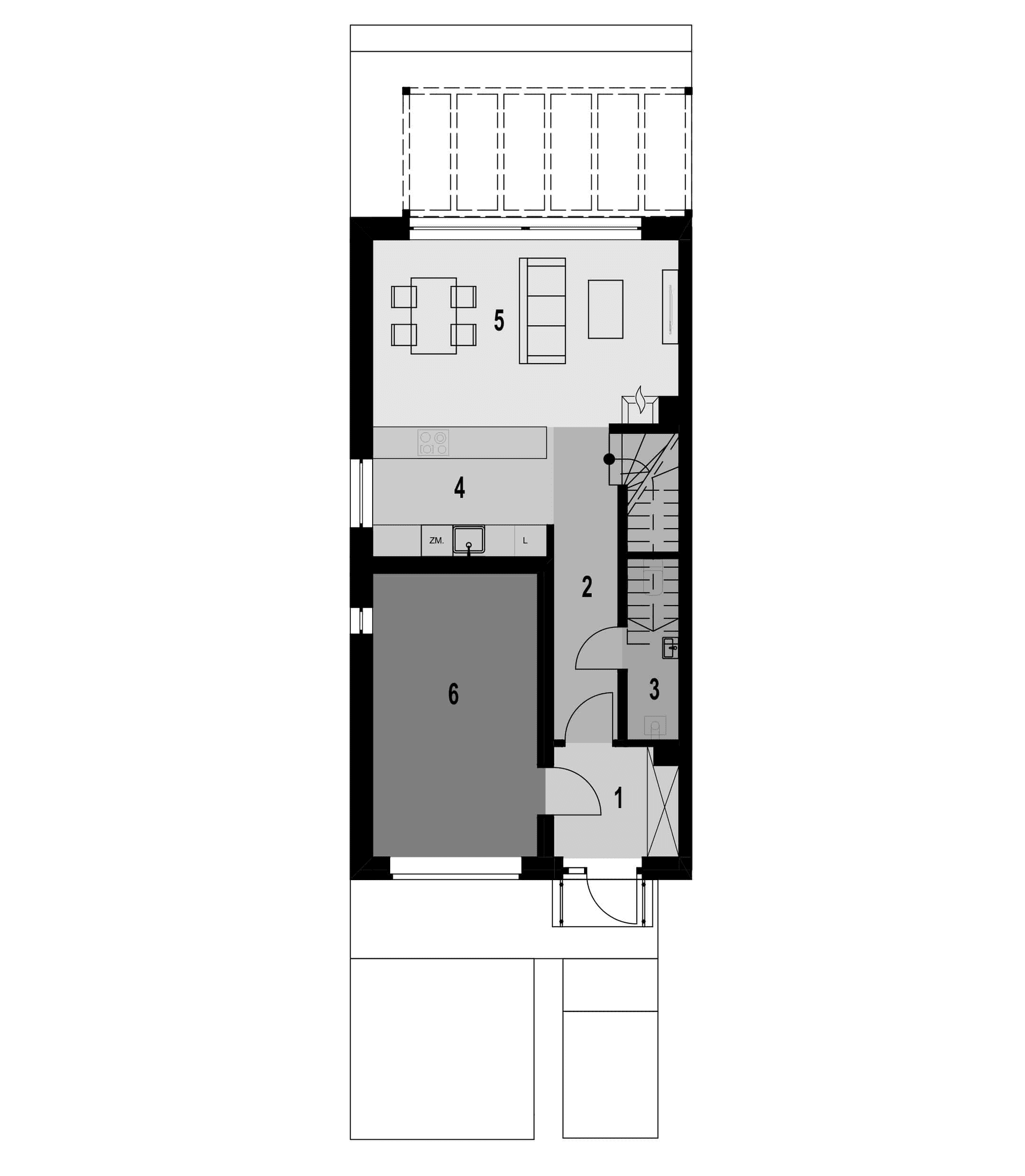
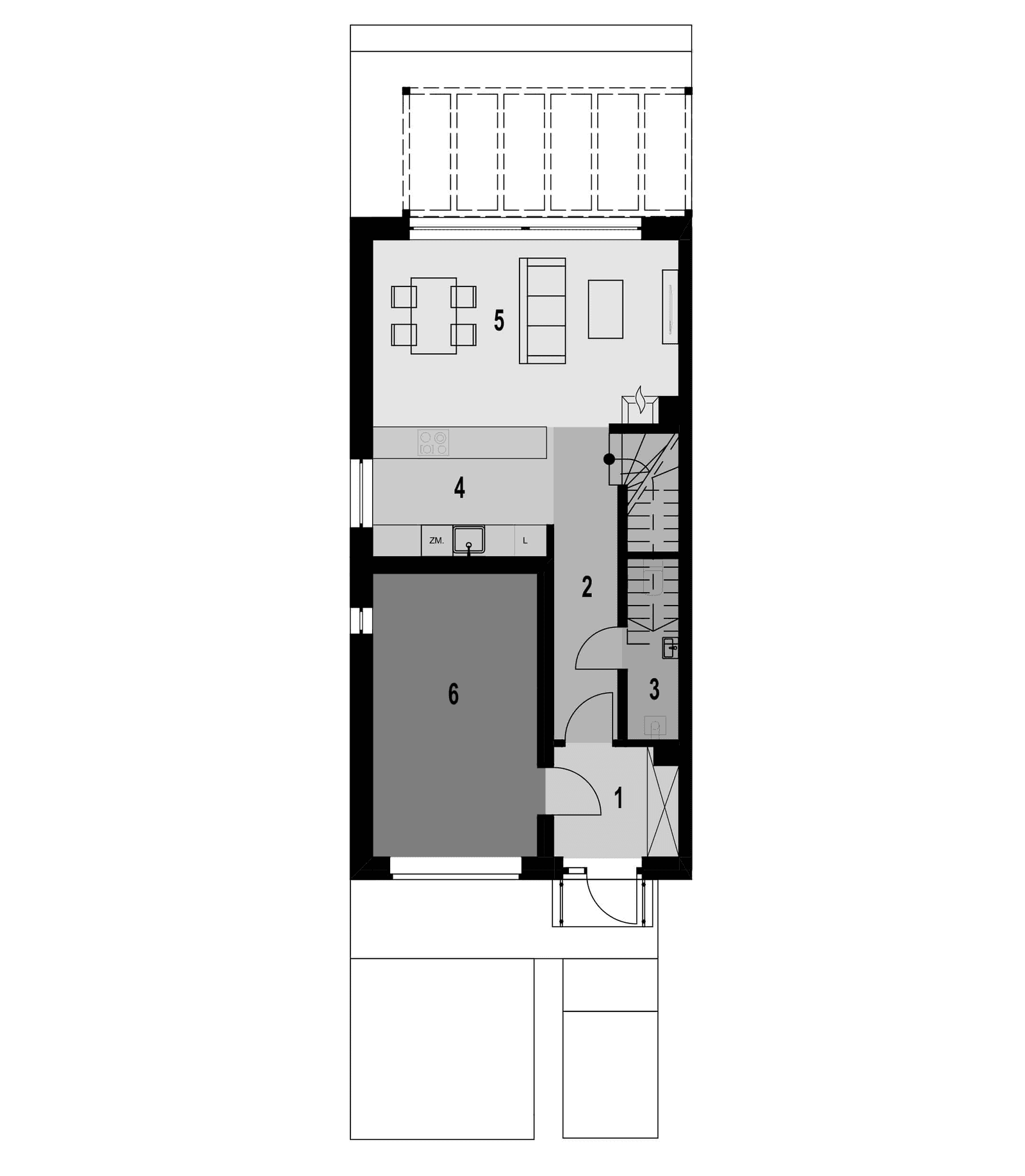
Opis pomieszczeń:
Parter:
1. Wiatrołap 4,71 m2
2. Hol ze schodami 9,81 m2
3. Toaleta 2,89 m2
4. Kuchnia 8,14 m2
5. Salon z jadalnią 20,42 m2
6. Garaż 17,43 m2
Piętro:
1. Korytarz 7,69 m2
2. Pokój 10,26 m2
3. Pokój 13,11 m2
4. Łazienka 6,07 m2
5. Łazienka 4,22 m2
6. Pokój 14,02 m2
7. Garderoba 4,07 m2
Kolekcja zawiera warianty domów w zabudowie bliźniaczej, szeregowej i jako projekty dwulokalowe. Polecamy zgrabne, funkcjonale projekty z potencjałem.























