Projekt Eco 16 to idealny wybór dla rodzin
Projekt domu Eco 16 to rozwiązanie, które łączy nowoczesny design, funkcjonalność oraz wygodę. Przeznaczony dla rodzin liczących od 3 do 5 osób, oferuje optymalne wykorzystanie przestrzeni na dwóch poziomach – parterze i poddaszu, co czyni go idealnym wyborem dla osób szukających domu jednorodzinnego w zabudowie szeregowej lub bliźniaczej.
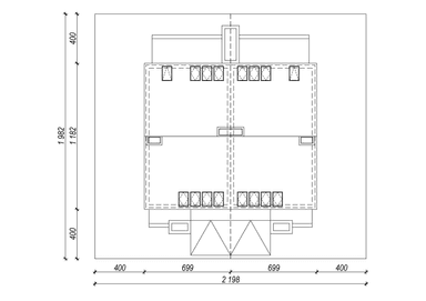
Rozkład pomieszczeń w domu bliźniaczym Eco 16 – ergonomia na najwyższym poziomie
Dom Eco 16 został zaprojektowany z myślą o zapewnieniu maksymalnego komfortu mieszkańcom, oferując:
- Parter:
- Przestronny salon połączony z jadalnią oraz kuchnią tworzy otwartą strefę dzienną, idealną na wspólne spędzanie czasu. Duże okna wpuszczają mnóstwo naturalnego światła, co nadaje przestrzeni przytulny charakter.
- Funkcjonalnie zaprojektowany garaż w bryle budynku zapewnia wygodne miejsce do parkowania, a także dodatkową przestrzeń na przechowywanie narzędzi czy sprzętu sportowego.
- Poddasze:
- Na górze znajdują się trzy sypialnie, z czego jedna pełni funkcję głównej sypialni z dostępem do własnej łazienki. Każda z sypialni jest przestronna i dobrze doświetlona, co gwarantuje komfortowy wypoczynek.
- Dodatkowa łazienka na poddaszu zaspokaja potrzeby większej liczby domowników, minimalizując poranne kolejki i zwiększając wygodę codziennego funkcjonowania.
Garaż i poddasze – praktyczne rozwiązania dla rodzin
Jednym z głównych atutów projektu Eco 16 jest garaż połączony bezpośrednio z budynkiem, co znacznie ułatwia codzienne użytkowanie. Wygodny dostęp do samochodu, zwłaszcza w niekorzystnych warunkach pogodowych, to ogromne ułatwienie dla mieszkańców. Ponadto, możliwość przechowywania w nim sprzętów i narzędzi zwiększa funkcjonalność całego domu.
Poddasze użytkowe natomiast oferuje dodatkową przestrzeń, która może być zagospodarowana jako pokoje dziecięce, biuro domowe lub sypialnie gościnne. Dzięki wysokim sufitom i odpowiedniemu rozmieszczeniu okien, przestrzeń ta jest nie tylko praktyczna, ale również przytulna i jasna.
Energooszczędność i ekologia - dom Eco 16
Projekt Eco 16 kładzie duży nacisk na energooszczędność oraz wykorzystanie ekologicznych rozwiązań. Zastosowanie nowoczesnych materiałów budowlanych zapewnia doskonałą izolację termiczną, co przekłada się na niższe koszty ogrzewania. W projekcie uwzględniono również odpowiednie wykorzystanie naturalnego światła, co dodatkowo wpływa na komfort użytkowania domu i jego energooszczędność.
Dom Eco 16 to inwestycja na lata
Dom Eco 16 to przemyślany projekt, który doskonale spełnia potrzeby rodzin poszukujących komfortowego i funkcjonalnego domu jednorodzinnego. Nowoczesne rozwiązania architektoniczne, ergonomiczne wnętrza oraz nacisk na energooszczędność sprawiają, że jest to inwestycja, która zadowoli nawet najbardziej wymagających mieszkańców.
Kolekcja zawiera warianty domów w zabudowie bliźniaczej, szeregowej i jako projekty dwulokalowe. Polecamy zgrabne, funkcjonale projekty z potencjałem.
























