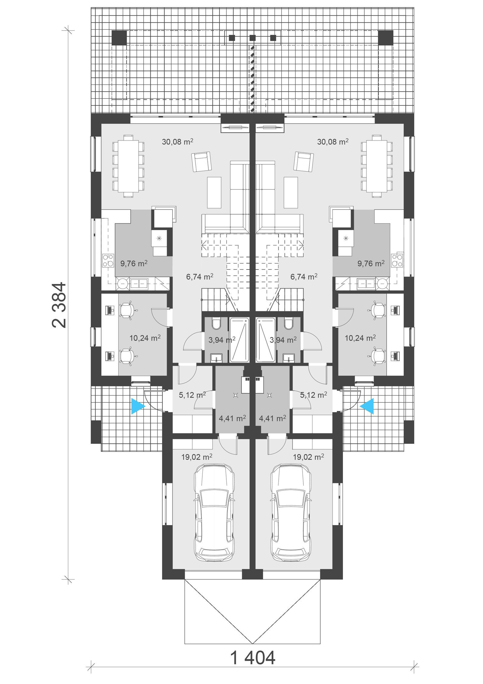
uA117 jest to niezwykle interesujący i nowoczesny projekt dwulokalowy. Ten gotowy projekt wyróżnia się na tle innych szeregówek nowoczesnym stylem oraz najlepszymi rozwiązaniami w zakresie funkcjonalności układu pomieszczeń. Uwagę przyciąga wykończenie elewacji zgodne z aktualnymi trendami w architekturze oraz ciekawe zastosowanie okładzin. Na uwagę zasługują także duże przeszklenia, szczególnie na elewacji ogrodowej, które zapewniają stały dostęp światła do wnętrz optycznie je powiększając. W bryle ulokowano garaż jednostanowiskowy połączony przejściem przez pomieszczenie gospodarcze z domem, co zapewnia wygodę użytkowania szczególnie zimową porą. Do środka domu dostajemy się wejściem głównym znajdującym się na ścianie garażowej. Na dole znajduje się wiatrołap, niewielkich rozmiarów toaleta z prysznicem, gabinet, otwarta kuchnia oraz przestronny salon z jadalnią. Sercem domu jest narożny kominek, który podziwiać można zarówno w jadalni jak i salonu. Ulokowanie kominka właśnie w tym miejscu stanowi duże pole do popisu jeśli chodzi o aranżację tego wnętrza. Na piętrze znajduje się masterbedroom, czyli komfortowa główna sypialnia wyposażona w prywatną łazienkę oraz garderobę oraz dwie przestronne sypialnie również wyposażone w garderoby. Ponadto z korytarza jest dostęp do łazienki ogólnodostępnej, a także do praktycznej pralni. Projekt ten w swojej bryle mieści wszystko co potrzebne dla rodziny 2+2 lub większej. Projekt przeznaczony dla osób, które cenią sobie komfort i ergonomię użytkowania. Kupując projekt uA117 wygodne mieszkanie masz zagwarantowane.
Technologia:
Fundamenty: bloczek betonowy, lany beton
Ściany: silikaty, gazobeton, ceramika
Strop: żelbetowy
Dach: tradycyjna więźba dachowa, blacha
Ogrzewanie: gaz, kaloryfery
Wentylacja: grawitacyjna




















