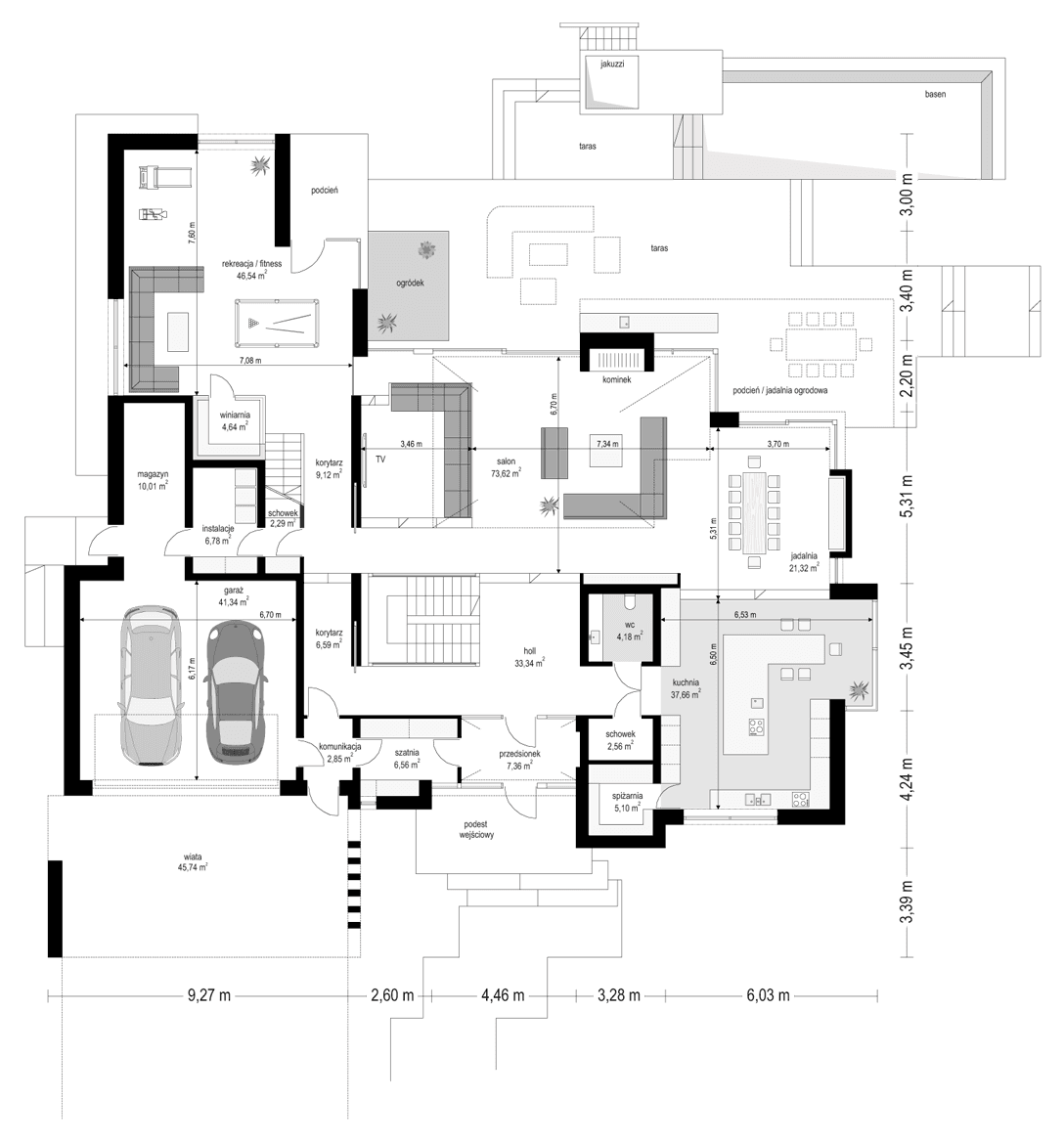
Projekt domu Rezydencja Floryda 2 to kolejny luksusowy dom z serii: Willa i Rezydencja Floryda. Zaprojektowaliśmy superkomfortową willę o nowoczesnej architekturze, z płaskimi dachami i dużymi przeszklonymi ścianami łączącymi reprezentacyjne wnętrze z ogrodem. Ideą przewodnią kształtowania bryły oraz wnętrza budynku jest przenikanie się prostopadłościennych ścian i poziomych płyt z otwarciami i przeszkleniami, tworzące grę świateł i kadrujących się widoków wnętrza i otoczenia. Dzięki takiemu założeniu budynek jest bardziej interesujący, mniej monotonny. Jednocześnie całość architektury zamknięta jest w siatce konsekwentnie powtarzających się detali, nadając całej strukturze odpowiedni rytm i porządek. Rezydencja Floryda 2, choć ma bardzo nowoczesny styl, nie jest przesadnie ekstrawagancki. Architektura budynku może z powodzeniem być dobrym tłem zarówno dla nowoczesnego wnętrza, jak i bardziej eklektycznego - przełamanego antykami czy aranżacją w stylu glamour. Spokojny i stonowany styl domu z pewnością wytrzyma próbę czasu. Do domu Rezydencja Floryda 2 wchodzimy przez przeszklony dwupiętrowy westybul do holu, nad którym piętro tworzy most – antresolę między dwiema pustkami: salonu i przedsionka, oraz frontową i ogrodową przeszkloną elewacją. Tak ukształtowane wnętrze dzieli budynek na pół dwukondygnacyjnym otwartym wnętrzem dziennym. Z prawej strony na parterze mamy dużą rodzinną kuchnię, oraz jadalnię, a na piętrze sypialnie dziecięce. Z lewej strony rezydencji mamy część gospodarczo-techniczną, oraz rekreacyjno-fitnesową, a na piętrze apartament państwa domu, oraz osobne mieszkanie z oddzielnym kameralnym dostępem - dla obsługi domu, bądź dla gości. Centralny salon willi łączy się z kilkoma innymi wnętrzami na parterze i piętrze, tworząc naprawdę ogromną, swobodną przestrzeń do codziennego życia. Mamy tutaj dwa zestawy mebli wypoczynkowych - przy kominku i przy ścianie multimedialnej. Salon łączy się z jadalnią i kuchnią, holem ozdobionym monumentalnymi schodami, opartymi o kamienno – wodną ścianę-wodospad ze zbiornikiem wody u podnóża schodów (ściana wodna i zbiornik są naturalnym klimatyzatorem wnętrza budynku). Salon łączy się również z holem piętra (będący domową biblioteką), oraz z gabinetem - przez imponującą szklaną ścianę. Salon otwiera się również na ogród i zróżnicowane wysokościowo rozbudowane tarasy, a jacuzzi i basenem. Na piętrze apartamenty rodziców i dzieci mają własne łazienki i garderoby. W sypialni master przewidziano garderoby dla niego i dla niej. Rezydencja Floryda 2 to w stu procentach luksusowy dom, spełnienie snu o prawdziwie komfortowym i wygodnym życiu. Rezydencja Floryda 2 to wizytówka właścicieli potwierdzająca ich wysoki status i dobry smak. Już zazdrościmy i podziwiamy szczęśliwców, którzy mogą sobie pozwolić na budowę tego cacka. Zapraszamy do zapoznania się z pełną ofertą pracowni MG Projekt: projekt Rezydencja Floryda, projekt Willa Floryda, projekt domu Willa Floryda 2, projekt Willa Floryda 3, projekt domu Willa Floryda 4, projekt domu Willa Floryda 5, projekt domu Willa Floryda 6, projekt domu Willa Floryda 7, projekt domu Willa Floryda 8.
Materiały:
- Fundamenty - betonowe ławy i ściany fundamentowe betonowe
- Ściany zewnętrzne ściany murowane – pustaki Silka lub gazobeton + styropian
- Strop monolityczne żelbetowe
- Elewacje tynk cienkowarstwowy i płyty elewacyjne
- Pokrycie dachu membrana




















