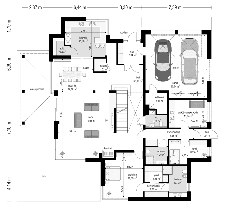
Projekt domu Willa komfortowa jest siostrzanym projektem naszego popularnego projektu „Willa z basenem”. Różni się jednak od swojego protoplasty przede wszystkim tym, że nie ma części basenowej. Projekt domu Willa komfortowa jest wygodną rezydencją dla dwu- lub trzypokoleniowej rodziny. Na piętrze mamy pięć sypialni, a na parterze mamy apartament rodziców, oraz dodatkowe osobne mieszkanko - dla seniorów, lub niani czy też gosposi mieszkającej w domu. Naprawdę wnętrze jest bardzo obszerne i można je na wiele sposobów zagospodarować. Dodatkowe mieszkanie może też być biurem, gabinetem czy przydomową firmą. Architektura domu: budynek jest piętrowy, jego główną bryłę przykrywa czterospadowy dach. Do głównej bryły domu dobudowane są parterowe dobudówki. Elewacje podzielone są na poziome pasy wykończone różnymi materiałami - kamieniem i tynkiem. Okna, przeważnie narożne podkreślają nowoczesny willowy styl. Całość tworzy bardzo atrakcyjną, reprezentacyjną rezydencję miejską. Prawdziwą siedzibę. Do domu wchodzimy przez szerokie drzwi wejściowe z naświetlami, obserwowani z narożnego okna w kuchni do przedsionka i dalej do holu. Hol z reprezentacyjnymi schodami łączy się tutaj z pięknym salonem połączonym z jadalnią. Z salonu przez narożne przeszklenia rozpościera się widok na otaczające tarasy i ogród. Kuchnia jest nieco oddzielona od reszty domu - może być zamknięta przesuwnymi chowanymi drzwiami. Z jadalni przechodzimy do pięknego ogrodowego zadaszonego tarasu. Z drugiej strony domu mamy część garażowo-gospodarczą z podwójnym garażem i kotłownią, dodatkowy lokal – mieszkanie, oraz apartament rodziców z łazienką i podwójną garderoba. Na piętrze przewidziano aż pięć pokoi, dwie łazienki i garderobę. Hol na piętrze jest połączony z holem na parterze pustką obok schodów. To dodaje wnętrzu sznytu i reprezentacyjnego wyglądu i poczucia dużej przestrzeni. Projekt domu Willa komfortowa do świetna propozycja dla Inwestorów, którzy potrzebują rozbudowanego programu użytkowego i wielu pomieszczeń i - co tu dużo mówić – dla szczęściarzy, którzy mogą sobie pozwolić na duży dom. Jeśli szukają Państwo domu o powierzchni powyżej 300 m², to nasz projekt może być dobrym wyborem. Budynek ma w sumie dość prostą bryłę, nie ma bardzo skomplikowanej konstrukcji, jest dobrze ocieplony, ma nowoczesne instalacje. Będzie raczej nietrudny z budowie i dość niedrogi w późniejszej eksploatacji. Zapraszamy !
Materiały:
- Fundamenty betonowe ławy i ściany fundamentowe z bloczków betonowych
- Ściany zewnętrzne ściany murowane – pustaki porotherm 25 + styropian
- Strop monolityczny betonowy
- Elewacje tynk cienkowarstwowy
- Pokrycie dachu dachówka




















