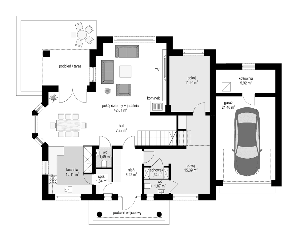
Projekt domu Ofelia 3 jest kolejną wersją projektu z serii domów „Ofelia”. Jest to projekt zmniejszony w stosunku do bazowej wersji, z pojedynczym garażem i z dodatkowym lokalem na parterze: mieszkaniem dla seniorów lub dorosłych dzieci, albo przestrzenią biurową. Ofelia 3 to projekt jednorodzinnego domu, parterowy z poddaszem użytkowym, przykryty czterospadowym dachem, z dobudowaną częścią garażową. Tradycyjna architektura domu, z dworkową bryłą, łączy się z nowoczesnymi materiałami i detalami. Całość zyskuje dzięki temu ponadczasowy charakter. Front domu został zaakcentowany szeroką lukarną z balkonem wspartym na kolumnach. Wejście do domu szerokimi drzwiami z naświetlami bocznymi jest bardzo reprezentacyjne. Od strony ogrodowej elewacja urozmaicona jest lukarną z balkonem, wykuszem salonu z pięknym nisko schodzącym oknem, oraz podcieniem częściowo zadaszającym taras. Wnętrze domu: na parterze wydzielono część dzienną domu, oraz dodatkowy lokal (mieszkanie, lub na przykład biuro), do którego dostajemy się z obszernego przedsionka. W części dziennej mamy salon z jadalnią i holem, oraz kuchnię ze spiżarnią. Dodatkowo z boku domu dobudowany jest garaż z kotłownią (część garażową można połączyć z domem dodatkowymi drzwiami). Na poddaszu zaprojektowano trzy sypialnie z dużą łazienką, oraz dodatkowy pokój nad garażem. Sypialnia rodziców posiada własną garderobę, oraz balkon z widokiem na ogród. Ofelia 3 to świetna propozycja dla wielopokoleniowej rodziny, albo dla Inwestorów prowadzących swój biznes w domu. Budynek na dość prostą konstrukcję. Jest łatwy w budowie, a dzięki energooszczędnym rozwiązaniom będzie niedrogi w eksploatacji. Ofelię 3 można łatwo dostosować do standardu NF40. Zapraszamy.
Materiały:
- Fundamenty betonowe ławy i ściany fundamentowe z bloczków betonowych
- Ściany zewnętrzne ściany murowane - pustaki porotherm 25 + styropian + tynk cienkowarstwowy
- Strop Teriva
- Elewacje tynk cienkowarstwowy na styropianie
- Pokrycie dachu dachówka ceramiczna





















