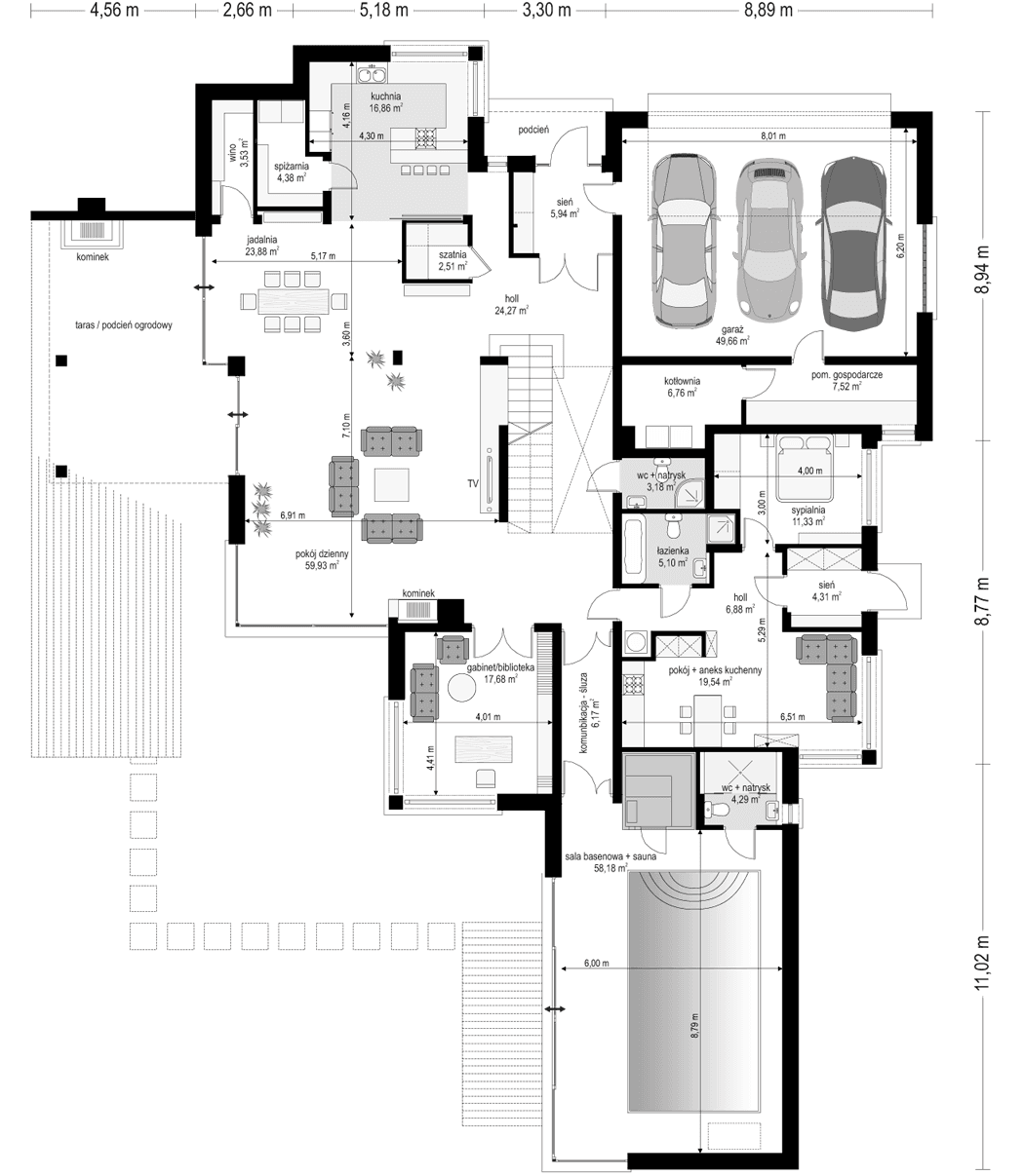
Projekt domu Willa z Basenem to obszerna rezydencja dla rodziny 4- 6-osobowej. Dom składa się ze zwartej, jednopiętrowej bryły przekrytej czterospadowym dachem, oraz dobudowanych dwóch brył parterowych, przekrytych wielospadowymi dachami. Budynek jest podmiejską willą o nowoczesnej, ale spokojnej architekturze. Ciekawa stylistyka domu z dobudowanym garażem, dużym zadaszonym podcieniem, oraz osobnym pomieszczeniem z tyłu willi, pełniącym funkcję wypoczynkową. Bryła budynku została ciekawie ozdobiona klinkierowymi i drewnianymi okładzinami elewacji, oraz loggiami i podcieniem wejściowym. Masywny ozdobny komin kominka wewnętrznego i zewnętrznego, czy narożne okna - to dodatkowe ozdoby domu. Na parterze przez szerokie przeszklenia z salonu zaplanowano wyjście do dużego podcienia i na taras ogrodowy. W projekcie Willa z Basenem wszystkie elementy elewacji tworzą spójną, spokojną kompozycyjnie całość. Pracownia posiada także wersję projektu Willa z Basenem w odbiciu lustrzanym.
Materiały:
- Fundamenty betonowe ławy i ściany fundamentowe z bloczków betonowych
- Ściany zewnętrzne ściany murowane - gazobeton + styropian + tynk cienkowarstwowy
- Strop monolityczny płytowy
- Elewacje tynk cienkowarstwowy na styropianie
- Pokrycie dachu dachówka




















