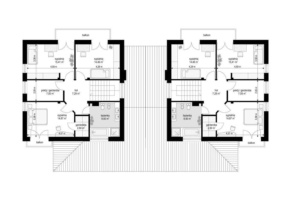
Projekt domu Szmaragd 2 to wariantowe rozwiązanie projektu domu Szmaragd. Zaprojektowano go tym razem w wersji bliźniaczej. Budynek o nowoczesnej formie z atrakcyjnymi detalami współgra z prostotą bryły i konstrukcji. Projekt domu Szmaragd 2 to dwie części bliźniaka przekryte dachami kopertowymi połączono garażami zwieńczonymi dwuspadowym, niższym dachem. Dzięki temu połówki domu są od siebie wizualnie odseparowane. Zasadniczą bryłę projektu domu Szmaragd 2 wzbogacono o częściowo wystający garaż, podcień wejściowy i ogrodowy oraz wykusz i balkony. Całość tworzy spójną, czystą kompozycję. Nowoczesny zewnętrzny wygląd budynku współgra doskonale z wnętrzem. Na parterze zaplanowano jednoprzestrzenną otwartą część dzienną holu, jadalni i salonu, z dużymi przeszkleniami na ogród. Aneks jadalny częściowo połączono z kuchnią. Na parterze mieszkania, swoje miejsce znalazł także dwustanowiskowy garaż i kotłownia. W domu Szmaragd 2, na piętrze, umieszczono trzy sypialnie z łazienką, oraz dodatkowy pokój mogący służyć jako gabinecik, sypialnia gościnna, albo garderoba. Zapraszamy do zapoznania się z pełną ofertą pracowni MG Projekt tej serii: wersja bazowa (projekt domu Szmaragd), wersja z dodatkowym pokojem na parterze (projekt domu Szmaragd 3) oraz wersje w nowocześniejszym stylu ( projekt domu Szmaragd 4), (projekt domu Szmaragd 5), (projekt domu Szmaragd 6). Zapraszamy !
UWAGA! Koszty realizacji oraz dane techniczne dotyczą połowy bliźniaka.
Materiały:
- Fundamenty betonowe wylewane
- Ściany zewnętrzne dwuwarstwowe porotherm 25 + 18 styropian (lub wełna mineralna)
- Strop Teriva
- Elewacje tynk cienkowarstwowy
- Pokrycie dachu blachodachówka lub dachówka



















