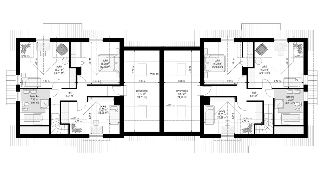
Projekt domu Szkwał to kolejny projekt z serii naszych "morskich perełek" (vide: projekt Bryza, projekt Klif). Tym razem bardzo udaną formę domu i wnętrza udało się zakomponować jako budynek bliźniaczy. Dwie identyczne połowy budynku połączono ze sobą garażami. Projekt domu Szkwał ma spokojną formę - przekryty jest dwuspadowymi dachami, urozmaiconymi lukarnami i przedłużeniami dachów podcieni. Prosta bryła budynku i nieskomplikowana konstrukcja ułatwi budowę i obniży koszty wykonawstwa. Wnętrze domku Szkwał zaprojektowano w sposób maksymalnie funkcjonalny i z poszanowaniem każdego metra kwadratowego. Na parterze zmieszczono salon z jadalnią połączony z holem, częściowo otwartą kuchnię, oraz dodatkowy pokój - mogący służyć jako sypialnia lub np. gabinet. Na poddaszu zaplanowano trzy wygodne sypialnie. Dobudowany garaż z pomieszczeniem gospodarczym i kotłownią na parterze wieńczy na poddaszu strych. Istnieje możliwość do zaadaptowania jako pomieszczenie użytkowe, np. dodatkowy pokój. Projekt domu Szwał dostępny jest też w odbiciu lustrzanym.
UWAGA! Koszty realizacji oraz dane techniczne dotyczą połowy bliźniaka.
Materiały:
- Fundamenty betonowe wylewane
- Ściany zewnętrzne dwuwarstwowy beton komórkowy 24 + styropian (lub wełna mineralna)
- Strop Teriva
- Elewacje tynk cienkowarstwowy
- Pokrycie dachu blachodachówka lub dachówka


















