Projekt domu Praktyczny A to niewielki domek jednorodzinny dla czteroosobowej rodziny. Budynek parterowy z poddaszem użytkowym.
Projekt Praktyczny przedstawiamy w dwóch wersjach wariantowych - jako dom jednorodzinny dla jednej rodziny, oraz jako dom dwulokalowy - z wydzielonymi dwoma mieszkaniami na parterze i na poddaszu.
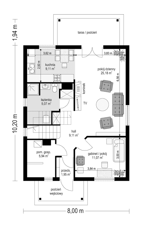
Projekt domu Praktyczny A architektura i wnętrze
Projekt domku Praktyczny A to budynek jednorodzinny. Bryła budynku Praktyczny jest bardzo prosta, na pewno nie będzie trudna w budowie. Dobrze dobrane proporcje domu Praktyczny A i detale architektoniczne powodują, że wygląd zewnętrzny budynku jest bardzo atrakcyjny.
W projekcie domku Praktyczny A na parterze zaplanowano pokój dzienny połączony przestrzennie z holem ze schodami i z kuchnią, oraz pomieszczenie gospodarcze i dodatkowy pokój - gabinet lub sypialnię gościnną. Na piętrze Praktycznego zaprojektowano trzy sypialnie, w tym jedna jako apartament rodziców z własną łazienką i garderobą, oraz ogrodowym tarasem. Gotowy projekt domu jednorodzinnego Praktyczny A, pomimo niedużej powierzchni mieści w sobie wiele pomieszczeń i rozwiązania funkcjonalne spotykane w dużych domach.
Siłą projektu domku Praktyczny A jest jego prostota i maksymalnie klarowny układ funkcjonalny. Projekt Praktyczny A można zamówić w wersji odbicia lustrzanego, oraz jako dom dwulokalowy - projekt domu Praktyczny B.
Materiały:
- Fundamenty betonowe wylewane
- Ściany zewnętrzne konstrukcja drewniana szkieletowa z kantówki 14x4 + OSB + docieplenie wełną mineralną 10 cm + tynk cienkowarstwowy
- Strop belkowy drewniany
- Elewacje tynk cienkowarstwowy
- Pokrycie dachu blachodachówka lub dachówka








