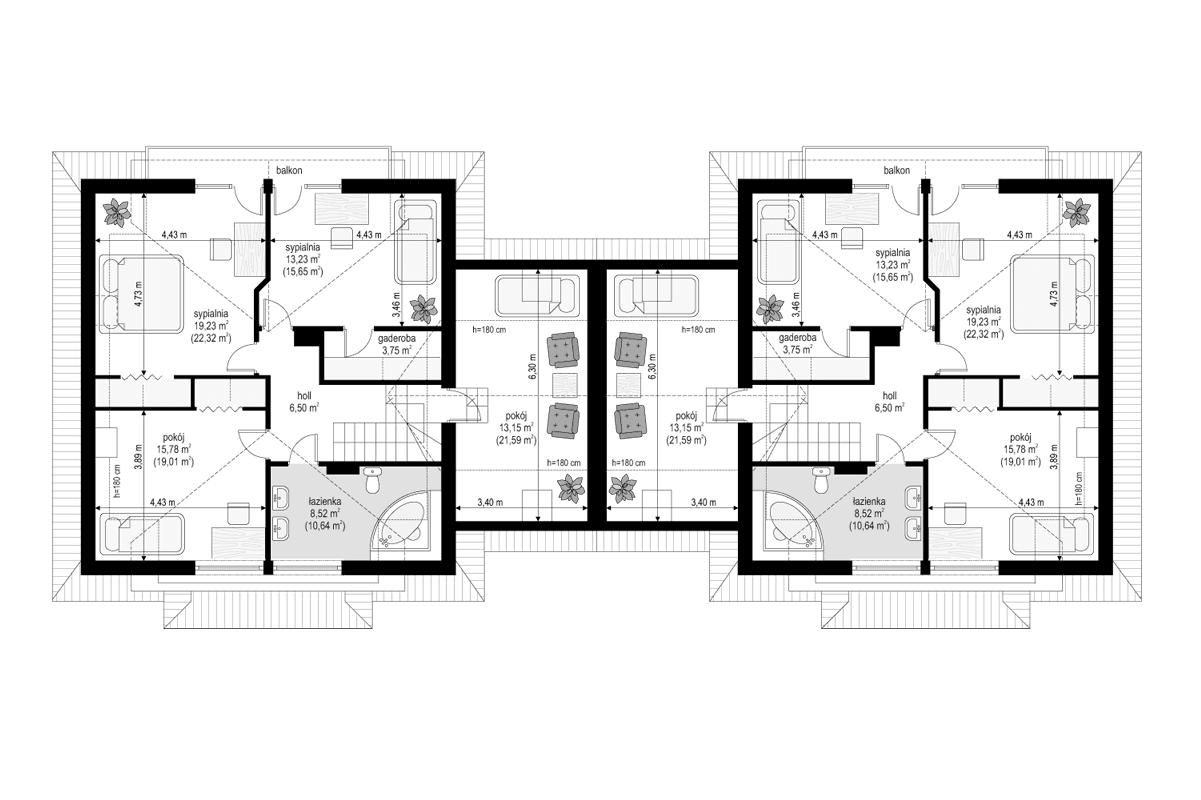
Projekt domu Dom na Medal - Bliźniak to bliźniaczy budynek jednorodzinny, występujący również w wersji wolnostojącej. Dom przeznaczony dla dwóch rodzin 4- 5-osobowych. Domek został zaprojektowany na planie prostokąta, przekrytego wielospadowym dachem z dobudowanym garażem, jako łącznikiem dwóch połówek bliźniaka. Wnętrze: na parterze zaprojektowano salon z aneksem jadalnym i niewielkim podcieniem, półotwartą kuchnię ze spiżarnią, dodatkowy pokój z łazienką - oddzielony od części dziennej, kotłownię i garaż. Na poddaszu umieszczono trzy sypialnie, wygodną łazienkę i dodatkowy pokój nad garażem. Dom jest funkcjonalnie i oszczędnie zaprojektowany. Ciekawe lukarny, podcień wejściowy i ogrodowy, wykusz jadalni i duże przeszklenie z salonu na taras - dają atrakcyjny wygląd zewnętrzny. Zapraszamy do zapoznania się z pełną ofertą pracowni MG Projekt: Dom na Medal 2 - połowa bliźniaka.
UWAGA! Koszty realizacji oraz dane techniczne dotyczą połowy bliźniaka.
Materiały:
- Fundamenty betonowe
- Ściany dwuwarstwowe porotherm + wełna mineralna
- Strop Teriva
- Pokrycie dachu dachówka ceramiczna


















