Projekt domu D210 Adresowo - wyjątkowy i funkcjonalny budynek usługowo-mieszkalny
Projekt D210 to propozycja dla osób, które szukają wyjątkowego i funkcjonalnego budynku usługowo-mieszkalnego. Dom wyróżnia się kompaktową bryłą, dzięki czemu zajmuje niewielką powierzchnię, a jednocześnie zapewnia komfortowe warunki dla mieszkańców i użytkowników lokali usługowych.
Zalety budynku:
- Dom D210 to wyjątkowy i funkcjonalny budynek usługowo-mieszkalny. Dom wyróżnia się kompaktową bryłą, dzięki czemu zajmuje niewielką powierzchnię, a jednocześnie zapewnia komfortowe warunki dla mieszkańców i użytkowników lokali usługowych.
- Unikalną cechą projektu D210 jest jego kompaktowa bryła. Dzięki temu budynek zajmuje niewielką powierzchnię, a jednocześnie zapewnia komfortowe warunki dla mieszkańców i użytkowników lokali usługowych. Jest to idealne rozwiązanie dla osób, które chcą wybudować budynek usługowo-mieszkalny na niewielkiej działce.
- Inną unikalną cechą projektu D210 jest jego funkcjonalność. Na parterze znajdują się dwa lokale usługowe, które mogą być przeznaczone na różne branże. Dzięki temu budynek może być wykorzystywany przez różne osoby i firmy. Na poddaszu znajdują się dwa mieszkania o powierzchni ok. 55 m2 każde. Mieszkania są przestronne i jasne, dzięki czemu zapewniają komfortowe warunki do życia.
Dom D210 to doskonała propozycja dla osób, które szukają wyjątkowego i funkcjonalnego budynku usługowo-mieszkalnego. Układ funkcjalony jest podzielony na konkretne pomieszczenia z przemyślanym układem ścieżki użytkowania w zależnosci od zaprojektowanych funkcji. Poniżej szczegółowo opisujemy przeznaczenie pomieszczeń i funkcjonalność budynku.
Dane ogólne
Budynek mieszkalny jednorodzinny z lokalem usługowym w parterze i z garażem podziemnym
Ilość kondygnacji nadziemnych: 3
Ilość kondygnacji podziemnych: 1
Ilość lokali mieszkalnych: 2
Wysokość budynku (od poziomu terenu przy wejściu do kalenicy): 12 m
Powierzchnia zabudowy/całkowita: 220,06 m2
Powierzchnia użytkowa łącznie [podziemna i nadziemna]: 649,81 m2
Dane powierzchniowe
Powierzchnia użytkowa kondygnacji podziemnej: 174,99 m2
Powierzchnia użytkowa garażu podziemnego: 130,38 m2
Powierzchnia użytkowa kondygnacji nadziemnych: 474,82 m2
Powierzchnia użytkowa mieszkalna [część nadziemna]: 281,68 m2
Powierzchnia użytkowa usług [część nadziemna]: 136,1 m2
Powierzchnia użytkowa pomocnicza [część nadziemna]: 57,04 m2
Kubatura brutto (wg. PN-70/B-02365): 2.584,40 m3
Dane techniczne
Rodzaj dachu: dwuspadowy i płaski
Powierzchnia dachu dwuspadowego: 129,82 m2
Powierzchnia dachu płaskiego: 116,04 m2
Powierzchnia dachu w sumie: 245,86 m2
Opis techniczny
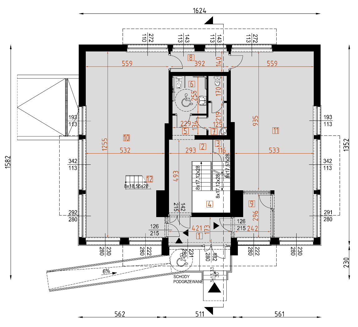
Budynek D210 to budynek mieszkalny jednorodzinny z lokalem usługowym w parterze i z garażem podziemnym. Budynek ma trzy kondygnacje nadziemne i jedną kondygnację podziemną.
Parter
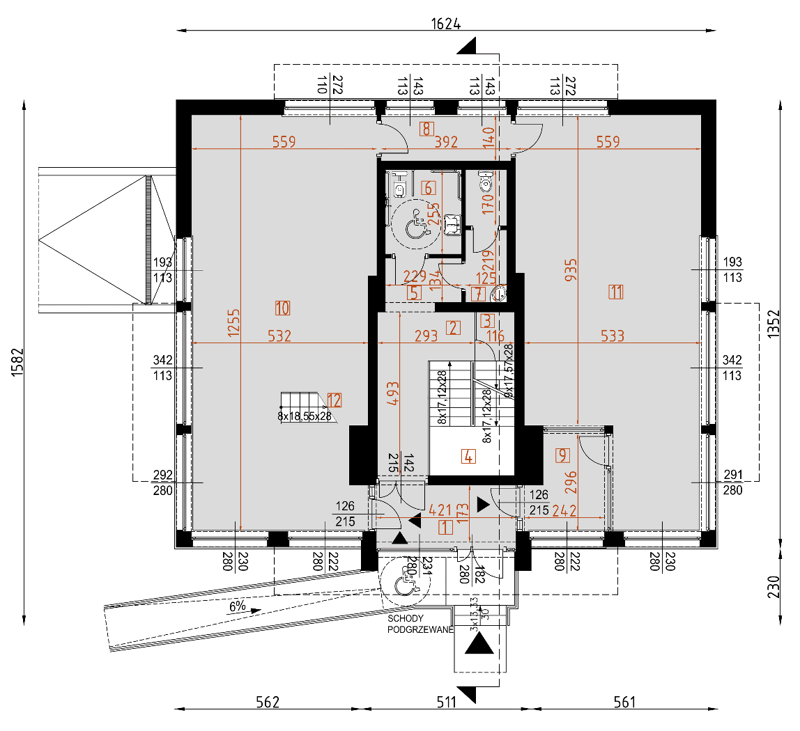
Na parterze znajduje się lokal usługowy o powierzchni użytkowej 136,1 m2. Lokal jest przestronny i jasny, dzięki dużym oknom wychodzącym na ulicę. Lokal może być przeznaczony na różne branże, takie jak sklep, restauracja, biuro, gabinet lekarski lub kosmetyczny.
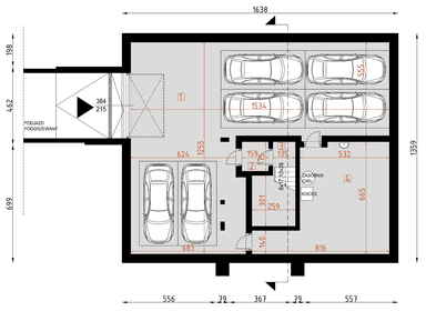
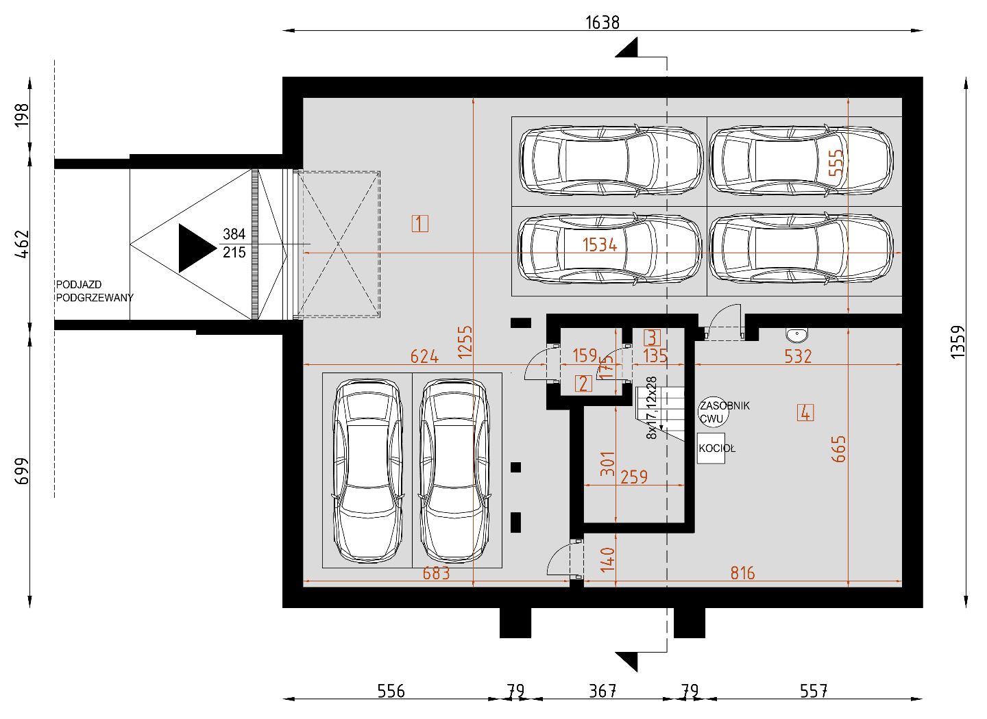
W części zachodniej parteru znajduje się garaż podziemny, który może pomieścić sześć samochodów. Garaż jest wygodny i bezpieczny, dzięki czemu mieszkańcy i użytkownicy lokali usługowych mogą bezpiecznie parkować swoje samochody.
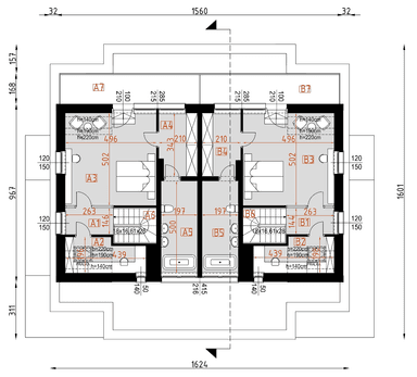
Kondygnacje nadziemne
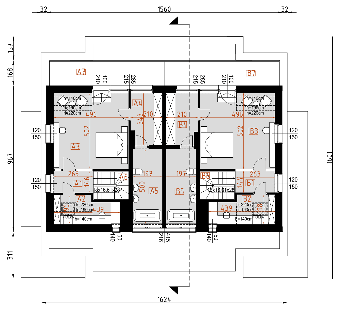
Na kondygnacjach nadziemnych znajdują się dwa mieszkania. Mieszkania mają powierzchnię użytkową ok. 281 m2 każde. Mieszkania są przestronne i jasne, dzięki dużym oknom wychodzącym na ogród. Mieszkania mogą być przeznaczone dla rodzin z dziećmi lub dla singli.
Dach
Budynek D210 posiada dach dwuspadowy i płaski. Dach dwuspadowy pokryty jest blachą trapezową, natomiast dach płaski jest pokryty papą.
Podsumowanie
Budynek D210 to funkcjonalny i komfortowy budynek mieszkalno-usługowy. Budynek wyróżnia się kompaktową bryłą, dzięki czemu zajmuje niewielką powierzchnię, a jednocześnie zapewnia komfortowe warunki dla mieszkańców i użytkowników lokali usługowych.
Projekty domów tanich w budowie i z tradycją od 20 lat
























