Projekt domu Eco12 Szereg to doskonały projekt domu przeznaczony do zabudowy szeregowej, idealny dla deweloperów. Ten projekt spełnia oczekiwania czteroosobowej rodziny, oferując jednocześnie nowoczesną stylistykę i przemyślaną funkcjonalność. Prosta bryła budynku gwarantuje niskie koszty budowy, co stanowi dodatkową zaletę.
Ten projekt domu to doskonały wybór dla deweloperów, którzy poszukują najlepszego rozwiązania do zabudowy szeregowej. Jego nowoczesny design, funkcjonalność i możliwości adaptacji spełnią oczekiwania każdej rodziny.
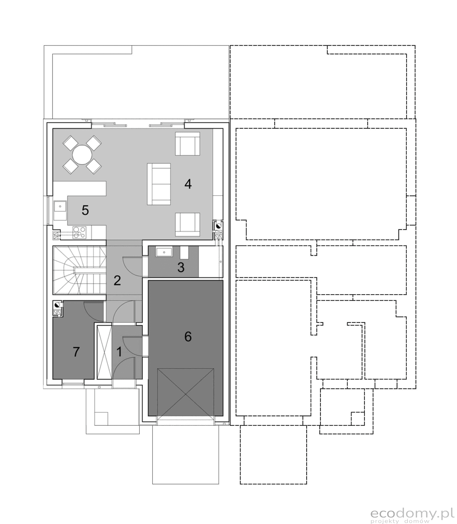
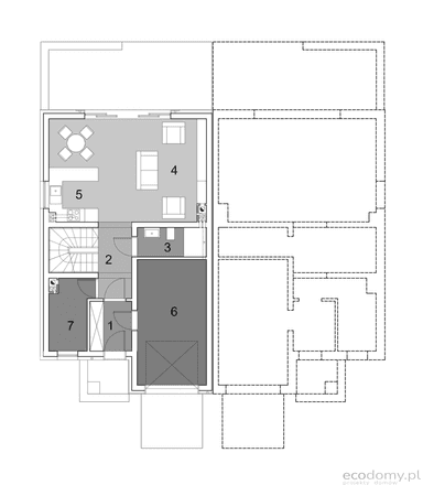
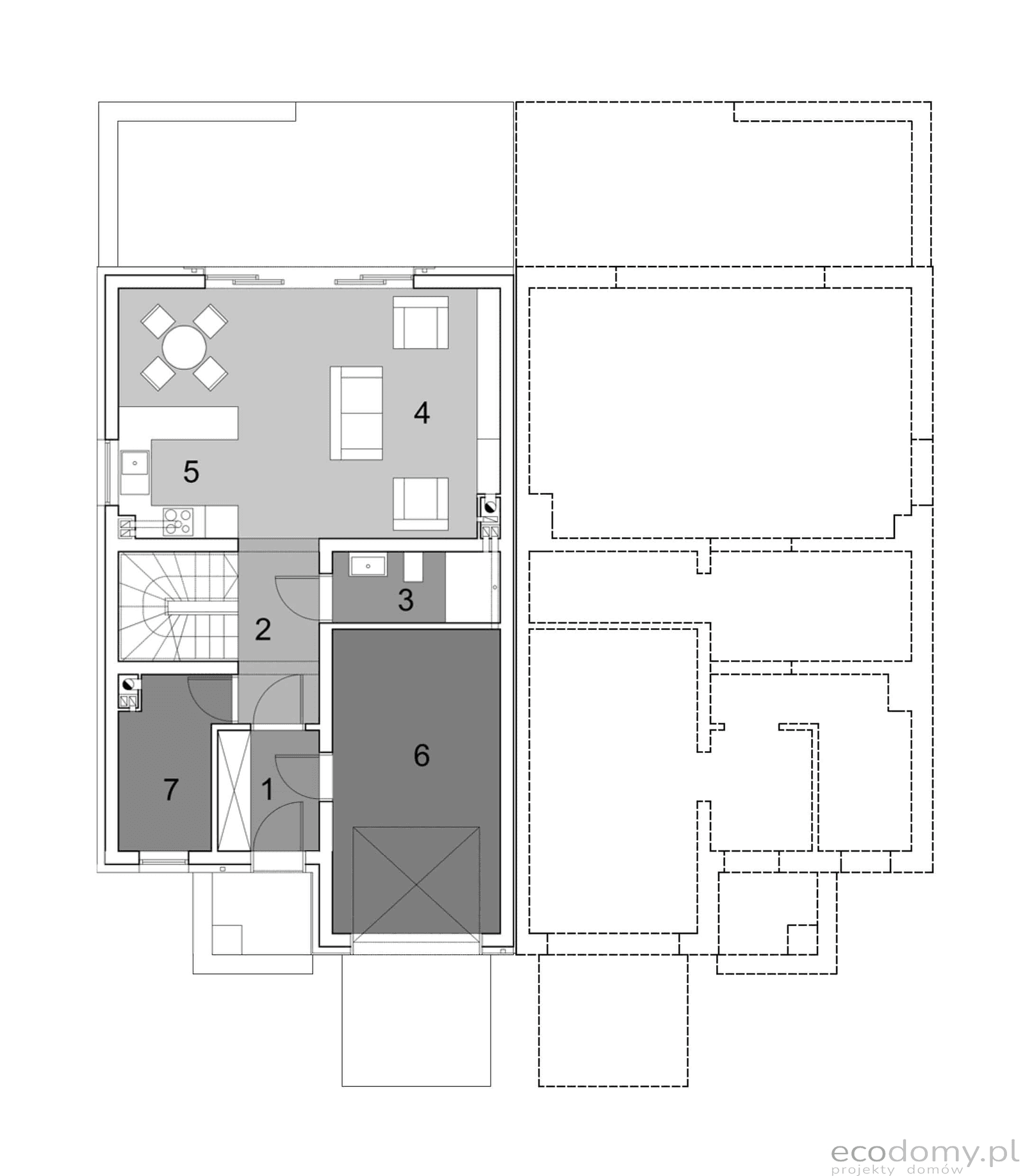
Strefa dzienna tego domu składa się z przestronnego i doskonale doświetlonego salonu, który harmonijnie łączy się z otwartą kuchnią. Projekt uwzględnia także praktyczne rozwiązania, takie jak duża kotłownia oraz garaż z bezpośrednim wejściem do domu, co dodatkowo zwiększa wygodę użytkowania.
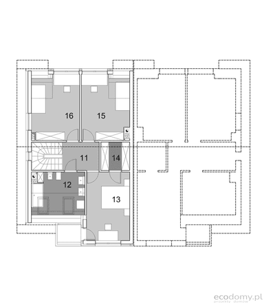
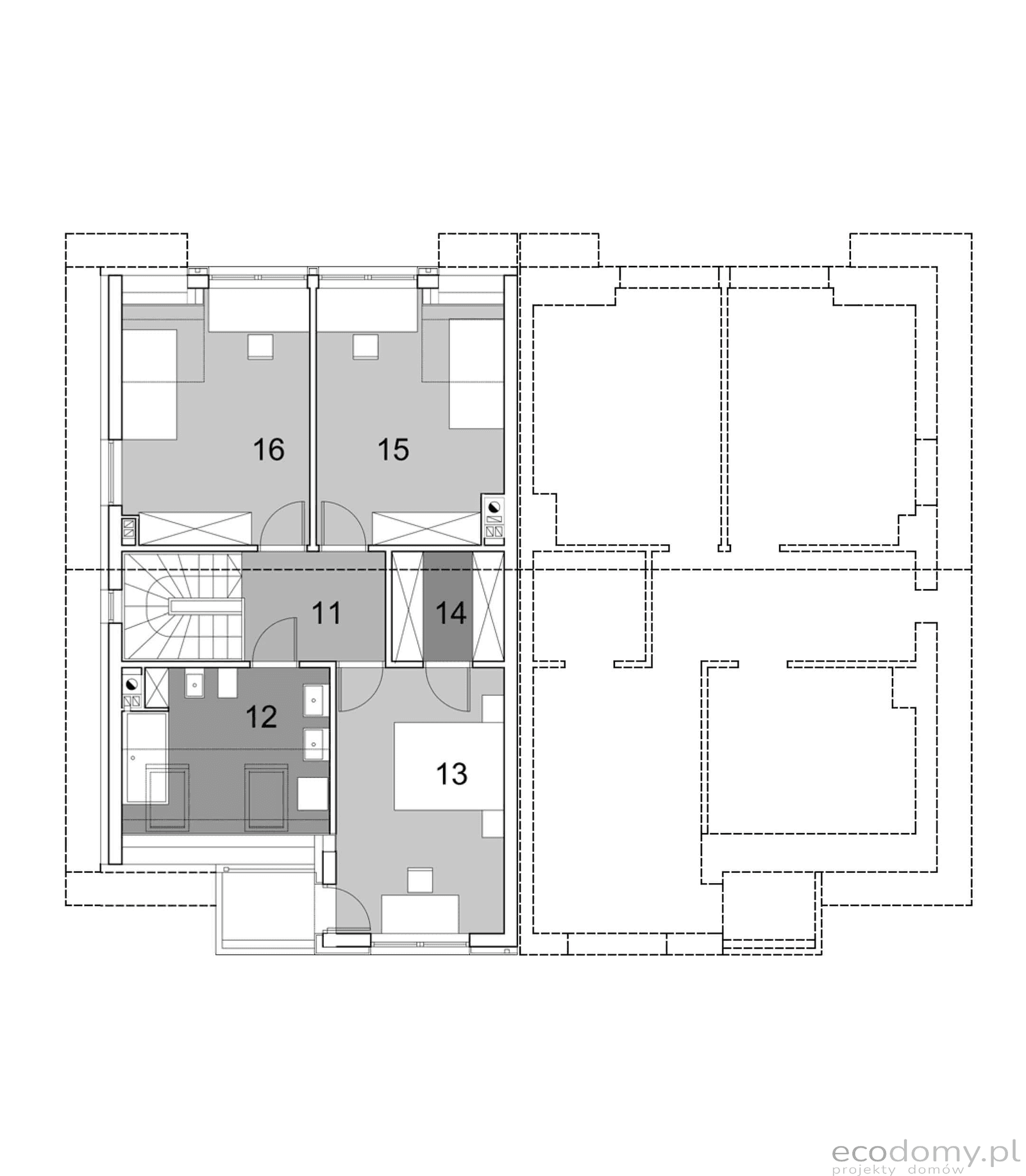
Nocna strefa domu składa się z trzech obszernych sypialni oraz przestronnej łazienki. Głównej sypialni przylega garderoba, która zapewnia dodatkową przestrzeń do przechowywania, a także balkon, który stanowi idealne miejsce do odpoczynku i relaksu.
Projekt Eco12 Szereg uwzględnia także liczne wnęki, które dają możliwość zabudowy, zapewniając tym samym praktyczne rozwiązania przestrzenne.
#ProjektDomu #Eco12 #ZabudowaSzeregowa #DlaDeweloperów #NowoczesnyDesign
Kolekcja zawiera warianty domów w zabudowie bliźniaczej, szeregowej i jako projekty dwulokalowe. Polecamy zgrabne, funkcjonale projekty z potencjałem.



















