Projekt budynku usługowo-mieszkalnego Oppidanus I G2.
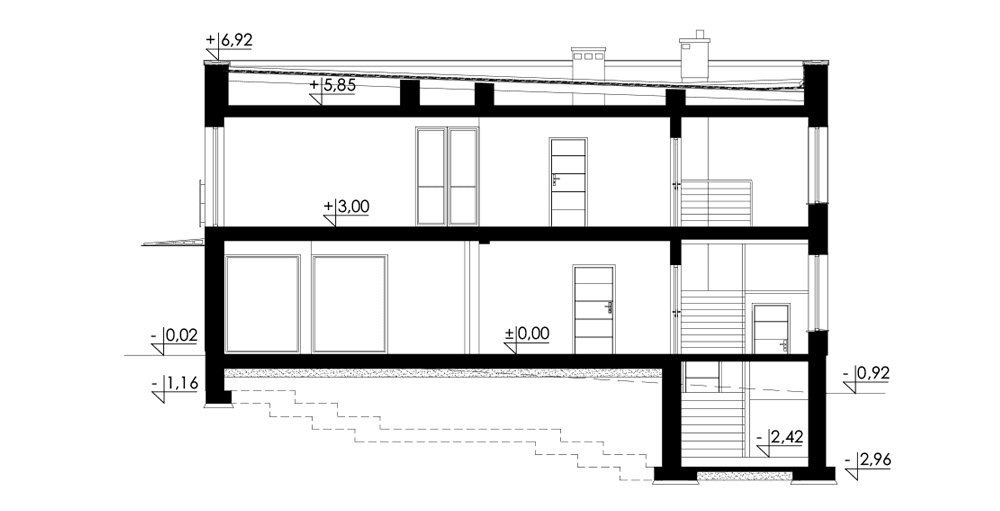
Przedstawiamy nowoczesny, trzykondygnacyjny budynek usługowo-mieszkalny, który jest idealnym rozwiązaniem dla osób poszukujących przestrzeni do prowadzenia działalności gabinetu stomatologicznego, biura lub sklepu. Budynek jest wolnostojący, z częściowym podpiwniczeniem, co zapewnia dodatkową powierzchnię użytkową.
Budynek został zaprojektowany w taki sposób, że dolna część zajmuje przestrzeń usługową, natomiast górna część przeznaczona jest na cele mieszkalne. Istnieje również możliwość łatwej adaptacji budynku na dom jednorodzinny lub dwurodzinny poprzez wydzieloną klatkę schodową z tyłu budynku, jednocześnie zachowując część funkcji usługowych na parterze.
Układ funkcjonalny budynku obejmuje trzy gabinety stomatologiczne, sterylizatornię, pomieszczenie do wykonywania zdjęć rentgenowskich, pomieszczenie socjalne, toaletę dla personelu oraz toaletę dla klientów / osób niepełnosprawnych. Istnieje również strefa wejściowa z poczekalnią, pomieszczenie techniczne oraz wspólne pomieszczenie techniczne dla części usługowej i mieszkalnej.
W części mieszkalnej znajduje się przestronny pokój dzienny z jadalnią, kuchnia, trzy pokoje, sypialnia, łazienka oraz garderoba. Ponadto, zaprojektowano wspólne pomieszczenie techniczne dla części usługowej i mieszkalnej, co zapewnia wygodę i funkcjonalność.
Ten projekt pozwala na różnorodne możliwości adaptacji w zależności od potrzeb, czy to jako gabinet stomatologiczny, biuro, sklep lub przestrzeń mieszkalna dla jednej lub dwóch rodzin. Jest to doskonałe rozwiązanie dla osób szukających elastycznego i funkcjonalnego budynku, który może dostosować się do zmieniających się potrzeb.
Projekty domów jednorodzinnych i projekty usługowe, projekty do zabudowy wielorodzinnej

















