Projekt domu Homekoncept86 to prawdziwa perełka projektowa, dom ten jest parterowy, z płaskim dachem i niezwykle prezentująca nowoczesny styl życia. Cudny projekt domu dla wymagajacych, na małe dzialki, do wybudowania na Maurach w pięknych okolicznbościach przyrody!
Ten minimalistyczny dom o prostokątnej bryle spełni marzenia każdego miłośnika prostoty i elegancji. Można w nim zrelaksować się po pełnym wyzwaniach dniu lub spędzić magiczne chwile podczas romantycznego weekendu za miastem. Przykuwający uwagę widok oraz piękno domu ukrytego wśród łąk i wzgórz z pewnością oczarują twoje zmysły.
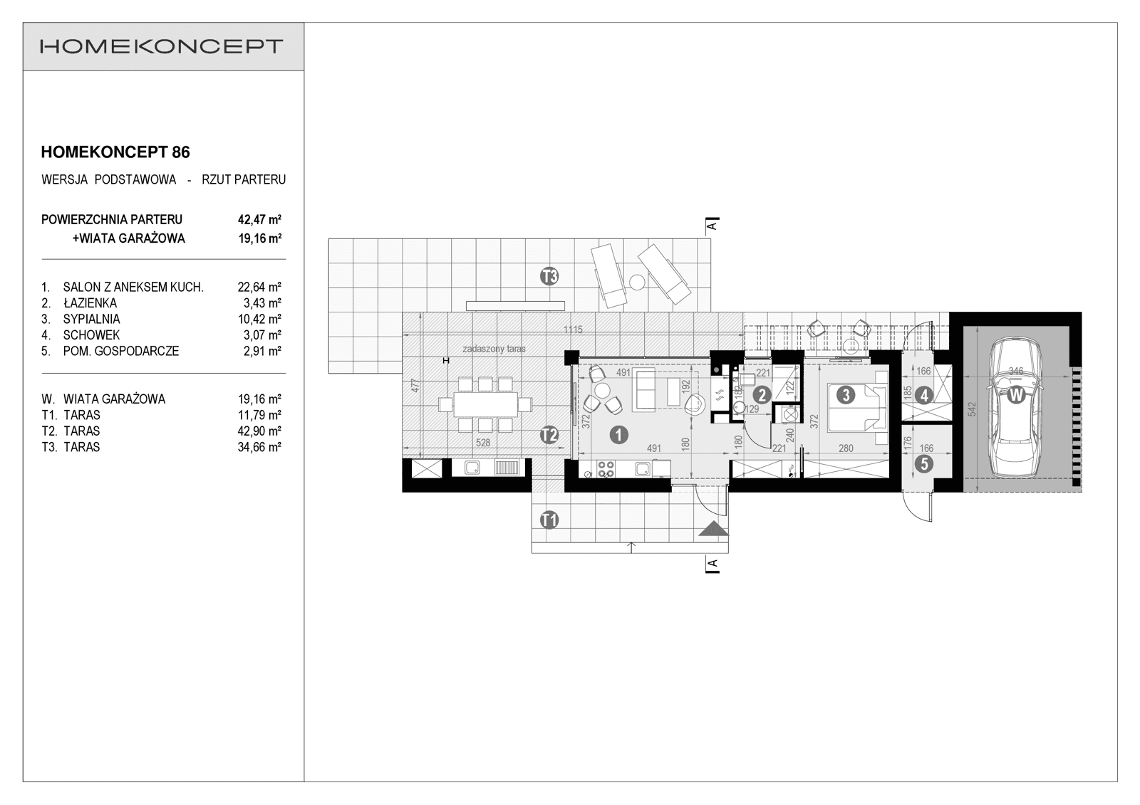
Zakochni jesteśmy w tym parterowym projekcie domu.
Ten gotowy projekt domu wyróżnia się dwoma szczególnymi elementami. Po pierwsze, zostało zaprojektowane oryginalne miejsce dla samochodu. Architekci projektu Homekoncept 86 już na wstępnym etapie projektu zdecydowali się umieścić w bryle domu wbudowaną wiatę garażową, która jest ukryta za ażurową ścianą ze słupków. Mimo że dom nie posiada tradycyjnego garażu, samochód jest chroniony przed deszczem i śniegiem. Pionowe belki dodają całości uroku i prezentują się niezwykle interesująco.
Drugim nietuzinkowym rozwiązaniem w projekcie Homekoncept86 jest duży taras, który znajduje się po przeciwnej stronie wiaty. Ten taras o powierzchni ponad 40 m2 został zaprojektowany jako przedłużenie strefy dziennej. Architekci Homekoncept planowali, aby taras pełnił rolę letniej kuchni, dlatego od razu zaprojektowano tam kuchenny blat roboczy. To rozwiązanie na pewno ucieszy wszystkich miłośników spędzania czasu na świeżym powietrzu i delektowania się rodziną. Przestronny taras oferuje możliwość cieszenia się naturą i podziwiania wschodów słońca, oddając się przyjemnościom obcowania z przyrodą.
Homekoncept86 to projekt nowoczesnego domu z płaskim dachem, w którym skoncentrowano się na nowoczesności i funkcjonalnych rozwiązaniach. Zachwyca on prostotą i doskonałą geometrią, a elewacja wykonana z czarnego i białego tynku oraz intensywnie brązowych desek dodaje mu wyjątkowego uroku.
Gotowe projekty domów o minimalistycznej i ponadczasowej bryle oraz doskonałej proporcji i harmonii.
















