Projekt domu Kasia to projekt prostego bezpretensjonalnego domu – energooszczędnego, niedrogiego w budowie i późniejszym utrzymaniu domostwa.
Dom Kasia to jednorodzinny dom parterowy z dwuspadowym dachem. Powierzchnia użytkowa projektu Kasia to 63,7 m², czyli w sam raz dla 3-osobowej rodziny, która chce żyć wygodnie i komfortowo, ale nie chce zadłużać się na całe życie inwestując w drogi dom.
Seria projektów domków Kasia to doskonała propozycja dla pragmatycznie myślących osób, planujących łatwą, szybką i nieskomplikowaną budowę niewielkiego budynku jednorodzinnego.
Minimalne wymiary działki potrzebne do budowy projektu Kasia to: szerokość działki 18,08 m, długość działki 15,95 m. Kąt nachylenia dachu w projekcie domu Kasia to 30 stopni, a wysokość budynku 5,69 m (5,99 m z podmurówką budynku).
Projekt domu Kasia
Bryłę projektu Kasia zaprojektowano jako dom parterowy, założony na planie prostokąta o wymiarach 11x8 m. Zasadniczą podstawową bryłę projektu Kasia można - w zależności od wybranej wersji wariantowej Kasi - wzbogacić o: wiatę garażową, garaż, zadaszenie nad tarasem ogrodowym, czy też strych nad parterem o funkcji magazynu, lub poddasza do zagospodarowania w razie potrzeby.
Projekt domku o wdzięcznej nazwie Kasia ma prostą i nowoczesną architekturę, a zarazem przytulny i sympatyczny wygląd - aż ma się ochotę w nim zamieszkać.
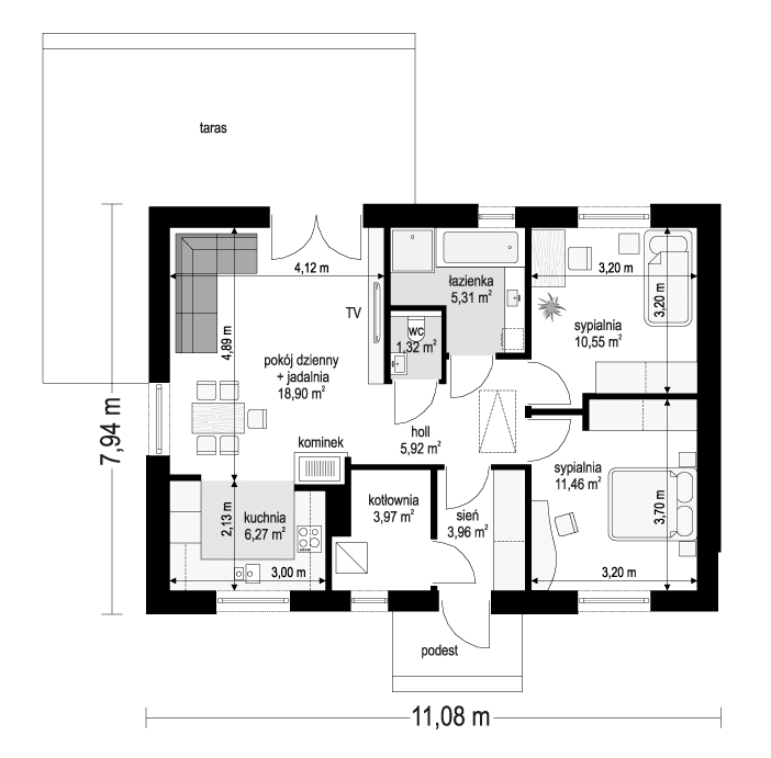
Wnętrze w projekcie domu Kasia
Do wnętrza projektu Kasia prowadzą nas drzwi wejściowe z naświetlem, do przedsionka z szafami. Stąd przechodzimy do przedpokoju, a dalej do salonu z kuchnią, oraz sypialni, łazienki i wc. Z przedsionka projektu Kasia jest też dostęp do kotłowni, w której można umieścić zarówno kocioł c.o. na gaz, jak i pompę ciepła powietrze - woda, albo niewielki kocioł na paliwo stałe - w zależności od wyboru systemu ogrzewania budynku.
Ten projekt domu ma w salonie wolną ścianę telewizyjną i kominek narożny na osobnej ścianie - obok kotłowni dzięki czemu w domu jest tylko jeden zespół kominowy. W projekcie domu Kasia przewidziano osobno łazienkę i wc - wygodne rzadko spotykane rozwiązanie w niewielkich domach.
W łazience projektu Kasia mamy dużo miejsca na prysznic, oraz pralkę i suszarkę.
W projekcie domu Kasia zaprojektowano wentylację mechaniczną z rekuperacją w standardzie. Do projektu Kasia można rozważyć dokupienie instalacji paneli fotowoltaicznych, ponieważ kształt dachu na to pozwala.
Konstrukcja domu Kasia jest bardzo prosta - prościej się nie da: mamy tutaj tylko ściany zewnętrzne jako konstrukcyjne, a nad ścianami wiązary dachowe, stanowiące konstrukcję stropu i dachu domu.
Dostępna jest wersja wariantowa projektu Kasia z otwartym sufitem nad salonem aż do dachu, dzięki czemu wnętrze salonu optycznie powiększa się. Dzięki prostej konstrukcji projektu Kasia, budynek jest łatwy i tani w realizacji.
Cechą charakterystyczną projektu domku Kasia jest jego energooszczędność - Kasia to domek z bardzo dobrymi ociepleniami przegród, z nowoczesnymi instalacjami, tani w budowie i późniejszym utrzymaniu.
Projekt domu Kasia można zamówić w odbiciu lustrzanym, a ewentualne zmiany w projekcie wykonać we własnym zakresie, lub zlecić pracowni MGProjekt. Zgoda na zmiany w dokumentacji projektowej jest wydawana bezpłatnie. Do projektu można również zamówić dodatki zwiększające jego funkcjonalność takie jak na przykład Pakiet pompa ciepła, czy Kosztorys inwestorski.
Zapraszamy do zapoznania się także z innymi projektami domków Kasia - Kasia 2, Kasia 3, Kasia 4, Kasia 5, Kasia 6, czy projekt domu Kasia 7.
Materiały:
- Fundamenty betonowe ławy i ściany fundamentowe z bloczków betonowych
- Ściany zewnętrzne ściany murowane - pustaki gazobetonowe 24 cm + styropian
- Strop i konstrukcja dachu wiązary prefabrykowane
- Elewacje tynk cienkowarstwowy
- Pokrycie dachu dachówka














