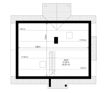
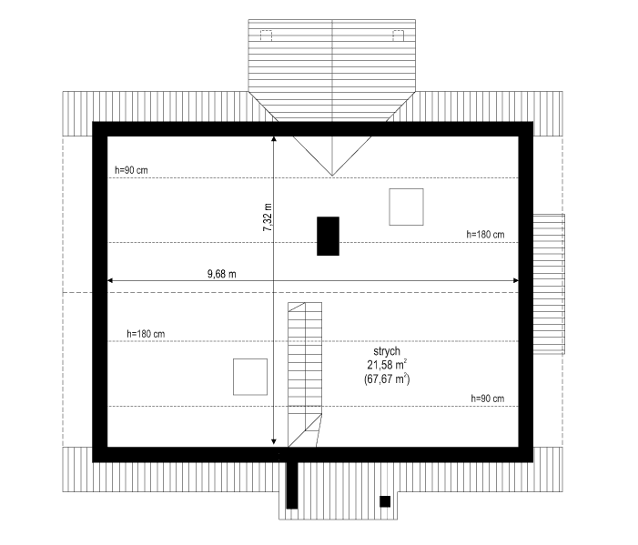
Projekt domu Perełka to domek parterowy, przeznaczony dla 3- 4-osobowej rodziny. Bliźniaczo podobny do popularnego projektu Klejnot. Tym razem projekt domu Perełka przykryty jest prostym, dwuspadowym dachem. Bryłę zbudowaną na planie prostokąta urozmaicono gankiem wejściowym, wykuszem w elewacji bocznej i ogrodową werandą, będącą zadaszeniem nad częścią tarasu. Duże ładne przeszklenia z podziałami, fragmenty elewacji obłożone płytkami klinkierowymi, nowoczesne materiały - wszystkie te elementy tworzą spójną całość z tradycyjnym kształtem domu. Wnętrze to wygodne trzypokojowe mieszkanie z zapleczem technicznym. Ładny salon z kominkiem łączy się przestrzennie z kuchnią i holem. Dwie sypialnie z łazienką znajdują się w przeciwnym skrzydle domu, w części nocnej. Schodami prowadzącymi z przedsionka dostajemy się na strych - w projekcie Perełka nieużytkowy, który jednak można łatwo zaadaptować na dodatkowe poddasze użytkowe. Projekt domu Perełka dostępny jest również w odbiciu lustrzanym, oraz w wersji z dobudowanym garażem (Projekt domu Perełka 2).
Materiały:
- Fundamenty betonowe ławy i ściany fundamentowe z bloczków betonowych
- Ściany zewnętrzne ściany murowane - bloczki gazobetonowe 24 + styropian + tynk cienkowarstwowy
- Strop Teriva
- Elewacje tynk cienkowarstwowy na styropianie
- Pokrycie dachu dachówka


















