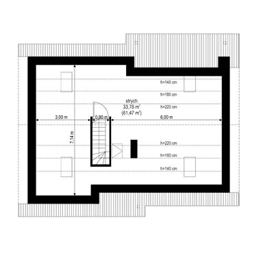
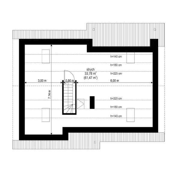
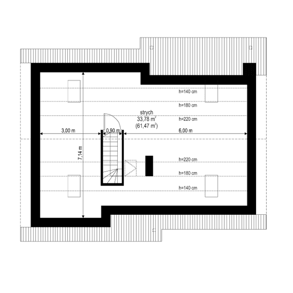
Projekt domu Biedronka 2 jest to wariantowa wersja naszego popularnego niewielkiego domu jednorodzinnego dla 3- 4-osobowej rodziny, parterowego, przekrytego dwuspadowym łagodnym dachem, ze strychem do adaptacji. Domek ma prostą bryłę i konstrukcję. Jest łatwy w budowie i tani w przyszłej eksploatacji. Dzięki zastosowaniu bardzo dobrego ocieplenia i nowoczesnych instalacji, Biedronka jest budynkiem energooszczędnym. Wygląd zewnętrzny to połączenie nowoczesności z tradycyjną formą. Nowoczesne materiały wykończeniowe i detale architektoniczne łączą się tu z tradycyjną formą parterowego domu na planie prostokąta, z dwuspadowym dachem. Elewacje frontowa i ogrodowa zostały urozmaicone zadaszonymi podcieniami, oraz drewnianymi okładzinami ścian. Oryginalny dach kryty blachą na rąbek można łatwo zastąpić dachówką lub blacho dachówką. Parter domu składa się z części dziennej z salonem, kuchnią i holem, oraz dwóch sypialni z łazienką. Przy przedsionku znajduje się kotłownia gazowa, którą łatwo można zmienić na kotłownię z piecem na paliwo stałe. Strych – poddasze można dowolnie zagospodarować. Mimo niewielkiej powierzchni dom ma przestronne i wygodne wnętrze. Biedronka 2 jest budynkiem całorocznym, może być też wykorzystywana jako dom wakacyjny. Prosta i łatwa konstrukcja pozwoli zaoszczędzić na kosztach budowy. Biedronka to z pewnością propozycja dla rozsądnie myślącego Klienta. Zapraszamy do zapoznania się z pełną ofertą pracowni MG Projekt: projekt domu Biedronka.
Materiały:
- Fundamenty - betonowe ławy i ściany fundamentowe z bloczków betonowych
- Ściany zewnętrzne - ściany murowane - pustaki porotherm 25 + styropian + tynk cienkowarstwowy
- Strop - drewniany belkowy
- Elewacje - tynk cienkowarstwowy na styropianie
- Pokrycie dachu - blacha na rąbek lub dachówka ceramiczna




















