Projekt Przepiórka z budową w technologii szkieletowej.
Dom ten to doskonała propozycja dla osób, które szukają funkcjonalnego i ekonomicznego domu na niewielkiej działce.
Dom Przepiórka został zaprojektowany w technologii szkieletowej. Jest to nowoczesna i energooszczędna technologia, która zapewnia szybką i bezproblemową budowę. Konstrukcja domu jest wykonana z drewna, które jest materiałem naturalnym, ekologicznym i trwałym. Ściany wewnętrzne i zewnętrzne wypełnione są wełną mineralną, która zapewnia doskonałą izolację termiczną i akustyczną.
Oferujemy budowę domu Przepiórka w technologii szkieletowej w systemie do zamieszkania. Oznacza to, że po zakończeniu prac budowlanych dom będzie gotowy do wprowadzenia.
Dom Przepiórka może być dostosowany do Państwa indywidualnych potrzeb. Możemy zmienić jego powierzchnię, układ pomieszczeń lub wykorzystać inne materiały wykończeniowe.
Oferujemy Państwu również możliwość budowy domu Przepiórka w technologii tradycyjnej.
Zapraszamy do odwiedzenia naszej strony internetowej, gdzie znajdą Państwo więcej informacji o naszych projektach domów i technologii szkieletowej.
Zalety domu Przepiórka
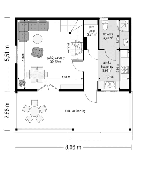
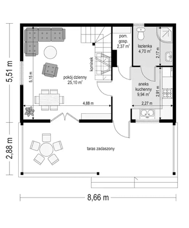
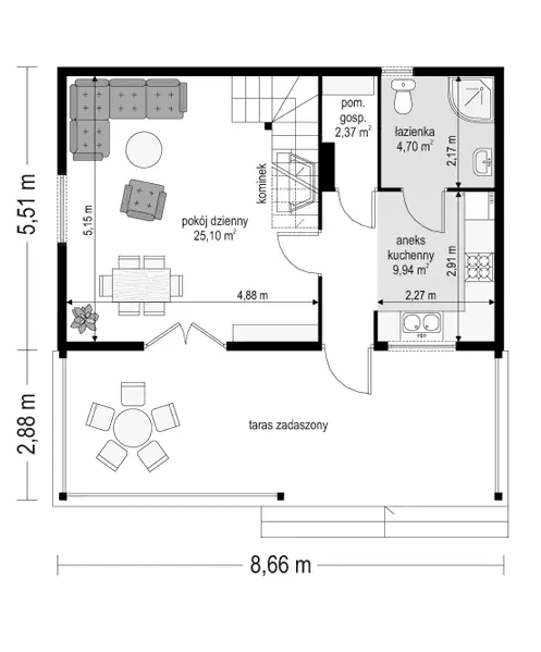
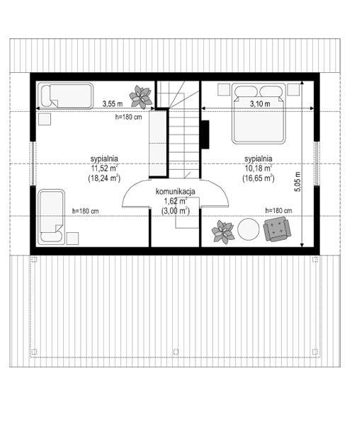
- Funkcjonalność: Dom Przepiórka posiada dobrze rozplanowane wnętrze, które zapewnia komfortowe użytkowanie przestrzeni 4 mieszkańcom. Na parterze znajduje się przestronny salon z kominkiem, kuchnia, łazienka i pomieszczenie gospodarcze. Na poddaszu znajdują się dwie duże sypialnie.
- Ekonomia: Dom Przepiórka jest tani w budowie i ekonomiczny w późniejszej eksploatacji. Lekka szkieletowa technologia gwarantuje szybką i bezproblemową budowę.
- Atrakcyjny wygląd: Dom Przepiórka to nowoczesny i estetyczny dom, który będzie ozdobą każdej działki.
Projekty domów jednorodzinnych Nasza pracownia oferuje szeroki wybór projektów domów jednorodzinnych, które spełnią oczekiwania każdego inwestora. W naszej ofercie znajdują się domy parterowe, z poddaszem i piętrowe, o powierzchni użytkowej od 50 do ponad 200 m2. Domy jednorodzinne z naszej pracowni charakteryzują się wysoką funkcjonalnością i estetyką. Przy ich projektowaniu uwzględniliśmy wszystkie potrzeby domowników, dbając o to, aby każdy dom był idealnym miejscem do życia. Projekty w technologii drewnianej Drewniane domy jednorodzinne to coraz popularniejsze rozwiązanie. Drewno jest materiałem naturalnym, który zapewnia komfortowy i zdrowy mikroklimat w domu. Domy drewniane są również energooszczędne, co przekłada się na niższe koszty eksploatacji. W naszej pracowni oferujemy projekty domów drewnianych w różnych stylach, od klasycznych po nowoczesne. Projekty jednorodzinne w technologii tradycyjnej Domy jednorodzinne w technologii tradycyjnej to sprawdzone rozwiązanie, które cieszy się niesłabnącą popularnością. Domy te są trwałe i solidne, a ich budowa jest stosunkowo niedroga. W naszej pracowni oferujemy projekty domów jednorodzinnych w technologii tradycyjnej w różnych stylach, od klasycznych po nowoczesne. Projekty typu nowoczesna stodoła Domy typu nowoczesna stodoła to nowoczesne i stylowe rozwiązanie, które zyskuje coraz więcej zwolenników. Domy te charakteryzują się prostą bryłą i dużymi przeszkleniami, które zapewniają mnóstwo światła dziennego. W naszej pracowni oferujemy projekty domów typu nowoczesna stodoła w różnych rozmiarach i stylach. Domy ekonomiczne Domy ekonomiczne to rozwiązanie dla osób, które chcą wybudować dom bez nadmiernego obciążania swojego budżetu. Domy te są zaprojektowane tak, aby były energooszczędne i łatwe w budowie. W naszej pracowni oferujemy projekty domów ekonomicznych w różnych stylach i rozmiarach.














