Dom modułowy SKOG to niezwykle atrakcyjny i funkcjonalny dom modułowy, dostosowany do obecnych trendów architektonicznych.
Wspaniały dom inwestycyjny, planujesz zabudowe kilku domów modułowych na działce, uzyskaj od nas ofertę indywidualną, ten dom modułowy to dobry materiał na dom na inwestycję.
SKOG to dom, który nie tylko zachwyca swoją estetyką, ale również spełnia wysokie standardy funkcjonalności. Jego minimalistyczny i nowoczesny design doskonale wpisuje się w obecne trendy architektoniczne, jednocześnie tworząc przytulną i ciepłą przestrzeń.
Projekt SKOG został opracowany tak, aby minimalizować koszty bez żadnych kompromisów w zakresie jakości i wygody. Zastosowanie nowoczesnych rozwiązań technologicznych i energooszczędnych materiałów przekłada się na utrzymanie niskich kosztów eksploatacyjnych.
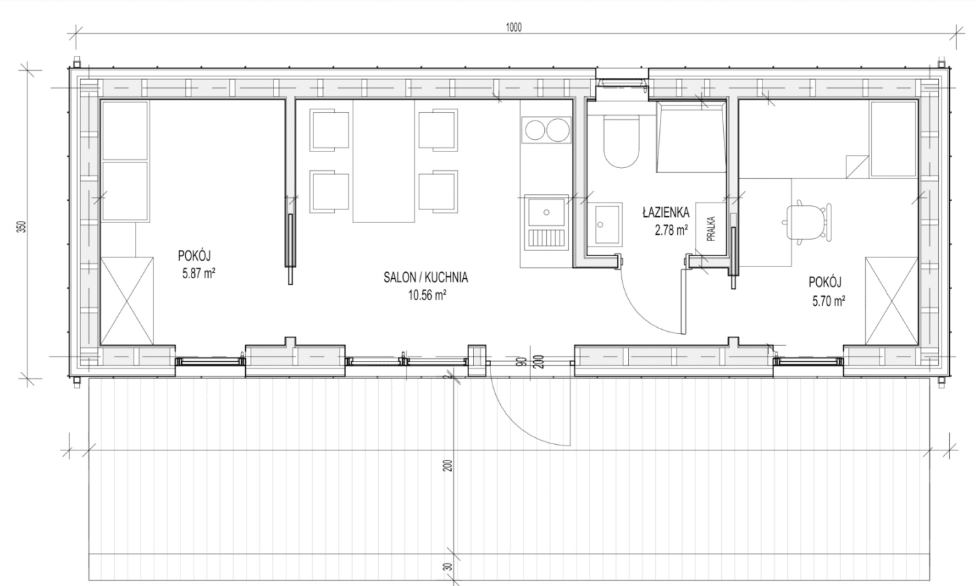
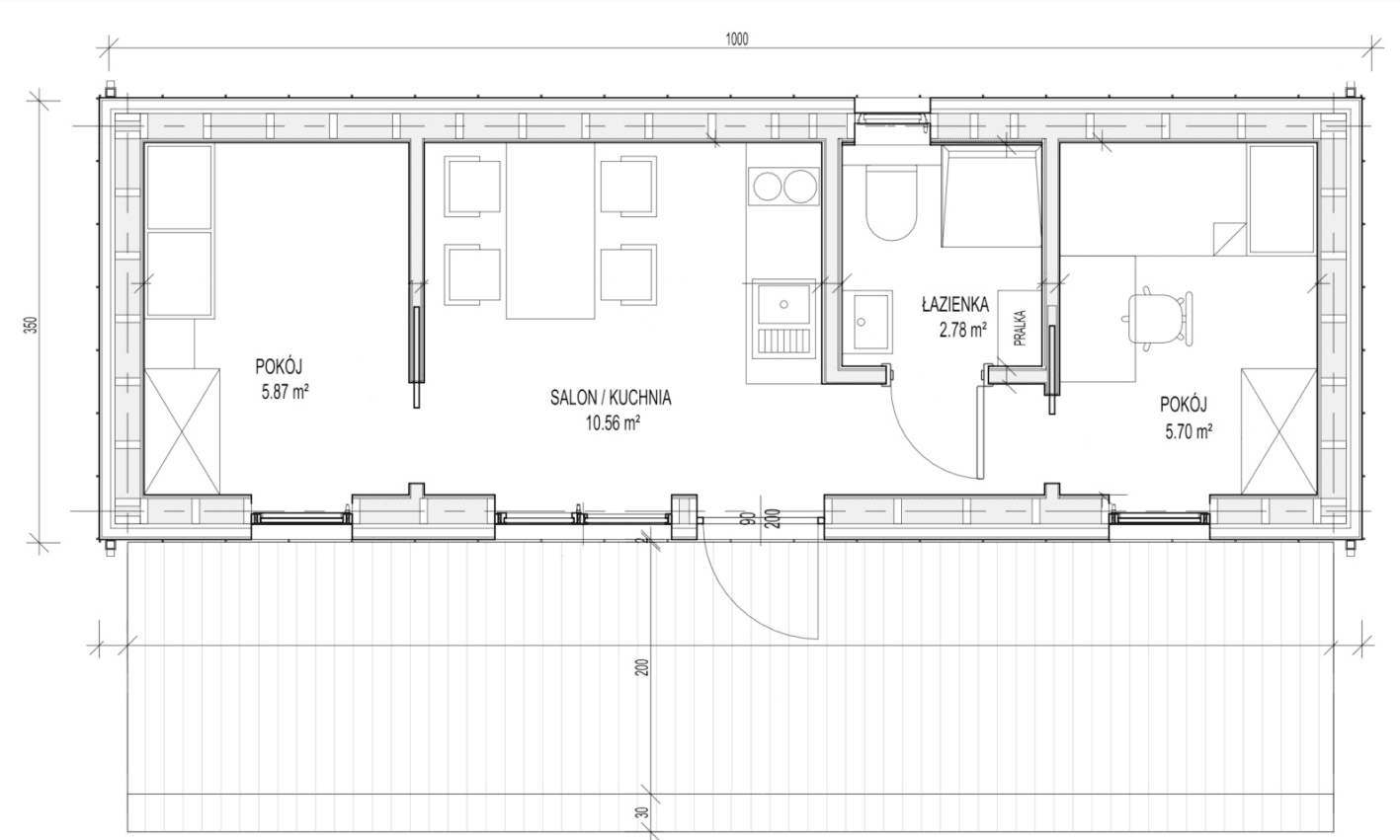
Wnętrze domu SKOG zostało starannie zaplanowane, aby maksymalnie wykorzystać dostępną przestrzeń. Część dzienna, połączona z aneksem kuchennym, zapewnia komfortowe warunki do codziennego użytkowania. Dwuosobowe sypialnie, umieszczone na przeciwnych końcach domu, gwarantują spokojny sen i relaks.
Projekt SKOG to idealne rozwiązanie dla osób, które poszukują niedrogiego, praktycznego i estetycznie zaprojektowanego domu modułowego. Zapewnia on komfortowe i przyjemne wnętrze, które pozwoli cieszyć się czasem spędzonym w domowym zaciszu.
Domy modułowe najwyższej jakości.
















