Dom modułowy UTEN
Specyfikacja i charakterstyka projektu
Wizualizacja projektu
Parametry podstawowe
Parametry techniczne projektu
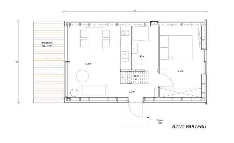
Rzuty projektu - kondygnacje i działka
📂 Uzyskaj rysunki szczegółowe do projektu
Szczegółowy opis projektu
Powiązane kategorie
Informacje szczegółowe
➡ Najczęściej wprowadzane zmiany, warianty i adaptację projektu
💰 Szacunkowy koszt realizacji budowy projektu
🚀 Wycena budowy projektu w technologii szkieletowej/modułowej
Zalety zakupu projektu na wybieramprojekt.pl
Nasze biuro posiada szeroki zakres usług związanych z adaptacją gotowych projektów do warunków konkretnej działki, doradztwem w zakresie kosztorysów i technologii oraz budową domu. Do zakupu każdego projektu dodajemy również obszerny pakiet korzyści.
Pakiet korzyści w zestawie przy zakupie projektu
Uzyskaj informacje o korzystnych kredytach na budowę domu
Skorzystaj z bezpłatnej pomocy eksperta finansowego
💼 Zawartość gotowego projektu architektoniczno-budowlanego
Każdy PROJEKT GOTOWY to wysokiej jakości dokumentacja architektoniczno-techniczna sporządzona wedle wytycznych Prawa Budowlanego, pozwalajaca złożyć dokumentację w urzędzie do zgłoszenia budowy lub do pozwolenia na budowę. Wszystkie nasze projekty gotowe i projekty gotowe autorów, z którymi współpracujemy są zweryfikowane i posiadają zaświadczenie o zgodności projektu z PB. Dostępność i aktualizacje każdego projektu są indywidualnie potwierdzane.
Każdy gotowy projekt jest zgodny z Prawem Budowlanym i zawiera:
- Projekt opisowo-architektoniczny
- Projekt techniczny
- Zgodę na modyfikację projektu i adaptację
- Kopię uprawnień architektów i branżystów
- Projekty domów posiadają charakterystykę energetyczną (brak w projektach garaży i gospodarczych)
Szczegółową zawartość projektu możesz sprawdzić na stronie:
Zawartość projektu gotowego
Każdy projekt gotowy domu jednorodzinnego możemy zanalizować pod kątem zgodności z działką i omówić zmiany planowane w projekcie. Z nami zyskujesz kompleksowo bezpieczeństwo zakupu projektu!
✍🏻 Standardowa zgoda na zmiany do projektu
Co możesz modyfikować?
Standardowa zgoda to szeroki zakres możliwości. Pamiętaj od nas UZYSKASZ INDYWIDUALNĄ DODTAKOWĄ ZGODĘ BEZPŁATNIE na Twoje życzenie.
STANDARDOWO DOŁĄCZANA ZGODY NA ZMIANY obejmuje:
- zmianę funkcji użytkowania pomieszczeń,
- zmiany technologiczne i materiałowe - rodzaj stropu, materiały ścienne, izolacyjne i wykończeniowe, pokrycie dachowe,
- dostosowanie posadowienia budynku do warunków geotechnicznych,
- wykonanie podpiwniczenia budynku,
- zmiany usytuowania ścian działowych,
- zmiana wielkości, ilości i lokalizacji otworów drzwiowych i okiennych,
- zmiana nachylenia kąta połaci dachowej do 5 stopni,
- zmiany w wymiarach zewnętrznych budynku w zakresie 5%,
- zmiana materiałów instalacyjnych i przebiegu instalacji wewnętrznych.
- Warto uzyskać dodatkowa zgodę na zmiany* :
- zmianę sposobu ogrzewania budynku,
- zmianę usytuowania kominów,
- likwidację/doprojektowanie balkonów, podcieni, lukarn,
- zmianę usytuowania i kształtu tarasu,
- podniesienie ścianki kolankowej,
- zmianę wysokości budynku.
w/w zmiany pojawiają się bardzo często już na etapie wykonywania adaptacji, czy też realizacji budowy.
Potrzebujesz więcej informacji technicznych dotyczących projektu, by zamówić projekt domu, zapraszamy. Informację dotyczące warunków zakupu i zwrotów dostępne są na stronie Regulaminu, o szczegółach dotyczących czasu realizacji projektu, warunków zakupu i warunków wymian lub zwrotów poinformuje doradca po sprawdzeniu konkretnych warunków zakładanych przez konkretnego autora projektu.
Technologia i konstrukcja domu modułowego Uten
SPOSÓB WYKONYWANIA, ROZWIĄZANIA KONSTRUKCYJNO-MATERIAŁOWE ORAZ INSTALACJE
Rozwiązania konstrukcyjne
Budynek w technologii szkieletowej drewnianej, z drewnianym dachem. Posadowienie planuje się na
betonowym fundamencie, do wykonania przez Zamawiającego
Rozwiązania materiałowe i istotne elementy budynku.
- Ściany zewnętrzne
Ściany nośne zostały zaprojektowane w konstrukcji drewnianej szkieletowej z belek dwuteowych.
Wykończenie wewnętrzne ścian z płyty g-k. Konstrukcja wypełniona wełna drzewną, w miejscach
niedostępnych mineralną, grubości 20cm.
- Dach
Dach dwuspadowy, o konstrukcji drewnianej, w technologii szkieletowej, z belek dwuteowych.
Wykończenie wewnętrzne z płyty g-k. Konstrukcja wypełniona wełną drzewną, w miejscach
niedostępnych mineralną, o łącznej grubości 25 cm. Pokryty blachą na rąbek. Rynny.
• Fundamenty
Ściany fundamentowe na ławach żelbetonowych. Głębokość posadowienia fundamentów poniżej
poziomu przemarzania gruntu. Fundamenty do wykonania przez Zamawiającego.
Posadzka
Beton podkładowy, warstwy termoizolacji, jastrych betonowy. Posadzka do wykonania przez
Zamawiającego.
• Elewacja
Wykończona świerkowymi deskami elewacyjnymi w układzie pionowym, zabezpieczonymi bejcą w
wybranym kolorze oraz blacha na rąbek.
• Okna i drzwi
Zewnętrzna stolarka okienna – PCV rozwierno-uchylne z pakietem trzyszybowym,
drzwi wejściowe stalowe.
• Schody z drewna sosnowego.
- Instalacje:
• Instalacja elektryczna, z gniazdkami i włącznikami. Dostarczenie energii elektrycznej wg odrębnego
opracowania po stronie Zamawiającego.
• Instalacja wodno-kanalizacyjna w ścianach, zakończona korkami na podejściach do urządzeń
sanitarnych, bez osprzętu. Zasilanie w wodę oraz odprowadzanie ścieków bytowo-
gospodarczych według odrębnego opracowania po stronie Zamawiającego.
• Instalacja c.o., kocioł, grzejniki oraz dostarczenie energii cieplnej wg odrębnego opracowania,
po stronie Zamawiającego.
• Wentylacja grawitacyjna oraz mechaniczna w łazience.















