Dom modułowy Furu to piękny, zgrabny, kompaktowy dom w kształcie litery L.
Projekt FURU oczarowuje swoją oryginalnością. Ten dom modułowy składa się z dwóch brył, tworząc naturalne miejsce na osłonięty taras. Jego niewielkie rozmiary pozwalają na swobodne postawienie na praktycznie każdej działce.
Cena wykonania domu: 149 000 zł netto + 8% VAT
FURU to idealne rozwiązanie dla osób, które pragną uciec od miejskiego zgiełku i czerpać wytchnienie we własnym, przytulnym domu. Budynek wyróżnia się nowoczesną i minimalistyczną formą, idealnie współgrającą z otaczającym krajobrazem.
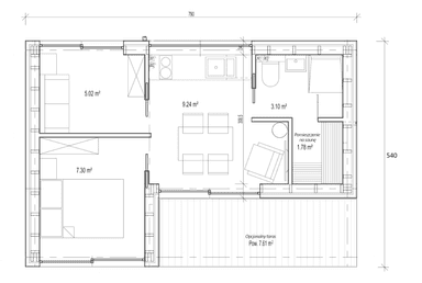
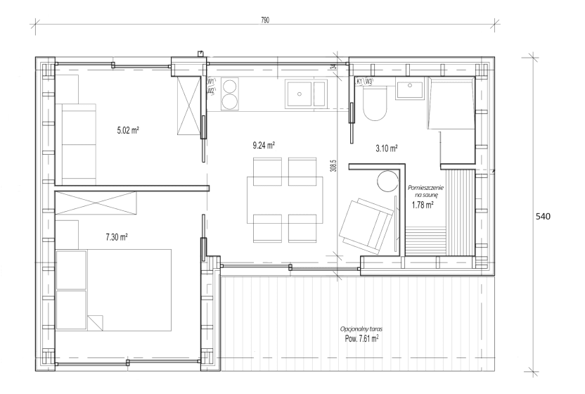
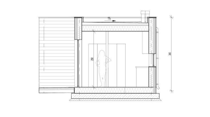
Wnętrze zostało doskonale rozplanowane: część dzienna z aneksem kuchennym stanowi serce domu, zapewniając centralne miejsce do spędzania czasu w ciągu dnia. Dwie sypialnie gwarantują wygodny i spokojny sen, a łazienka zapewnia niezbędne wyposażenie do komfortowego użytkowania. Idealnie: projekt przewiduje miejsce na saunę, dodając nutkę luksusu i tworząc kameralną atmosferę relaksu i odpoczynku.
FURU to idealne rozwiązanie dla osób poszukujących funkcjonalnego i kompaktowego domu, który jednocześnie oferuje atrakcyjną i komfortową przestrzeń dla mieszkańców. Przygotuj się na niezwykłe doświadczenie w wyjątkowym domu FURU!
Domy modułowe najwyższej jakości.

















